查看完整案例

收藏

下载
背景
Context
Nam 住宅位于越南胡志明市的守德市。与农村地区相比,这座城市的温度往往高出 8-11°C,受城市热岛效应的影响尤为显著。这种温度上升对人们的日常生活造成了负面影响,甚至导致了由于缺乏舒适的生活环境而产生的压力和健康问题。越南的气温最高可达 44.1°C,远超人体舒适的 24-28°C 区间,因此设计出能够适应热带气候的建筑至关重要。
Nam House is located in Thu Duc City, a part of Ho Chi Minh City, Vietnam. The city’s temperature is often 8-11°C higher than rural areas, exacerbated by urban heat island effects. This increase in temperature can significantly affect daily life, leading to stress and poor health due to the lack of climate comfort in living spaces. As temperatures in Vietnam can reach as high as 44.1°C, far above the ideal range of 24-28°C for human comfort, designing architecture that adapts to the tropical climate is crucial.
▼鸟瞰,aerial view© Hiroyuki Oki
设计理念 Concept 该房屋位于狭窄的小巷中,代代相传,周围邻居是房主的亲属。设计目标是将房屋与周围环境,特别是与房主母亲的邻近房屋连接起来。最终方案是将建筑分为三个独立的部分:前部包含私人空间,如车库、厕所、入口、卧室和书房;后部安排了两间卧室、浴室和洗衣区,确保隐私;中间部分为开放的餐厅区域,用来连接自然元素和邻近的家庭空间。这种布局在确保通风的同时有效阻挡了过量的阳光。▼平面空间分析,conceptual plan©CTA
The house is situated in a narrow alley, inherited through generations, surrounded by the owner’s close relatives. The goal was to design a home that connects with the surrounding environment, including the owner’s mother’s adjacent house. The solution was to split the building into three distinct blocks:
The front block contains private spaces like a garage, toilet, entrance, bedroom, and study room.
The back block has two bedrooms, a bathroom, and a laundry area, also enclosed for privacy.
The middle block serves as an open dining area, designed to connect to natural elements and the nearby family home.
This layout ensures ventilation and protection from excessive sunlight.
▼中央水庭院,central water courtyards© Hiroyuki Oki
生物气候建筑设计策略
Bioclimatic Architectural Design Solutions
为了在热带气候下实现热舒适,设计实施了五项关键策略。
To achieve thermal comfort in a tropical climate, five key strategies were implemented.
▼入口,entrance© Hiroyuki Oki
结构隔热|Structural Insulation
通过三层墙体结构减少热传递:外层采用实心砖,阻挡热量;中间是空气层,隔离外墙与内墙,减少热传导;内墙采用空心砖,进一步降低热量传递。这种设计有效防止了过多热量进入屋内,且薄薄的外墙能够在日落后迅速降温。
▼墙体结构分析图,analysis diagram of the wall©CTA
Heat transfer through the building’s structure is minimized by using three wall layers. The outer layer is made of solid brick to block heat. An air gap separates the outer and inner walls, reducing heat conduction. The inner wall is constructed with hollow bricks to further reduce heat transfer. This design helps prevent excessive heat from entering the house, and the thin outer wall cools quickly after sunset.
▼局部外观,exterior view© Hiroyuki Oki
最小化房屋的受热面积|Minimizing Solar Heat Gain
房屋外墙采用了凹缝砂浆技术,以减少直接日晒。砂浆层比砖面凹进 10 毫米,形成阴影区,能减少 14-16%的太阳热量。这一微小的设计调整有效减少了建筑吸收的热量。
▼凹缝砂浆技术分析图,analysis diagram of the outer‘s wall©CTA
The house’s outer walls are built using a technique that reduces direct sun exposure. Mortar joints are recessed 10mm from the brick surface, creating shaded areas on the wall, reducing solar heat by 14-16%. This subtle adjustment effectively minimizes the heat absorbed by the building.
▼砖材外观,outer wall built in bricks© Hiroyuki Oki
▼细部,details© Hiroyuki Oki
加强自然通风|Enhancing Natural Ventilation
被动通风系统对于热带住宅至关重要。为确保持续的气流,所有窗户和门都配有 Z 型遮阳板,使冷空气从下部进入,热空气从上部排出。这个 24 小时运作的气流系统无需人工操作,防止了屋内热量积聚。
▼分析图,analysis diagrams©CTA
▼通风分析,analysis plans of ventilation©CTA
A passive ventilation system is essential for tropical homes. To ensure continuous airflow, all windows and doors are integrated with Z-shaped shades, allowing cool air to enter from below and hot air to escape from above. This 24/7 airflow system eliminates the need for manual operation and prevents heat buildup inside the house.
▼与户外空间相连的中部生活空间,central living space connected to the nature© Hiroyuki Oki
▼厨房餐厅,kitchen-dining© Hiroyuki Oki
控制热延迟|Controlling Heat Delay
为了避免热不适,设计通过分区调节热吸收速度。例如,白天使用的公共区域位于热传递最慢的部分。卧室,尤其是夜间使用的卧室,则隔离了太阳的直接辐射。通过让功能空间位于热传导延迟的区域,设计确保了白天最热时段的舒适度。
To avoid heat discomfort, the design staggers the heat absorption in different areas of the house. For example, the common areas, used throughout the day, are positioned where heat takes the longest time to penetrate. Bedrooms, especially those used at night, are insulated from direct solar radiation. By placing functional spaces in areas with delayed heat transfer, the design ensures comfort during the hottest parts of the day.
▼拱门。arches© Hiroyuki Oki
▼餐厅客厅,dining and living room© Hiroyuki Oki
▼书房,study© Hiroyuki Oki
采用水景与植被|Use of Water and Plants
绿色区域和水景的结合有助于降低环境温度。东北方向的水池通过蒸发增加湿度并冷却空气,创造了一个更舒适的微气候。
Green areas and a water feature were incorporated to reduce ambient temperature. Positioned in the northeast, a lake increases humidity and cools the air through evaporation, creating a more comfortable microclimate around the house.
▼面向水庭院的卧室,bedroom facing to the water courtyards© Hiroyuki Oki
▼面向庭院的卧室,bedroom facing to the courtyards© Hiroyuki Oki
▼卧室,bedroom© Hiroyuki Oki
总结 Conclusion 通过以上五种设计策略,本项目成功地为居住者营造了一个舒适且节能的居住环境。Nam 住宅不仅提高了居住者的生活质量,同时也成为了应对气候挑战的热带现代建筑典范。
The combination of these five design strategies successfully creates a comfortable, energy-efficient living environment. Nam House exemplifies tropical modern architecture, addressing the challenges of climate while enhancing the quality of life for its occupants.
▼浴室,bathroom© Hiroyuki Oki
▼透光天花板与光影,detail of the ceiling and the lighting effect© Hiroyuki Oki
▼走廊与卧室入口,hallway and door to the bedroom© Hiroyuki Oki
▼总平面图,site plan©CTA
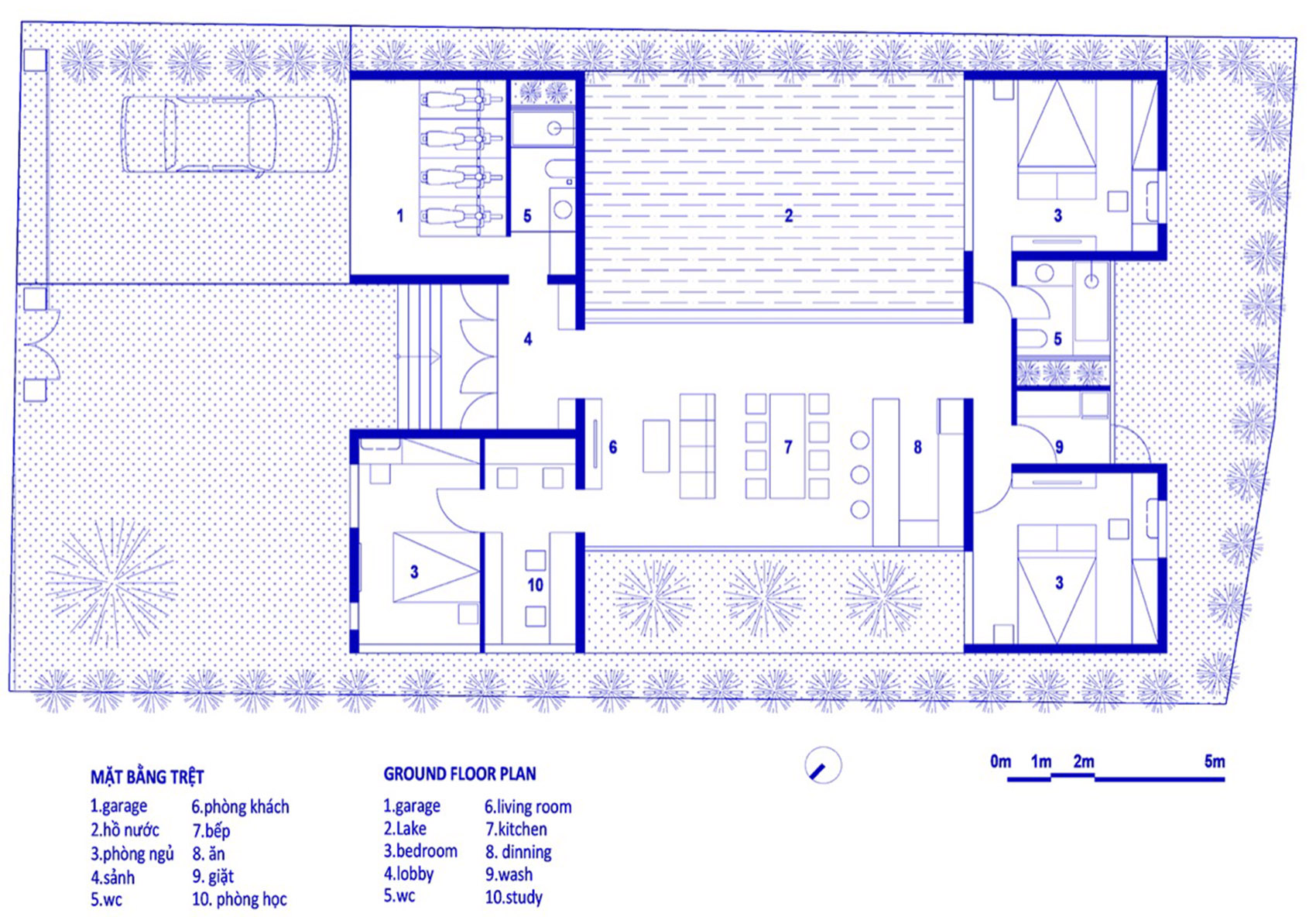
▼一层平面图,ground floor plan©CTA
▼屋顶平面图,roof plan©CTA
▼剖面图,sections©CTA
Nam house
Client: Mr. Nam
Year completed: 2024
Location: Thu Duc district, Ho Chi Minh city
Land area : 688m2
Ground Floor Area: 180m2
Storey: 1
Construction: Local masons
Garden : Phúc Garden
Photo: Hiroyuki Oki
Design: CTA|Creative Architects
客服
消息
收藏
下载
最近


































