查看完整案例

收藏

下载

翻译
Architects:Luiz Paulo Andrade Arquitetos
Area:1000m²
Year:2023
Photographs:Leonardo Finotti
Lead Architect:Luiz Paulo Andrade
Design Team:Renan Bressani, Luciana Vada, Luiza Monteiro, João Vinícius Costa, Bruno Nakaya, Luis Gustavo Sendai, Guilherme Melo
City:São Paulo
Country:Brazil
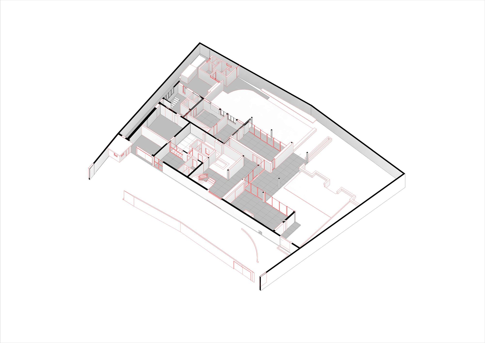
From Diplomacy to Contemporary Family Life. Reinventing an Avant-garde Project, the RDS House has undergone a remarkable transformation, merging history and modernity into an innovative renovation project. Originally designed in the 1960s by Américo R. Campello to serve as the residence of the British Consul in São Paulo, it was later adapted to become the British Consulate in the 1980s. Today, it has re-emerged as a sophisticated home for a 21st-century family.Campello's design, whose structure was considered innovative for its time, was altered and mischaracterized due to changes over the years. Our goal became to reinforce the original volume by restoring the wide and beautiful cantilevers, as well as expanding the internal spaces.
In addition, we faced the challenge of adapting the robust concrete structure to meet contemporary spatial needs. To create large, open spaces, a cutting-edge engineering solution was implemented: structural reinforcement using carbon fiber. This material allowed the opening of even larger spans without compromising the building's integrity and allowed the creation of new spaces to meet the demands of the family.The renovation kept the balance between respecting the architectural history of the house and introducing contemporary elements. Also, harmony between aesthetics and functionality was ensured. The exposed concrete surfaces were carefully restored, preserving the building's Brutalist essence. New walls were covered in precast concrete slats, creating a visual unity with the existing elements. The integration of the old and the new was achieved through a cohesive approach in materials and textures.
The result is a residence that honors its diplomatic past while embracing the needs of contemporary life. We also sought to incorporate essential concepts that characterize the vast majority of our projects: 1. Large and Fluid Spaces: Ideal for family interaction and guest reception, 2. Interior-Exterior Integration: Maximum use of natural light and connection to green areas, and 3. Technology and Comfort: Modern automation systems and energy efficiency integrated discreetly into the architecture.This renovation is an eloquent statement to architecture's ability to reinvent itself. This project demonstrates how a historic structure can be adapted to meet the needs of modern life without losing its architectural identity and relevance. It stands out not only as an exceptional residence but also as an inspiring example of how architecture can evolve, respecting its legacy while embracing the future.
Project gallery
客服
消息
收藏
下载
最近






























