查看完整案例

收藏

下载
位于阿姆斯特丹的口香糖工厂前生产车间已被改造成一栋面向创意企业的现代化办公楼。在现有砖结构建筑之上建造了一个具有现代工业特色的透明体量。不同体量的组合创造出一种吸引人且和谐的外观,适应口香糖工厂的现在、过去和未来。
The former production hall in the Kauwgomballenkwartier (Chewing gum area) in Amsterdam has been transformed into a modern office building for creative entrepreneurs. On top of the existing brick building a transparent volume with a contemporary and industrial character has been built. The combination of the different volumes creates an inviting and harmonious appearance that fits the present, past and future of the Kauwgomballenkwartier.
▼外观概览,exterior overview ©️ Jeroen-Musch
▼立面,facade ©️ Jeroen-Musch
自 2008 年口香糖工厂开始改造以来,周围的商业园区已经变成一个充满活力的工作环境,各种创意公司云集于此。口香糖工厂由不同年代的多种建筑风格组成,其工业特征呼应了过去的时代。为了继续这一地区的开发,工厂的前生产车间已被改造成一个具有特色的、令人鼓舞的工作环境。建筑拥有灵活的布局,可提供多种办公选项,为小型和大型创意企业提供工作空间。
Since the start of the transformation of the Kauwgomballenfabriek (Chewing gum factory) in 2008, the surrounding business park has been transformed into a vibrant working environment with a wide variety of creative companies. The Kauwgomballenkwartier consists of diverse building styles from various decades with an industrial character that correspond with the past. To continue the development of the area, the former production hall of the factory has been transformed into an inspiring working environment with a characteristic identity. The building facilitates a variety of office options due to its flexible layout and offers work spaces for both small and large creative entrepreneurs.
▼露台,terrace ©️ Jeroen-Musch
▼露台,terrace ©️ Jeroen-Musch
▼立面细部,facade detail ©️ Jeroen-Musch
原生产车间的部分结构被保留下来,成为新办公楼的一部分。原有的石头建筑与新的五层高透明建筑融为一体。办公楼的外立面最大的特征是三角形的结构,以原有坡屋顶为基础,符合原有结构的风格特征和建筑的历史文化价值。钢材、玻璃和木材等材料的加入为建筑增添了新的活力,完美融入口香糖工厂建筑综合体之中。最终为创意人士提供了一个振奋人心、宽敞明亮的工作场所,让现在、过去和未来在这里融为一体。
The structure of the former production halls have partly been preserved and have become part of the new office building. The original stone buildings are combined with a transparent volume of five floors. The facades of the office building are characterized by the triangular structure that is based on the original roofs and complies with the style characteristics of the original structure and the cultural-historical value of the building. The addition of materials such as steel, glass, and wood give the building a new dynamic that fits very well within the ensemble of the Kauwgomballenkwartier. The result is an inspiring and bright workplace for creatives where present, past and future come together.
▼首层室内概览,ground floor overview ©️ Jeroen-Musch
▼城市视野,view of urban surroundings ©️ Jeroen-Musch
办公楼由两部分组成,通过一个通透明亮的楼梯间核心所连接。这座完全由木材包裹的中央楼梯将办公楼不同部分的使用者聚集在一起。天然材料的使用使办公楼成为一个令人愉悦、用户友好的工作场所。大楼的各个室外区域都配备了不同类型的绿植,比如入口的口袋公园、室内绿色庭院、盆栽阳台、外墙垂直绿化以及部分苔藓景天植物屋顶。
The office building consists of two parts that are connected by a clear, light core in which the staircase is located. The central staircase is completely covered in wood and brings users from the different parts of the building together. The use of natural materials makes the office building a pleasant and user-friendly workplace. The various outdoor areas of the building are equipped with different types of green, such as a Pocket Park entrance, indoor green patios, balconies with planters, vertical greenery on the facades, and a partial moss sedum roof.
▼走廊,corridor ©️ Jeroen-Musch
▼场地平面图,site plan ©️ NEXT architects
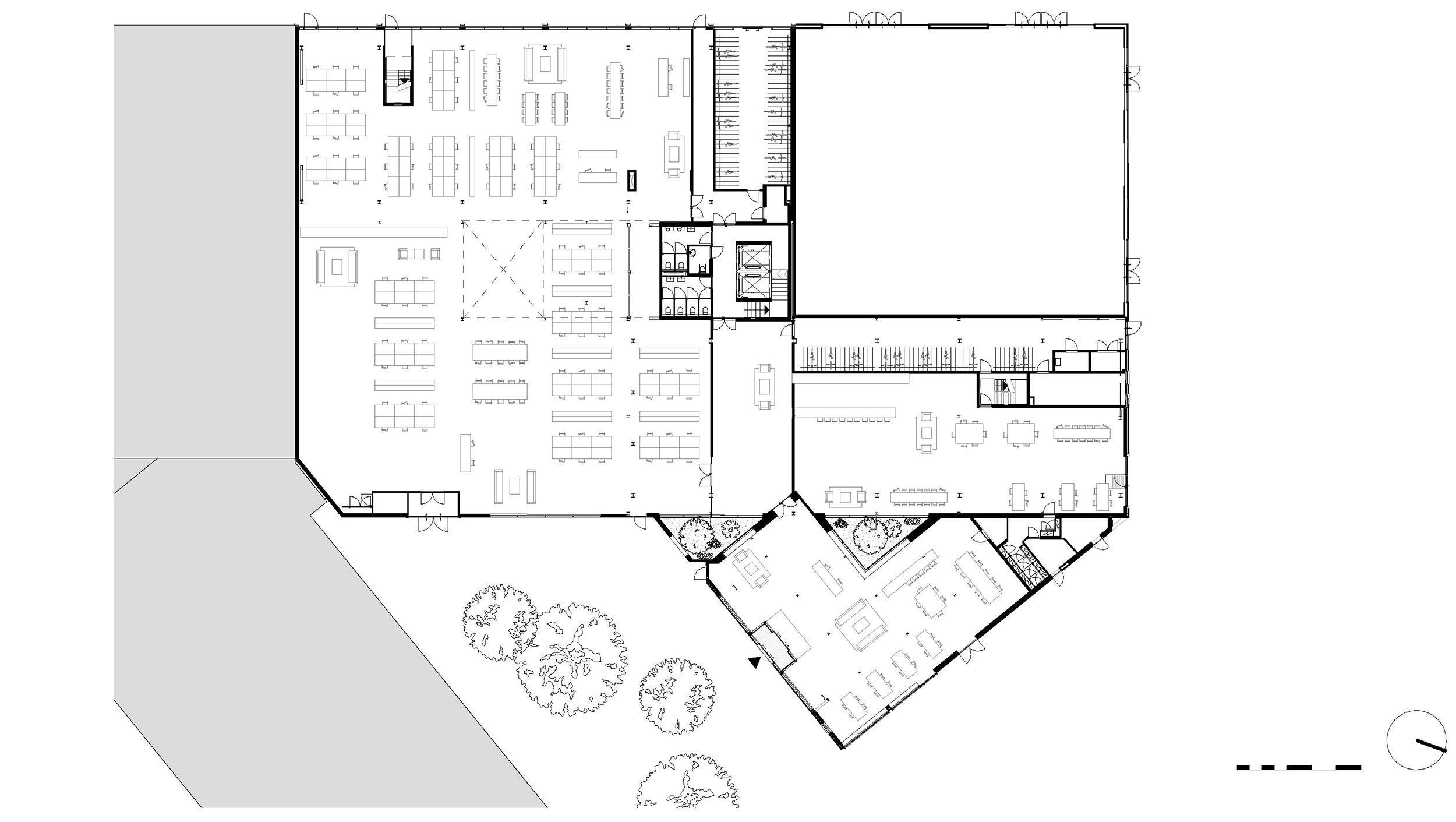
▼首层平面图,ground floor plan ©️ NEXT architects
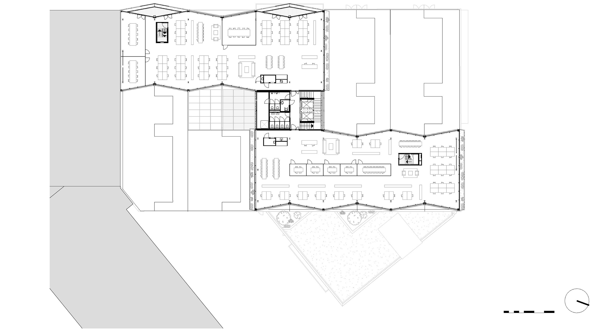
▼二层平面图,first floor plan ©️ NEXT architects
▼三层平面图,second floor plan ©️ NEXT architects
▼四层平面图,third floor plan ©️ NEXT architects
▼四层平面图,third floor plan ©️ NEXT architects
▼五层平面图,fourth floor plan ©️ NEXT architects
▼六层平面图,fifth floor plan ©️ NEXT architects
▼立面图,elevations ©️ NEXT architects
Type / program: Offices
Location: Amsterdam
Client: Timeless
Size: 8395m2 BVO
Status: Delivered
Preliminary design: February 2020
Final design: Juli 2020
Start building: Juni 2022
Design: NEXT architects
TEAM:
Bart Reuser, Marijn Schenk, Michel Schreinemachers, Joost Lemmens, Jorn Kooijstra, Marcel Geerdink, Leire Alvarez, Ohiana Garcia Meneses
in collaboration with NEOO, M-trix, Van Rossum, Peutz (adviseurs)
客服
消息
收藏
下载
最近



























