查看完整案例

收藏

下载
蝉柔的英文全称 GYROTONIC EXPANSION SYSTEMO,是一套独特的脊柱螺旋运动方法始于二十世纪八十年代,由罗马尼亚舞者 Juliu Horvath 创立。此运动是基于瑜伽、太极、体操以及舞蹈所创的一种新颖、独特的运动方式。强调在三维空间的整体性运动,由脊柱到四肢,由内而外,力量和柔韧相联结。
© OneMoodDESIGN 万慕设计
The English translation of “蝉柔” would be “GYROTONIC.” The full English name of 蝉柔 is “GYROTONIC EXPANSION SYSTEM.” It is a unique spinal spiral movement method that originated in the 1980s and was founded by Romanian dancer Juliu Horvath. This exercise is a novel and distinctive approach derived from yoga, tai chi, gymnastics, and dance. It emphasizes holistic movement in three-dimensional space, linking the spine to the limbs, from the inside out, connecting strength and flexibility.
▼店铺外观,Exterior view© OneMoodDESIGN 万慕设计
0-设计声明 Design Statement 这是为了什么?它解决了什么问题?对用户有什么好处?为什么陪审团应该裁决它?与类似项目相比,是什么让它与众不同?
What is it for? What problem does it solve? What’s the benefit for the user? Why should the jury award it? What makes it unique compared to similar projects?
arch arch 项目是我司在 2023 年设计完成的以禅柔运动为核心的运动及教研空间。禅柔被称为最先进的运动项目,强调在三维空间的整体性运动,也强调身心的激活与平衡。该项目中我们将注意力放在了心、身、环境三者互动关系上。功能性设计上充分满足禅柔运动的行为需求,而在空间语言上充分表达“让一切自然发生”的品牌文化。尊重“空间中的身体”,也尊重“空间所处的环境”,结合项目所在地老建筑群的文化特征和该项目的现代性精神,不盲目复古也不刻意标新,融合“新与旧”的视觉标签,让身、心、环境三者在各种维度上都产生美好的“共振”。身体成为有心性的身体,空间成为有灵魂的空间。
The ARCH ARCH project is a sports and research space designed by our company, centered around the practice of GYROTONIC. GYROTONIC is considered the most advanced modern sports program due to its incorporation of various exercise forms. It aims to activate the body and stimulate perceptiveness of the mind, fostering a balance between the physical and mental aspects. As a specific space that accommodates these physical and psychological activities, our focus lies in the interplay and harmonization between the mind, body, and environment. Our design caters to the functional requirements of GYROTONIC practice while expressing the brand culture of “letting everything happen naturally” through spatial language. Through our design, we respect the “embodied” nature of the space, enabling it to enhance the dimensional perception of individuals within it. The body becomes a mindful body, and the space becomes a mindful space.
▼入口处,Entrance© OneMoodDESIGN 万慕设计
1-主意
Idea
相关性:为什么它具有相关性?
适合目的:为什么这个想法是合适的?
Relevance: Why is it relevant? Fit for purpose: Why is the idea appropriate?
运动被公认为我们⽣活中付出与收获最成正⽐的事情,运动产⽣⾎清素、内啡肽还有多巴胺,让我们的身体更有⼒更美好,更是我们情绪的天然⽌痛剂、灵魂的奖励激素。空间也⼀样,空间不仅要满⾜安全感的需求,还要给我们⼀定的刺激,⽆聊有时是危险的,⼀些合情合理的设计要素通过刺激我们的五感和⾏为惯性带来⼀点“熟悉⼜陌⽣”的体验,运动和空间都是通过“身体”这个媒介对⼈产⽣作⽤的,身、⼼、环境三者之间的互动关系就这样构建起来了。我们通过结构、尺度、材质、颜⾊还有光影的营造来凸显这项运动的特质和优势,相互配合着对空间中的⼈产⽣更积极的影响,拥有更美好的体验。
Sports are considered to be the aspect of our lives that correlates most directly with the level of effort invested. Different types of sports yield different effects on individuals. Similarly, spaces also have varying impacts on people’s experiences. Both influences are mediated through the “body.” Thus, we align the structure, scale, materials, colors, and lighting to resonate with the essence of the sport, the historical architectural complex, and the brand of ARCH&ARCH.
▼入口接待处,Reception© OneMoodDESIGN 万慕设计
ARCH&ARCH 项目整体设计上追求宁静自然、舒展包容、简洁有力的氛围以及空间中的物、事、人还有运动之间同频共振的“呼吸感”。而客户与学员的使用反馈也告诉我们,这部分完成得很好。合适的空间设计会融入时间中也留在时间里。
As a result, the project presents an overall sense of tranquility, naturalness, expansiveness, simplicity, strength, and synchronization with the surrounding people and objects—a sense of “breathing.” It becomes integrated in time while leaving its mark on time.
▼休息空间,Leisure© OneMoodDESIGN 万慕设计
2-形式 Form 美学:为什么它看起来是这样的?情感吸引力:它如何吸引用户?执行:它是如何制作的?
Aesthetics: Why does it look the way it does? Emotional appeal: How does it engage the user? Execution: How is it made?
身心学向外部迈出一步就是具身认知,人们的精神体验要通过身体与物质世界联系。设计要走过感官体验和行为体验才能到达精神层面。我们希望学员们在空间中体会到“让一切自然发生”的氛围,这需要每一个元素和细节的贴合。
Embodied cognition is the next step in the field of somatic studies, where individuals’ mental experiences are connected to the physical body and the material world. Design must traverse sensory and behavioral experiences to reach the realm of the spirit. We hope that students can perceive the atmosphere of “letting everything happen naturally” within the space, which requires a seamless integration of every element and detail.
▼轴测分析图,axo© OneMoodDESIGN 万慕设计
首先,结合老建筑群本身红砖外墙和木质“伞”状顶的特色,让后续使用的材质都具有温暖亲人的质感。木头、洞石等天然材料摸上去都有微微的颗粒感,只用极少量的玻璃增加空间的轻盈质感。再将斜顶上的日光通过栅栏般排列的“廊顶”一直引入一层,让阳光告诉我们日夜交替和四季的温度。
然后,牺牲了大量的空间,让步给功能复合的大堂和 1VS1 教室,为的就是学员和教练都能最快地进入平静的状态并长久地保持专注。
最后,用最简洁沉稳的大地色系搭配极少的隔断,尽量用层高差来区分功能空间的分割,实现了空间开阔和平等性。运动中的每一个人都有充分的空间来移动身体,每一个人都是平等且重要的,会给人安全、平等且舒适的感受。
Firstly, we incorporate the distinctive features of the historic architectural complex, such as the red brick walls and umbrella-shaped wooden roofs, by employing materials that possess a warm and welcoming texture. Natural materials like wood and porous stone offer a subtle grainy sensation when touched, while a minimal amount of glass adds a sense of lightness to the space. We also utilize the sunlight from the slanted roof, directing it into the interior through a fence-like arrangement, allowing it to inform us of the alternation of day and night and the changing seasons. Furthermore, we sacrifice a significant amount of space to accommodate a multi-functional lobby and one-on-one classrooms. This sacrifice aims to enable students and instructors to quickly enter a state of calmness and maintain a sustained focus. Finally, we use a simple and serene earth-tone color scheme with minimal partitions, relying on variations in ceiling height to demarcate functional zones and achieve an open and egalitarian atmosphere. Every individual in motion has ample space to move their body, emphasizing equality and importance, while providing a sense of safety, equality, and comfort.
▼功能复合的大堂,The multi-functional lobby© OneMoodDESIGN 万慕设计
3-功能 Function 可用性:为什么可以轻松使用?效率:为什么它工作得很好?用户权益:它如何为用户服务?
Usability: Why can it be used with ease? Efficiency: Why does it work well? User benefit: How does it serve the user?
当空间中不必要的装饰性信息去除,设计关注所有维度的细节,那么空间的艺术性就凝结在结构、节奏等基础元素上。空间中的人就能体察运动和情绪本身,这种程度的自我体察是很难得且需要环境配合的。大而开放的大堂是为了人们从室外进入室内后在与工作人员及其他学员开放轻松的交流下自然进入平和的状态,次序感的细节安排让有没有强迫症的人都感到极度舒适,教室与大堂之间半透明的格栅能保证课堂私密性的同时透露出课堂中积极又专注的氛围,极简单纯的更衣等实用空间提醒人更快的进入“主线任务”,日光的温度和亮度、贴近大地的色彩还有原始自然的材质让我们知道调动起身体与世界同频,这些我们都在空间的日常使用中得到了验证,也在客户与学员的体验反馈中得到了肯定。
When unnecessary decorative information is removed from the space and design focuses on every dimension of details, the artistic essence of the space crystallizes in the foundational elements of structure and rhythm. People engaging in activities within the space can then focus on the movement itself while experiencing positive emotional impacts. The challenge of design lies in achieving both rationality and sensibility while maintaining aesthetics.
The large and open lobby is designed to facilitate a natural transition from the outdoors to the indoors, allowing individuals to enter a state of tranquility through relaxed interactions with staff and other students. The meticulous arrangement of details evokes a sense of order, ensuring extreme comfort even for those with OCD tendencies. The quiet yet open classrooms create a unified and favorable atmosphere for everyone to immerse themselves in. The utilitarian spaces, such as the minimalist and pure dressing rooms, serve as reminders to swiftly immerse oneself in the “main tasks.” The temperature and brightness of natural light, the earthy tones, and the use of raw and natural materials remind us of aligning our bodies with the world.
▼教室,Classroom© OneMoodDESIGN 万慕设计
设计的难度就在于合情合理、恰如其分的同时具有美感,我们当然不会把设计的作用仅停留在精确满足功能需求的层面。空间中的一切细节都组合成一种氛围,舒展而宁静、和谐而有力量,这种温润的美感就像山中的清泉,轻轻缓缓却源源不断。这一切正好契合着项目“让一切自然发生”,也契合着禅柔运动对身心的激活与平衡。
Of course, we don’t limit the impact of design to merely meeting functional requirements. Every detail within the space combines to create an ambiance—expansive and serene, harmonious and empowering. This soothing aesthetics, like a clear spring in the mountains, flows gently and continuously. All of this aligns perfectly with the concept of “letting everything happen naturally” in the project and resonates with the activation and balance of body and mind in Gyrotonic practice.
▼器械近景,Close-up of equipment © OneMoodDESIGN 万慕设计
4-区别
Differentiation
创新:为什么它是新的?品牌差异化:它如何支持品牌?
Innovation: Why is it new? Brand differentiation: How does it support the brand?
这⼀次我们在设计中强调了“身体”,强调了身、⼼、环境在感知维度的互动。这也正是这个项⽬与其他商业类型的不同之处,ARCH&ARCH 项⽬是⼀个关注“身体”关注“⼈”的品牌,相⽐较商业效率更多的是对这项运动的热爱,品牌希望通过推⼴这项运动让更多的⼈在快节奏的现代⽣活中找到释放压⼒和焦虑的出⼝,去体悟⽣活和⽣命本身的美好。我们要⼤声⽽凝练的表达这个具有⼈⽂关怀的品牌核⼼价值,因为与我们的设计理念不谋⽽合。我们将设计体验放在了装饰效果之前,让设计成为⼀件质感精良的毯⼦包裹住你,不奢侈不花哨,很舒适⼜不易察觉,只是默默的给你好的体验。也像禅柔运动:它不刺激,⽽是坚持⼀件事做下去,更好的变化就⼀直在发⽣。
This time, we emphasized the “body” in our design and highlighted the interaction between body, mind, and environment in the perceptual dimension. This is the point of differentiation between this project and other commercial types – expressing the brand’s self-identity loudly and concisely is our design’s starting point. We placed the design experience ahead of decorative effects, allowing the design to become a finely-textured blanket that envelops you. It’s comfortable and imperceptible, silently providing you with a good experience. The brand also aims to convey the characteristic of Gyrotonic movement to people: it’s non-stimulating, and as long as you persist, better changes keep happening.
▼顶层空间,Top space © OneMoodDESIGN 万慕设计
▼顶层空间细部,Top space details© OneMoodDESIGN 万慕设计
5-影响 Impact 贴合着“⼈”的⾏为与感受作设计,是因为我们理解设计需要创新但不为炫技。每⼀个空间都有相应的使⽤场景,对空间的设计我们基于对场景的理解和构想,不脱离真实但尽量美好。空间⽆法剥离其地域性和历史性,新建造的空间是⽣⻓在已有的环境上的,所有它必须与周遭的城市环境、⽼建筑群有机共⽣,这是我们的设计态度,让保留下的不⽣硬,让新建造的不突⺎,创新的设计有真实的历史作为扎根的⼟壤,历史也在设计的注⼊下焕发新的⽣命⼒。
Designing with behaviors that resonate with “people” is because we understand that design should be innovative without showing off. Every space has its corresponding usage scenario. For space design, we base it on our understanding and conception of the scenario, staying true to reality while striving for beauty. The preserved elements within the space reflect our attitude of coexistence with the old architectural complex. Space cannot be separated from its regional and historical context, so our design embraces coexistence, allowing the retained elements to fulfill their roles harmoniously within the overall design.
▼更衣室,Changing room© OneMoodDESIGN 万慕设计
▼卫生间,Toilet© OneMoodDESIGN 万慕设计
设计让空间有了语言,环境有了音阶,像是耳语低吟,在周身轻轻的说着,说着温暖的好听的疗愈的话语。
Design gives space a language, and this language is more like a whisper gently flowing throughout, speaking soothing and warm healing words.
▼平面图,floor plan© OneMoodDESIGN 万慕设计
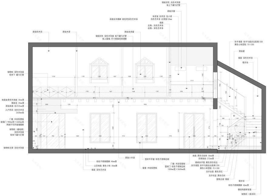
▼立面图,elevation© OneMoodDESIGN 万慕设计
项目名称:arch arch 婵柔空间
项目类型:瑜伽馆
项目设计:2023
完成年份:2023
设计团队:潘攀、张媛、陈泉夫、林澳
项目地址:中国湖北省武汉市江岸区武汉沿江大道蔡锷路 1 号智创空间 10 号楼
建筑面积:300㎡
摄影版权:OneMoodDESIGN 万慕设计
客户:arch arch 婵柔空间
材料:漆、木、砖
品牌:arch arch 婵柔空间
Project name:ARCH ARCH GYROTONIC Space
Project type:Yoga Studio
Design:OneMoodDESIGN
Design year:2023
Completion Year:2023
Leader designer & Team:Pan Pan / Zhang Yuan / Chen quanfu / Lin ao
Project location:Building 10, Zhichuang Space, No.1 Cai’e Road, Yanjiang Avenue, Jiang’an District, Wuhan City, Hubei Province, China
Gross built area: 300㎡
Photo credit: OneMoodDESIGN
Clients:ARCH ARCH GYROTONIC Space
Materials:Paint, Wood, Tiles
Brands:ARCH ARCH GYROTONIC Space
客服
消息
收藏
下载
最近

























































