查看完整案例

收藏

下载

翻译
Tlali Nantli
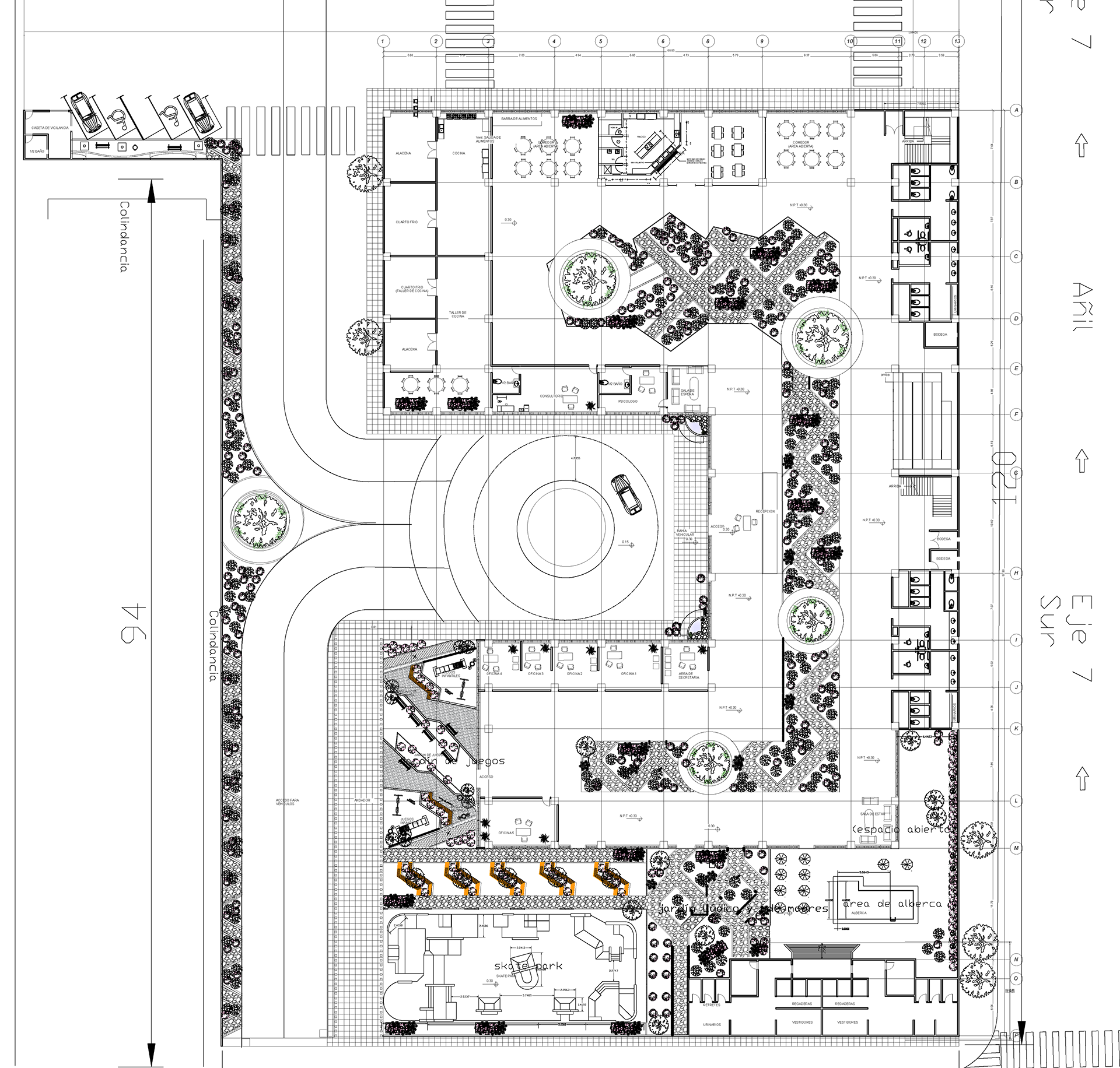
- Propuesta de espacio recreativo para niños y refugio para mujeres “Tlali Nantli” (Madre Tierra).- Ubicación: Granjas México, Iztacalco.
- Ciudad: Ciudad de México.
- Área: 3888 m2
El complejo Tlali Nantli es espacio que esta pensado para las madres que quieren acudir a un espacio educativo y recreativo con sus hijos, el espacio está pensado para niños lactantes hast para pre-adolescentes.
El espacio cuenta con:
- Skate Park
- Jardín Lúdico
- Comedor
- Cafetería
- Consultorio
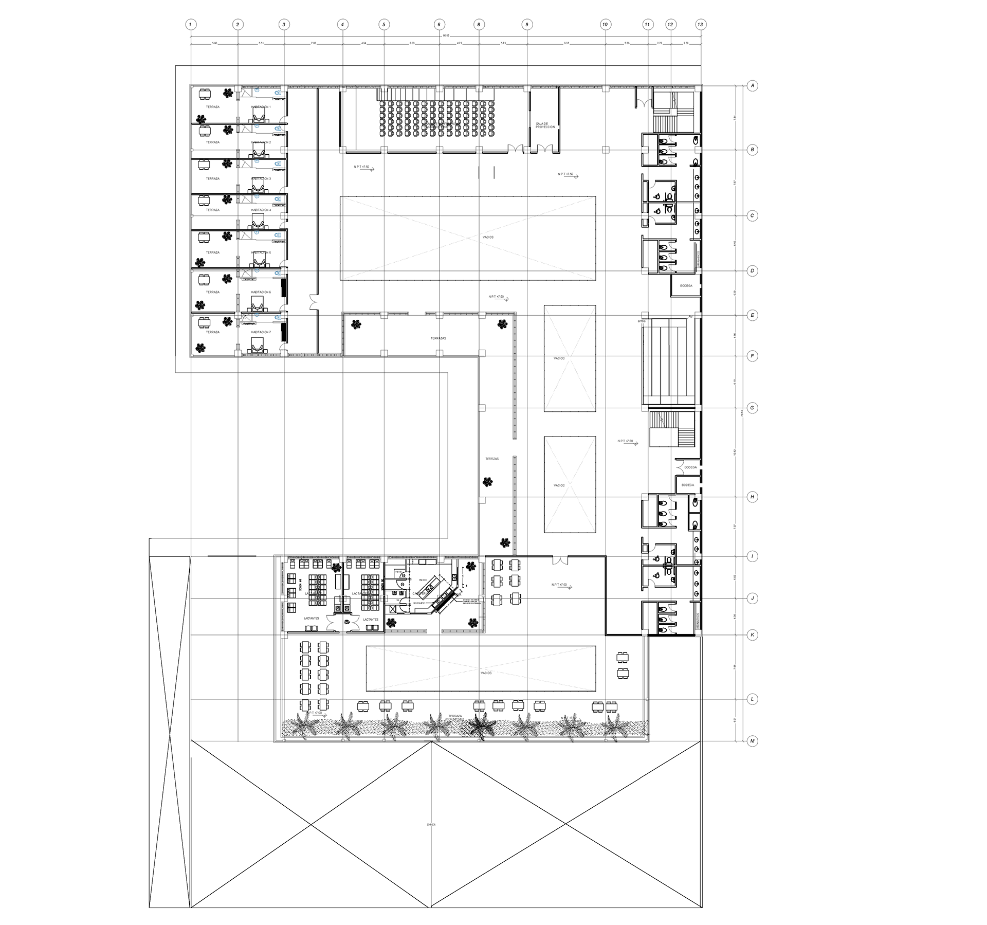
- Alberca
- Salas de cómputo
- Salas de lactancia
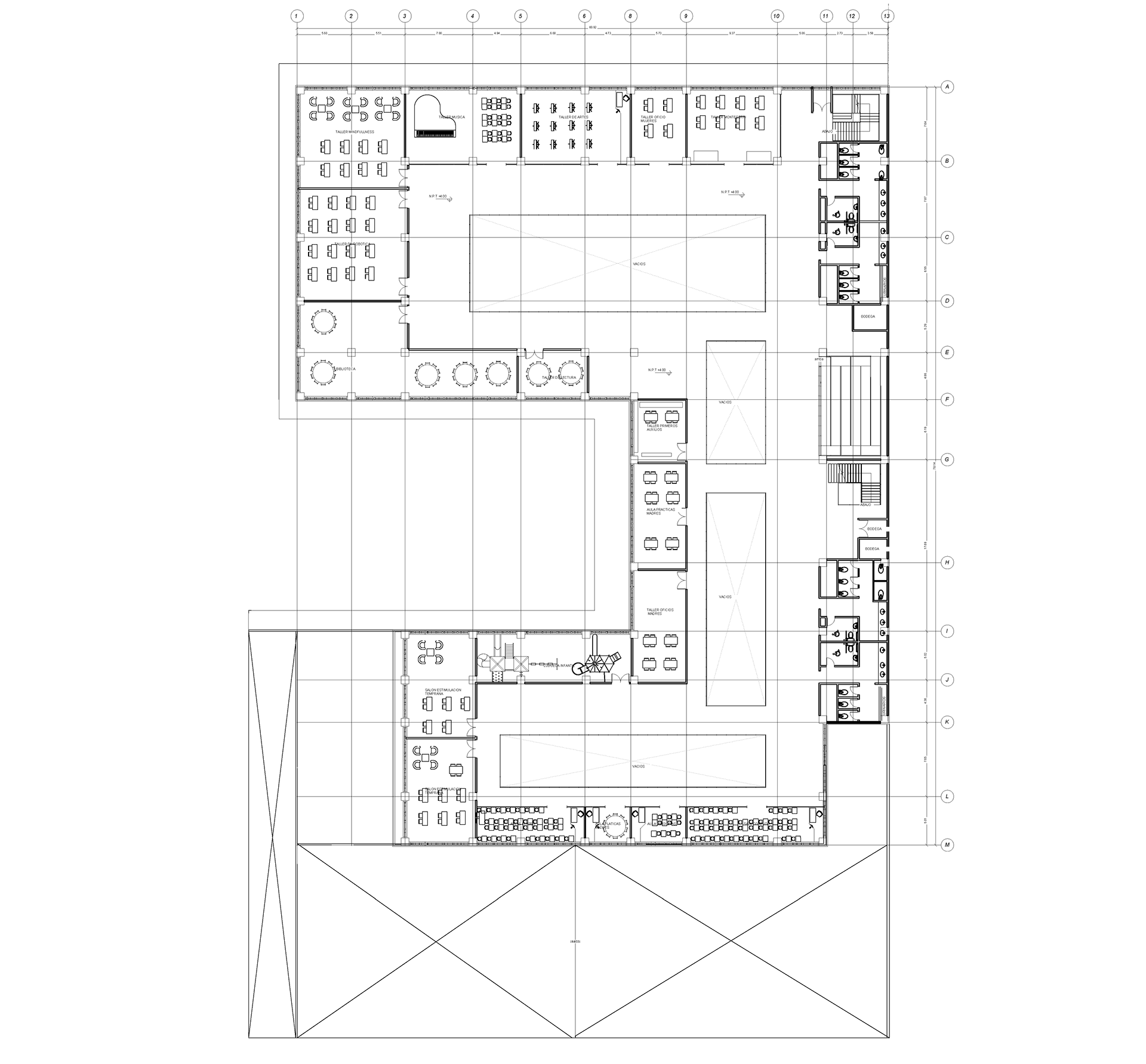
- Taller Mindfullness
- Taller de Música
- Taller de Robótica
- Taller de Artes
- Taller de oficio para mujeres
- Taller de idiomas
- Huerto urbano
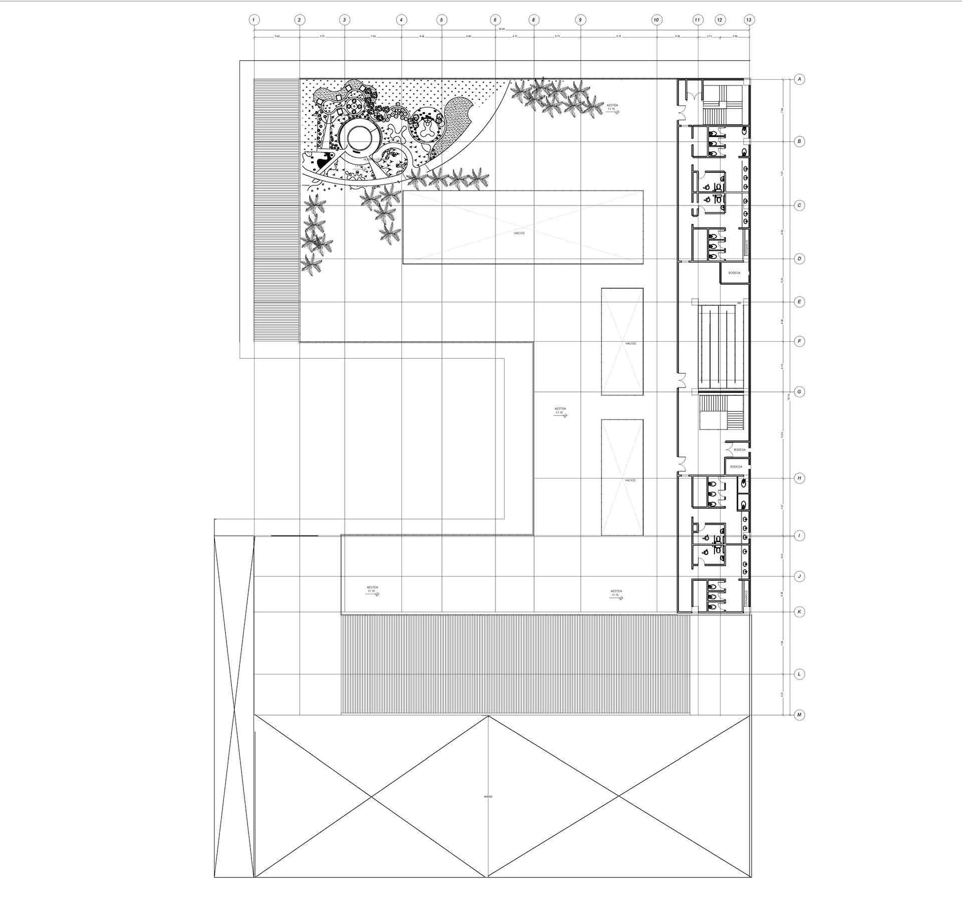
El diseño del espacio busca ser acogedor, colorido, con mucha vegetación al exterior y al interior teniendo un jardín en la parte central de los grandes vestíbulos, que sirven como un espacio recreativo y al tener descubierto su parte superior, las plantas obtienen mayor cantidad de luz solar y de agua pluvial, que a su vez el jardín sirve como un elemento de capitación de agua pluvial para el conjunto, además que con ello se pueden realizar talleres sobre integración ambiental o de reciclaje y composta.
LÁMINAS DE PRESENTACIÓN
(Concurso Académico de escuelas de Arquitectura UIC)
Pensando en los niños preescolar hasta los pre-adolescentes, existen varios espacios destinados a la educación de los mismos, así los niños que visiten el espacio podrán tomar actividades extra-escolares, de igual manera existen varias zonas para las madres, para así impulsar a las mujeres con talleres para que puedan realizar actividades a las que puedan obtener algún beneficio mas adelante e incluso espacios de relajamiento para las madres.
PLANTAS ARQUITECTÓNICAS
-Dibujo arquitectónico: AutoCAD y Revit
-Modelado y ambientado: Revit y SketchUp
-Renderizado: D5 Render
-Post-Producción: Photoshop y Lightroom
-Láminas de presentación: Illustrator
客服
消息
收藏
下载
最近














