查看完整案例

收藏

下载
朗诗住宅是典型的单间一居室公寓。最小宜居住宅是一个由来已久的课题,讨论从二战后延续到现在。为应对如今城市高密度的居住需求,也是逐利的商业逻辑驱动下,地产开发商推出了各式各样的小户型方案,但大约都指向了制式且乏味的体验。这些公寓通常是一览无余的,依照各活动的最小尺度需求平铺直叙地布置各个功能。理想的单间一居室应接近于“庇护所”这种原初的建筑类型,有限的空间意味着每平米都要有效地回应住宅主人个体化的居住需求。
Landsea home is a typical one-bedroom apartment. Minimum livable housing is a subject of long standing. In response to today’s high-density urban living needs, and driven by profit-driven business logic, property developers have come up with a wide variety of small apartment solutions, but they all point to an approximately standardised and boring experience. These apartments are usually unobtrusive, with the functions laid out flat according to the minimum scale required for each activity. The ideal one-bedroom apartment is close to the original building type of ‘shelter’, where the limited space means that every square metre has to respond effectively to the individual needs of the homeowner.
▼住宅入口,Entrance of apartment © Howie
设计初期,我们将最核心的睡眠空间思考成一个岩石般的盒子置入平面,其余功能围绕它布置,借由盒子的有机形态划定出有趣的剩余空间。这一想法受限于公寓层高,并没达到理想效果。因此,我们尝试转换视点,把岩石的概念放大到公寓整体,将其想象成是一处山体,而睡眠空间就仿佛是采石开凿后留下的岩穴空腔。
At the beginning of the design process, we thought of the core sleeping space as a rock-like box placed into the floor plan, around which the rest of the functions were arranged, with the organic form of the box delineating the interesting residual space. This idea did not work well due to the height of the apartment. Therefore, we tried to change the perspective and enlarge the concept of rock to the home as a whole, imagining it as a mountain, and the sleeping space as a cavity left after quarrying.
▼轴测图,Axonometric drawing © 衡建筑
“岩穴居住”主题的另一个来源是西班牙雕塑家爱德华多·奇利达(Edoardo Chilida)名为“光之屋”“建筑礼赞”等一系列雪花石膏雕塑作品。与代表东方气韵的玉石相同,雪花石膏这种媒材兼有轻盈和厚重的特质,同时拥有实在的形态和通透的光感。奇利达挖空“石块”内部形成空间,光线顺着开口照射内部,实体感与透明感并存。雕塑外观有着自然造物的凹凸肌理,内部则呈现人工痕迹的秩序和平整。奇利达作品矛盾但平衡的状态,是我们想赋予这个住宅空间的精神气质。
Another source for the cave dwelling theme is a series of snowflake plaster sculptures by Spanish sculptor Edoardo Chilida entitled House of Light, In Praise of Architecture. Like jade, which represents the Orient, snowflake plaster is a medium that combines the qualities of lightness and heaviness: a solid form and a translucent sense of light at the same time. Chillida has hollowed out the interior of the ‘stone’ to create a space in which light shines through the opening, creating a sense of solidity and transparency. The exterior of the sculpture has the concave-convex texture of a natural object, while the interior shows artificial traces of order and flatness. The paradoxical but balanced state of Chillida’s work is the spirit we want to give to this residential space.
▼睡眠区,Sleeping area ©Howie
▼弧墙细部,Detail of curved wall ©Howie
▼开口,Opening on the wall ©Howie
睡眠区的内部被视作一个巨大的家具来设计,如《书房中的圣哲罗姆》所绘的场景。三面矮墙屏风围合成一个精神结界。木制地台将区域抬高,床垫直接置于地台上,古代隐士们席地而卧的栖居方式有益内心的平和。天花依循矮墙边界线的正投影向上凹,在视知觉的补形作用下,“岩穴”变得更加可感。在“岩壁”上凿出洞口,自然光透过这些洞口和墙顶间的狭缝照射到房间各处。
The interior of the sleeping area was designed as if it were a huge piece of furniture, as in the scene painted in Saint Jerome in His Study. Three low wall screens enclose a spiritual boundary. The wooden floor elevates the area and the mattress is placed directly on the floor, the ancient hermit’s habitat of lying on the ground for inner peace. The ceiling follows the projection of the boundary line of the low wall and is concave upwards, making the cave more palpable through the visual perception of the complementary shape. Holes are cut into the rock wall, and natural light shines into the room through these holes and the slit between the wall and the ceiling.
▼开放式厨房与就餐区,Open kitchen and dining area©Howie
▼功能区域,Function area ©Howie
▼开放式厨房,Open kitchen ©Howie
▼开放式厨房细部,Detail of the open kitchen ©Howie
▼就餐区,Dining area ©Howie
其余的生活必要功能围绕着睡眠区布置,有管线要求的功能尽可能不做大幅度的调动以免造成拆改成本的增加。由入口及远,依次布置了开放式厨房和卫生间。橱柜在尾端作一处弯折,与蜿蜒的路径相合。在矮墙屏风、卫生间隔墙与橱柜三者夹出的空间中安排了就餐区。受到意大利建筑师翁贝尔托·里瓦(Umberto Riva)“未完成”形式的启发,我们尝试在家具设计上跳脱“应有之形”的局限,定制的大理石圆桌切去一角与隔墙相嵌合,样式更有趣外也节省了空间。
The rest of the necessary living functions are arranged around the sleeping area, and the functions with piping requirements are not drastically moved as much as possible to avoid increasing the cost of demolition and alteration. From the entrance and beyond, the open plan kitchen and bathroom are arranged in sequence. Cabinets are curved at the end to meet the meandering path. The dining area is arranged in the space sandwiched between the low wall screen, the bathroom wall and the cabinets. Inspired by Italian architect Umberto Riva’s ‘unfinished’ forms, we tried to break away from the confines of the ‘basic form’ in the furniture design, and customised a marble round table with a corner cut out to fit in with the partition wall, making it more interesting and saving space.
▼睡眠区过道,Corridor in sleeping area ©Howie
▼休憩区,Living area ©Howie
▼休憩区窗细节,Detail of the window in living area ©Howie
休憩区布置在尽端靠窗位置,到达此处需循着睡眠区圆弧矮墙绕行,其体验仿佛是在山间穿行:初极狭才通人,而后豁然开朗。沙发扶手边设计了一个下翻板的梳妆镜柜,与窗在一个完整的矩形内拼合,光的反射与透射同时存在,空间也在感知层面上得到了延展。
The living area is located at the end of the room by the window. To reach it, one has to follow the short rounded wall of the sleeping area, which makes the experience as if walking through the mountains. Next to the sofa, a vanity mirror cabinet with downward-facing panels is designed to merge with the window in a complete rectangle, so that the reflection and transmission of light exists at the same time, and the space is also extended on a perceptual level.
▼洗漱间,Washing room ©Howie
▼衣挂细部,Detail of hook ©Howie
住所应该能提供一种慰藉。我们希望能对生活的本质作个历史回溯,回到最原初的居住状态,尽可能剥离掉现代化带来的非必要要素。设计过程中与业主频繁的沟通也帮助她梳理和审视自己的日常起居,这个过程就是一场生活的练习。
Dwellings should provide a kind of solace. We hope to take a historical retrospective look at the nature of human life and return to the original state of living, stripping away as much as possible the non-essential elements brought about by modernisation. Frequent communication with the owner during the design process also helped her to sort out and review her daily life, this process is a training of life.
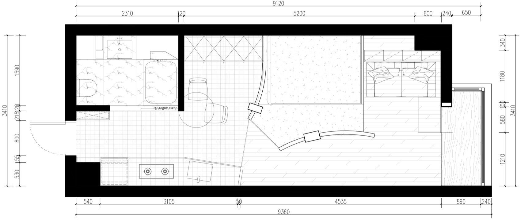
▼平面图,Floor plan © 衡建筑
▼剖面图,Section ©衡建筑
项目名称:朗诗住宅
设计团队:周睿哲,杨竣博,张思羿
施工单位:南京安坭装饰设计工程有限公司
项目地址:南京
建筑面积:33㎡
设计时间:2023 年 11 月-2024 年 3 月
建设时间:2024 年 8 月
材料:大理石、手工砖、胡桃木饰面、马来漆
摄影:Howie
客服
消息
收藏
下载
最近
























