查看完整案例

收藏

下载
鸡龙山风景优美,被认为是韩国风水地理四大名山之一,继智异山之后被指定为国家公园。著名的寺庙如东鹤寺、甲寺和新元寺,以及韩国第三军总部鸡龙台都坐落于此。每年四月樱花盛开时,游客纷至沓来,全年都有登山者前来探访。
Gyeryongsan Mountain has beautiful mountains and is considered one of the four most famous mountains in Korea in terms of feng shui geography, was designated as a national park after Jirisan Mountain. Famous temples such as Donghaksa, Gapsa, and Shinwon Temple, as well as the headquarters of Korea’s 3rd Army, Gyeryongdae, are located here. In April, when cherry blossoms bloom, visitors flock to the area, and hikers visit year-round.
▼外观概览,overall of exterior © mongsang._
▼室内空间概览,overall of interior © mongsang._
东鹤寺的通道两旁布满了咖啡馆和餐厅,游客络绎不绝。然而,这栋建筑位于东鹤寺附近的一个宁静村庄,远离了繁忙的氛围,建筑的功能为一家咖啡馆。场地原本有高差,但平整工作已完成,因此无需额外的土木工程。场地后方的住宅也归本项目业主所有,因此,在设计中不必担忧因咖啡馆而引起的观看权问题。
The access road to Donghaksa Temple is lined with cafes and restaurants, always busy with tourists. This building is in a quiet village near Donghaksa, a little removed from the busy atmosphere, and was planned as a café. The site had a step difference, but leveling work had already been completed, so no additional civil engineering was required. There was a house just behind it, and this house was in use by the owner, reducing the burden of the viewing rights issue due to the cafe.
▼鸟瞰,aerial view © mongsang._
▼顶视图,top view © mongsang._
此地景色开阔宁静,鸡龙山的群峰静谧安详。设计的重点旨在为建筑引入最理想的景观视野,因此,建筑师将咖啡馆放置在场地中较高的位置以最大化视野。停车场被规划在场地低处,长墙从入口延伸至停车场,引导游客进入。停车场后方设计了一个斜坡,方便残障人士通行,形成了一条轻松的建筑路径。
The landscape was vast and calm, and the peaks of Gyeryongsan were serene. The design focused on capturing the landscape, with the building placed higher to maximize the view. The parking lot was placed at a lower level, with long walls leading visitors from the entrance to the lot. A slope behind the parking lot was designed for disabled access, creating a gentle architectural trail.
▼建筑位于场地高处,停车场位于低处,
the building is located on the high side of the site and the parking lot is located on the low side © mongsang._
建筑体量横向延展,以将周围环境的全景引入室内,并最大化建筑与景观的接触。为了应对与周围环境互动不够积极的问题,建筑呈140度角弯曲,形成两个翼状结构,增强了与景观的互动感,并为村庄增添了韵律感。
▼建筑呈140度角弯曲,形成两个翼状结构,
the building was bent at a 140-degree angle, forming two wing shapes © mongsang._
▼正立面,front facade © mongsang._
▼户外楼梯,exterior stair © mongsang._
混凝土的檐廊框住了景观,而在建筑外部,这些檐廊则强调了建筑的形态。首层设置了将两翼分隔的户外空间,丰富了建筑的多样性,增强了翼状结构的悬浮效果。咖啡馆背后还设计了一个生态景观,与周围的自然环境形成对比。
The concrete eaves framed the landscape, while outside, they emphasized the building’s form. A separate gap space on the first floor added diversity and enhanced the floating effect of the wings. An ecological landscape behind the café contrasted with the surrounding nature.
▼咖啡馆内部,interior of the cafe © mongsang._
▼细部,detail © mongsang._
▼半户外空间,the separate gap space © mongsang._
▼二层空间,upper floor space © mongsang._
▼明亮开放的氛围,open and bright ambiance © mongsang._
▼由室内看后花园,viewing the garden from interior © mongsang._
照明设计简洁,沿着建筑的线条布置,以进一步突出体量的形态。夜晚时,建筑的锐利线条通过灯光的映衬变得柔和,重新显现。外部材料极简,以与环境融为一体,鸡龙山四季变换的风景则成为室内的美丽背景。
Lighting was subtle, following the building’s lines to preserve its shape. At night, the sharp lines softened and reappeared through illumination. The exterior materials were minimal to blend with the environment, and the interior was decorated with landscape views of Gyeryongsan Mountain that changed with the seasons.
▼夜景,night views © mongsang._
▼简洁美观的线性照明,simple and beautiful linear lighting © mongsang._
▼楼梯夜景,night view of the staircase © mongsang._
▼后花园夜景,night view of the rear garden © mongsang._
▼总平面图,master plan © Archirie
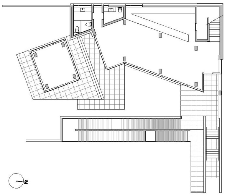
▼一层平面图,ground floor plan © Archirie
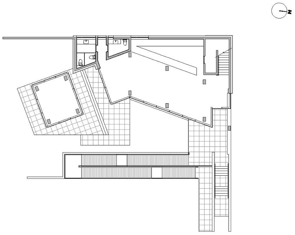
▼二层平面图,upper floor plan © Archirie
▼屋顶平面图,roof plan © Archirie
▼剖面图,section © Archirie
Project size 292 m2
Site size 942 m2
Completion date 2024
Building levels 2
客服
消息
收藏
下载
最近

































