查看完整案例


收藏

下载
“在摩天大楼林立的时代,大家都习惯了活在云端,而我却想让人们回忆起曾经生活在平地的记忆,如《三丁目的夕阳》里那温暖宁静的阳光中,曾无数次回到称为家的地方。”
——隈研吾
In the era of skyscrapers, everyone was accustomed to living in the clouds, but I want people to recall memories of living on flat ground, such as the warm and peaceful sunshine in "The Sunset of the Three Kingdoms," where they returned home countless times.
——Kengo Kuma
本案位于金科廊桥水岸,原始建筑面积为858㎡,改造后建筑面积为1009㎡。原本是样板间的独栋别墅,历经4年的全拆改造,完美诠释了“天人合一”的智慧,打破既定印象,重塑了极简禅意的格调,周遭不再堆满欲望,“建筑的目的不是为了将人类困住,而是要让人的身心获得自由”。
This case is located on the waterfront of Jinke Langqiao, with an original construction area of 858 square meters and a renovated construction area of 1009 square meters. The original single family villa is a model room. After four years of full demolition and transformation, it perfectly interprets the wisdom of "Unity of Heaven and humanity", breaks the established impression, and reshapes the style of minimalist Zen. There is no longer a lot of desire around. "The purpose of building is not to trap people, but to let people get free physically and mentally.".
隈研吾曾在《负建筑》中,强调人与自然的关系,本案设计师以更艺术化、人性化、差异化的表达,提供了人与自然交互的新维度,消弭空间的界限,让自然可观、可闻、可触。化繁为简,用尽量少的物质语言,传递尽可能丰盈的精神。建筑好像真的“消失”了,取而代之的是无边的温暖和惬意。
Kengo Kuma once emphasized the relationship between man and nature in Negative Architecture. With more artistic, humanized and differentiated expression, the designer of this case provides a new dimension of interaction between man and nature, eliminates the boundaries of space, and makes nature visible, audible and touchable. Simplify complexity and use as little material language as possible to convey as abundant a spirit as possible. The architecture seems to have truly "disappeared", replaced by boundless warmth and comfort.
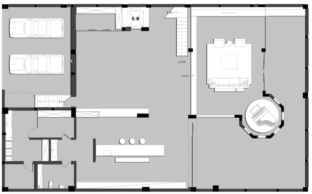
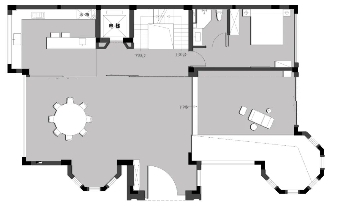
平面图
(-1F、1F、2F、3F)
01.
下沉式庭院Courtyard
利用钢板挑檐的方式内敛建筑气质,聚集多重自然元素,触发自然造境的张力。在下沉式庭院中布置锦鲤池,房前隆起的树冠与低矮植被形成反差,携同饱满绣球花,唱和庭院静美而活跃的生机,一家人漫步其中,温情与幸福由内而发。
The use of steel plate eaves to introverte the architectural temperament, gather multiple natural elements, and trigger the tension of natural creation. The koi pond is arranged in the sunken courtyard. The raised tree crown in front of the house forms a contrast with the low vegetation. With the full Hydrangea macrophylla, it sings the quiet, beautiful and active vitality of the courtyard. The family walks in it, and warmth and happiness come from inside.
02.
会客厅Living room
负一层原本给人的感知是阴暗和潮湿的,设计以人的需求为靶向,将墙体“打开”,与下沉庭院结合,强化视觉延伸的舒畅感与开阔感。“切开”楼板让光影和风在空间内自由流动,通过“适度放弃”达到“救赎整体”的效果。
The original perception of the negative floor was dark and humid, with the design targeting human needs, opening the walls and combining them with the sunken courtyard to enhance the sense of comfort and openness of visual extension. "Cut" the floor to let light, shadow and wind flow freely in the space, and achieve the effect of "redeeming the whole" by "moderately giving up".
03.
茶室Teahouse
茗茶区采用开放式格局联通庭院与室内,凭借化繁为简的创造思维,辐射出静谧安和的氛围。庞大的建筑好像与室外的景色连成一体,人与空间、自然产生了氤氲的联系,呈现了动静相宜的诗意状态。
The tea district adopts an open layout to connect the courtyard and interior, radiating a serene and peaceful atmosphere with the creative thinking of simplifying complexity. The massive building seems to be integrated with the outdoor scenery, creating a dense connection between people, space, and nature, presenting a poetic state of harmony between motion and stillness.
04.
玄关Porch
由空间、光影、形体组成的美学表达,以明与暗、虚与实、紧与散、柔与刚、暖与凉的对比关系,密合着阴阳之道,尽可能弱化人工痕迹,让自然气息接手造境意识,树立“身融于境,境通达灵”的最佳效果。
The aesthetic expression composed of space, light and shadow, and form, with a contrasting relationship between brightness and darkness, emptiness and reality, tightness and dispersion, softness and hardness, warmth and coolness, closely integrates the principles of yin and yang, weakens artificial traces as much as possible, allows natural breath to take over the consciousness of creating the environment, and establishes the best effect of "integrating the body into the environment, and the environment is clear and spiritual".
05.
客餐厅Guest Restaurant
白昼期间,风晓竹韵,吹响瑟瑟之声,摇曳翩然之姿,定格青翠框景,走进这一场域,尘世的纷扰便自然消散了。设计讲究“顺势而为”,同时将“人性”融入其中,充分表达了居住者的精神信仰,实现了情景交融的理想生活。
During the day, the wind dawns on the bamboo rhyme, the rustling sound is blown, the graceful posture is swayed, and the green frame scenery is frozen. Entering this field, the troubles of the world naturally dissipate. The design emphasizes "following the trend" and integrates "human nature" into it, fully expressing the spiritual beliefs of the residents and achieving an ideal life that blends emotions and scenery.
06.
楼梯Stairs
白韵之息,折转向上,贯通层级之间的动态与趣致,借由清晰的线与面,充分体现自然光影的韵律,萦绕出流动感与宁静感。设计,让楼梯不止于过渡,更成为了一件艺术品,激起人对空间的探索欲。
The breath of white rhyme turns upwards, connecting the dynamics and interest between levels. Through clear lines and surfaces, it fully reflects the rhythm of natural light and shadow, lingering with a sense of flow and tranquility. Design makes the staircase not only a transition, but also a work of art, inspiring people's desire to explore space.
07.
卧室Bedroom
隈研吾说过:“建筑师应该变得谦逊,坚持探索物质存在的方式与逻辑,发掘物质与身体的关系性。”受空间深度与光照角度的影响,留白基底衍生出惬意松弛的气韵,向人释放着温暖的善意。
Kengo Kuma said: "Architects should become modest, insist on exploring the way and logic of material existence, and explore the relationship between material and body.
客服
消息
收藏
下载
最近

























































