查看完整案例

收藏

下载

翻译
Architects:AsNow Design & Construct
Area:540m²
Year:2024
Photographs:Mohammad Hossein Hamzelouei
Manufacturers:Dimeh,kasra,shayco,tscoglass
Lead Architects:Solmaz Tatari, Ehsan Tavassoli
Design Team:Nila Shahmohammadi, Farid Rajabi
Detail Design Team:Masoumeh Shasti
Executive Managers:Bahman Zaree, Soheil Sabili
Graphics:Neda Jahantab
Clients:Eng.Hosseini, Dr.Mehdinejad
Mechanical Engineering:Mehdi Mehravaran
Civil Engineering:Farhad Bahrami
Construction Company:AsNow Design and Construct
City:Kuhsar
Country:Iran
Text description provided by the architects. The proliferation of villas on Tehran's outskirts reflects more than a desire to escape the city's clamor and density. These homes embody a spirited pursuit of leisure and conviviality. The dynamic interplay of indoor and outdoor spaces, coupled with a playful exploration of different design eras, creates an atmosphere of intrigue and vitality. These villas are stages for the celebration of life, where residents and guests alike can wander, discover, and immerse themselves in a world of endless fascination. Spaces that offer a heightened incentive to stimulate the taste and curiosity of their subjects, where the unexpected leaves a special sensory quality in the mind of the viewer. The play of solid and void volumes, diverse paths, and stairways, not only strengthens the permeability of spaces but also offers a potential opportunity for viewers to climb over the building and become one with the fluidity of the spaces as their memories evolve.
The Voids, with such inclinations to combine void spaces within a relatively ordered and static box, began to grow. The villa, due to its openness on two fronts (north and west, facing desirable views and devoid of neighbors) and its closure on the other two sides (due to the site of potential eastern and southern neighbors), chose a combined extroverted-introverted typology; an extroverted building that embraces a variety of internal courtyards and intermediate spaces. The maximum northern courtyard, which maintains the greatest distance from the building, showcases a relatively transparent and extroverted building upon entry, while the minimal southern courtyard with its various light shafts creates small interior spaces."
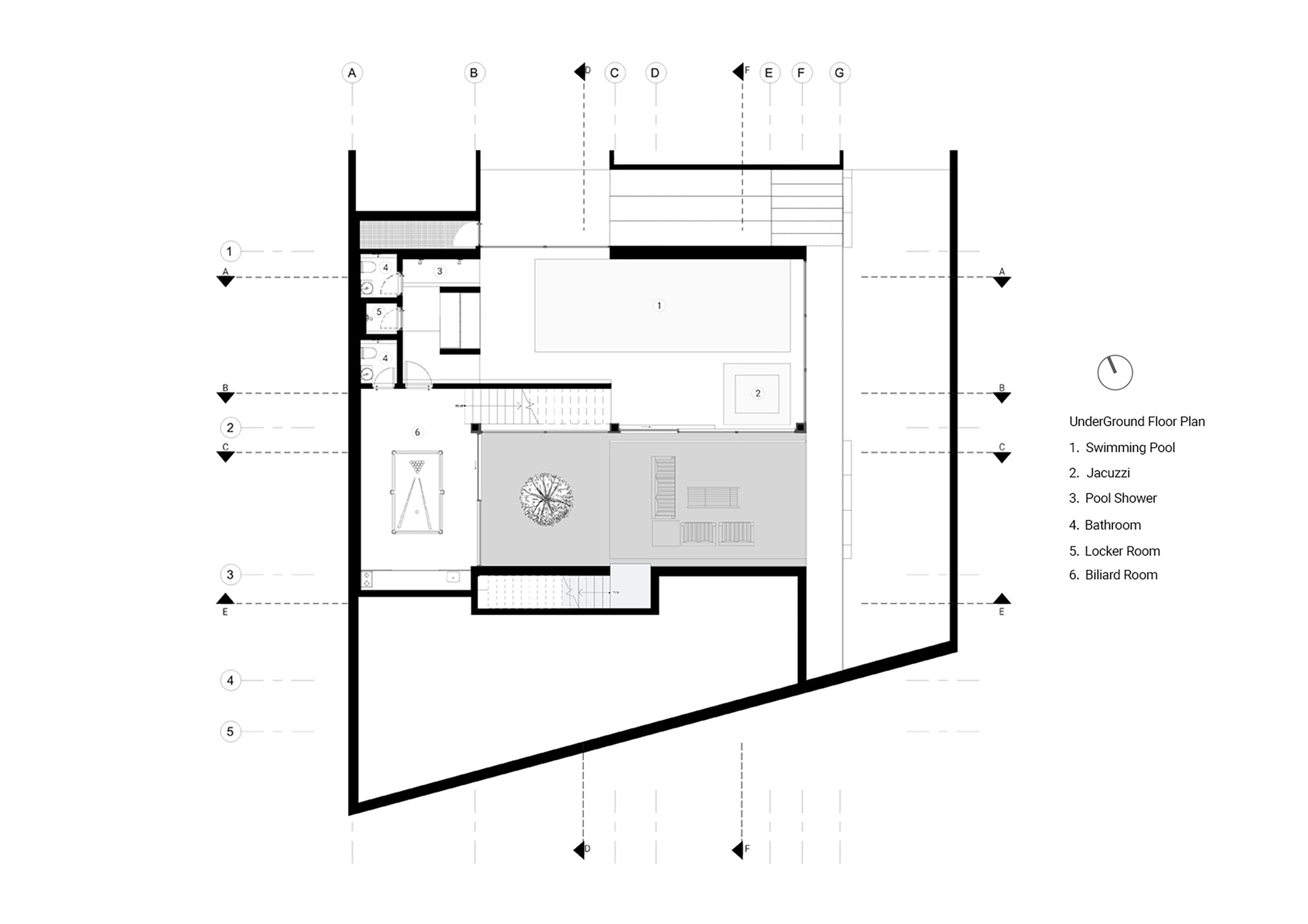
The semi-central courtyard, nestled within the heart of the project, engages with both covered and open voids on all three floors, maintaining a degree of continuity. Like a sturdy trunk, it gathers spaces around itself and conducts light into the depths of the basement. In this deepest interior courtyard, a relatively old and valuable tree has been planted, serving as a marker of the passage of time for the residents. As it grows taller, it will have an increasingly prominent presence in the interior spaces. Simultaneously with the experience of approaching the building and observing it from its open facades, the project's placement on the site endeavors to maximally suspend the volume from its context. The minimal visual connection of the building with the northern courtyard, through the use of a long, latticed stair and seating area, provides a different sensory quality to the experience of sitting and watching the playground.
Additionally, it creates a cozy and unique space in the northern underground passage. In this way, the building visually and implicitly seeks to preserve its cubic nature and enhance its sculptural quality. Although the program of the floors follows the conventional division into leisure (basement), living (ground floor), and nighttime habitation (first floor), the continuous connection of void spaces with diverse access possibilities, which do not necessarily penetrate the interior spaces, implicitly allows for wandering and maximum use of the capacity of enclosed void spaces at different levels (vertical and horizontal accesses within the building and site allow for continuous presence and exploration in most outdoor spaces). In addition, the presence of voids organizes the rooms as islands and, in the role of an effective character, their brick color and material become active in the background sequence to enliven the interior space.
Therefore, the solid spaces are marked with a lighter white color, and the void spaces have a heavier concentration of brick, forming a duality of light-filled and heavy-void spaces. In this way, the presence of various terraces and courtyards, alongside public and private spaces, seeks to respond to the natural human need to benefit from nature, whose air outside the bustling city of Tehran shows a more welcoming face to its residents.
Project gallery
客服
消息
收藏
下载
最近















































