查看完整案例

收藏

下载
本项目是长崎县五岛列岛福江岛上的一栋旧民宅的改造,设计者为其赋予了民宿和私人民宅的功能。
The plan is to renovate an old private house on Fukue Island in the Goto Islands, Nagasaki Prefecture, into a guest house and private residence.
▼夜览外观,Overall view © tomoyuki kusunose
▼建筑立面,Facade © tomoyuki kusunose
▼建筑屋顶,Roof © tomoyuki kusunose
这栋住宅坐落于Abunze海岸边,设计者希望业主能够在房间中欣赏到海边的风景,所以他们安装了面朝大海的窗户,客厅处安装了一扇与地平线相呼应的长窗。
The Abunze Coast stretches out in front of the house, and we wanted to be able to see this scenery from the rooms. So, we installed windows facing the sea in each room, and the living room window is a long, dynamic window that responds to the horizon.
▼入口空间,Entrance space © tomoyuki kusunose
▼室内空间概览,Overall view of interior space © tomoyuki kusunose
▼客厅,Living room © tomoyuki kusunose
▼客厅的长窗,Long window at living room © tomoyuki kusunose
▼客厅材质细部,Material details at living room © tomoyuki kusunose
为了适应当地岛屿的自然环境,设计者在本项目中尽可能地使用了天然材料,保持了简单的空间结构,为业主打造了一个温暖且现代的房屋。
In addition, to respond to the natural environment surrounding the island, we planned to use natural materials as much as possible, and by keeping the spatial composition simple, we aimed to create a space that gives a warm yet modern impression.
▼餐厨空间,Kitchen and dining area © tomoyuki kusunose
▼餐厨座椅,Furniture at kitchen and dining area © tomoyuki kusunose
▼卧室,Bedroom © tomoyuki kusunose
▼楼梯,Stairs © tomoyuki kusunose
▼卫生间,Toilet © tomoyuki kusunose
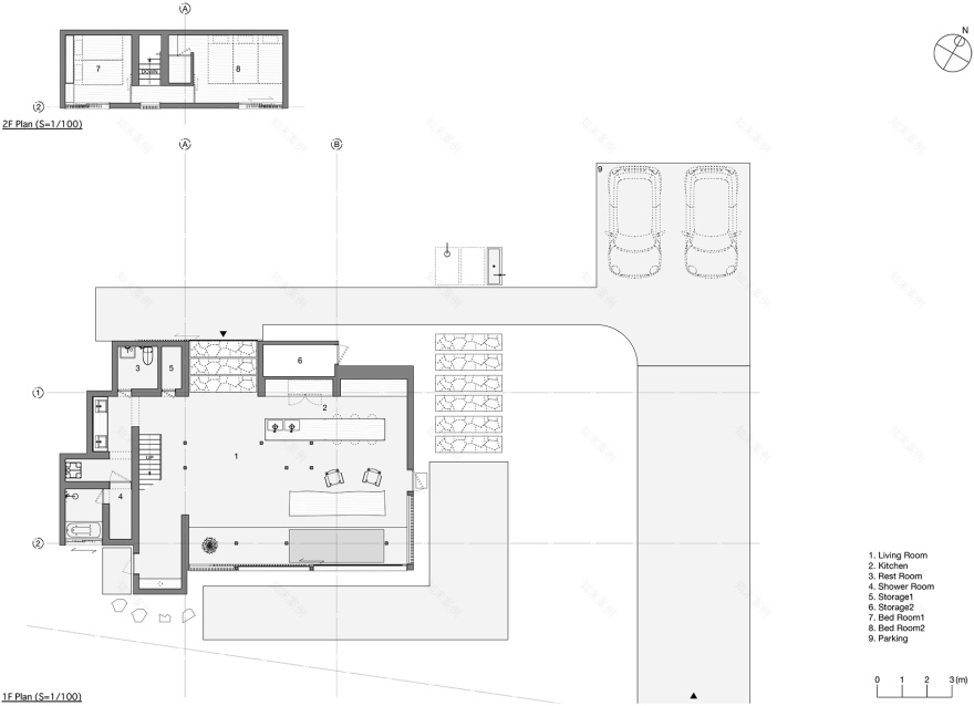
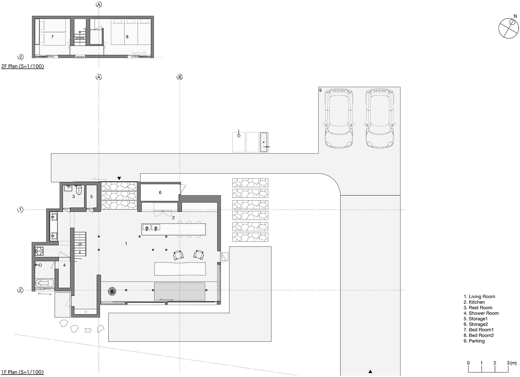
平面布局方面,因为业主希望这栋房屋不仅作用私人居住,还能够提供民宿功能,所以设计者在房屋中央打造了一个大的起居空间,作为室内的枢纽,连接不同房间的同时还能够促进居住者之间的交流。设计者模糊了室内外之间的界限,住在这里的人能够充分享受这座小岛上丰富的自然资源。
In terms of the floor plan, as the client is considering using the house not only as a private residence but also as a guest house, we have created a large living room at the center of the sequence to act as a hub for the space. This will promote communication between users, and by connecting the rooms in a continuous manner, we have blurred the relationship between the inside and outside of the house, creating a plan that allows visitors to experience the island, which is rich in nature, to the fullest.
▼平面图,floor plan © Souta Yoriki Design Office
Address: Goto-shi, Nagasaki, Japan
Usage: Private Residence
Scale: 1F_98.2m2 / 2F_ 20.5m2
Design: Souta Yoriki
Construction: Kosho-Takasho
客服
消息
收藏
下载
最近























