查看完整案例

收藏

下载

翻译
Architects:Atlas Architects
Area:20m²
Year:2024
Photographs:Max Hart Nibbrig
Manufacturers:BIA Beton,Reynears
Architectural Design:Carlos Callejo, Jordy Vos
Contractor:FDJ Timmerwerken
Structural Engineers:De Ingenieursgroep
Metal Cladding:Siris BV
City:Bussum
Country:The Netherlands
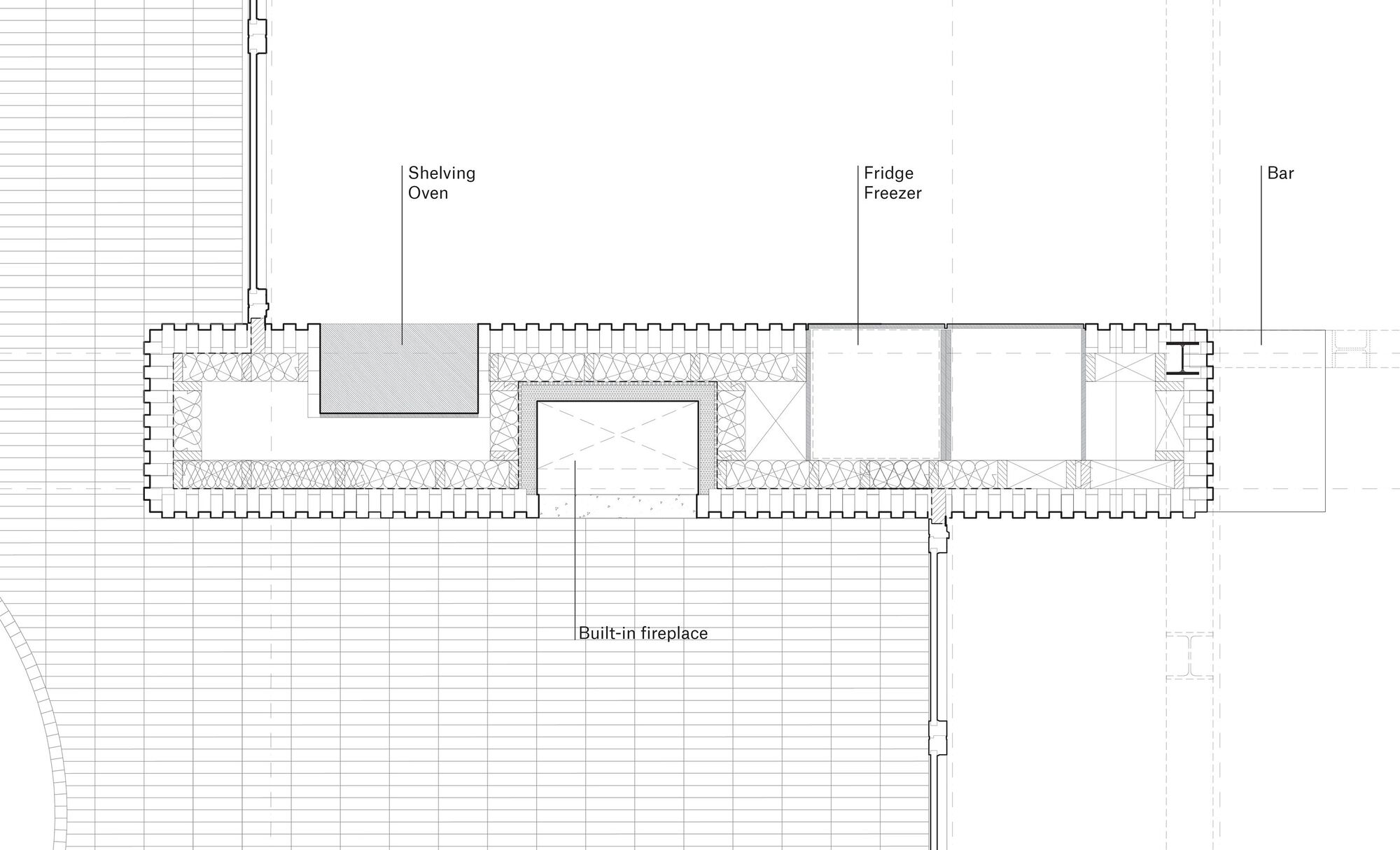
Text description provided by the architects. Rosa is a thoughtful renovation and ground-floor extension of a 1960s rowhouse in Bussum, The Netherlands. Designed by Atlas Architects, the project integrates contemporary architectural elements while respecting the character of the original brown brick structure. A warm pink palette, used consistently throughout the exterior and garden, defines the visual identity of the project and inspires its name, "Rosa." At the heart of the extension is a large, striking pink concrete masonry block that serves not only as an aesthetic focal point but also as a multifunctional object. The block integrates practical elements such as cabinetry and an outdoor fireplace, creating a seamless blend of form and function. The concrete bricks are arranged in a vertical pattern that further enhances the modern yet cohesive feel, ensuring harmony with the existing building.
The extension enlarges the kitchen and dining area, while simultaneously crafting new outdoor spaces that prioritize openness and connection to the garden. The terrace, finished with matching pink bricks, ties the house and garden together, while aluminum window frames, matched to the same hue, maintain a refined continuity throughout. By opening the big folding doors, the line between the inside and outside is blurred as the concrete block continues uninterrupted. A hidden sunscreen, cleverly tucked behind the aluminum frame, adds functional elegance to the design, providing shade and comfort without detracting from the minimalist aesthetic. The entire project was completed with great attention to detail, including the meticulous installation of the vertically glued concrete bricks, bringing together both craftsmanship and innovation.
Rosa stands as a beautiful example of how a restrained color palette, smart spatial planning, and multifunctional design can elevate a modest extension into a cohesive and inviting living space, balancing modern comforts with respect for the home's historical context.
Project gallery
客服
消息
收藏
下载
最近

























