查看完整案例

收藏

下载

翻译
Architects:CIRCULAR STUDIO
Area:11740m²
Year:2024
Photographs:Salva López
Manufacturers:Geberit,Sto,Duravit,Adaptacolor,Alu-Stock,Breinco,Com-led,Deplosun,Forster,Huguet,Hunter Douglas,Kone,Ofimatic,Roca,Santa & Cole,Shüco,Simon,The Inox in Color
Architects:Ivan Serrano Vidal, Fernando Ansorena Marenco
Design Team:Victor Ruiz, Iñigo Ocamica, Aina Santanach
Structural Engineers:Lluís Escudero
Mep & Hvac Consultants:Eletresjota Tècnics Associats, Jaume Pastor
Façade Consultant:Miquel Rodriguez
Quantity Surveyor + Deo:Ramón Cisa
Structure Engineers:Other Structures
Façade Consultants:xmade Barcelona
Work Execution:Betarq Group
Building Company:Constructora del Cardoner SA
Steel Structure:Cullere i Sala SL
Façade Engineering:Construcciones Metálicas Barceló SL
Carpentry And Furniture Fabrication:Fusta i Fusta
City:Barcelona
Country:Spain
Text description provided by the architects. The building accommodates the European hub for the international network of design and visual arts universities, LCI Education. It is located in the former industrial district of Poblenou in Barcelona, now the technological district 22@, which is undergoing an urban transformation.
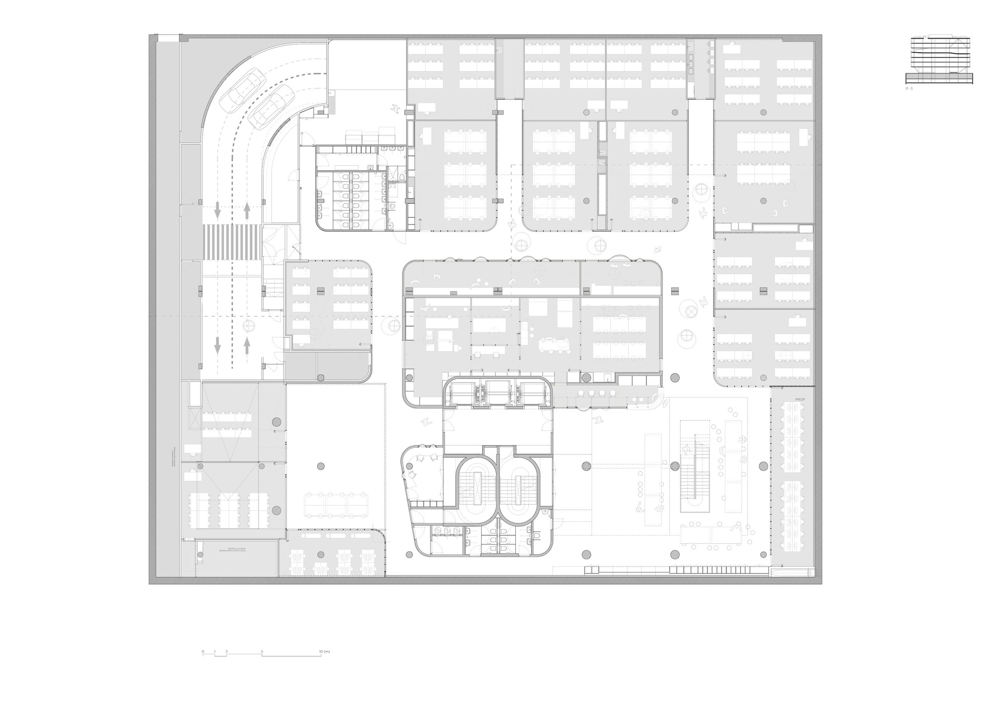
The above-ground volume of the building includes classrooms, practical labs, administrative offices, a library, and student areas. Circulation is organized peripherally and parallel to the façade. This space acts as a filter, a social area, a working environment, and an exhibition space. Much like the interplay of solid and void in a classical portico, the rhythm of the façade blurs the boundaries between the interior and the exterior, transforming the journey through the building into an experience.
Underground, the building also incorporates the plaza footprint, resulting in a vast open space for students. Here, two large flexible halls for various activities coexist with workrooms, laboratories, and fabrication workshops, all illuminated by natural light filtering through the ground floor double-height spaces and skylights from the plaza above.
The façade of the building responds to various orientations through a unified strategy. It blocks direct sunlight to prevent glare while maximizing the entry of indirect light. Externally, the facade is clad in aluminum and finished with a transparent powder coating. This preserves the textural qualities and light reflection of the metal, allowing the aluminum to interact with its surroundings and the changing sunlight throughout the day. Internally, the walls are paneled in white, enhancing the natural light within.
The building is a "vertical campus" designed to accommodate approximately 3,000 students. The design aims to provide a quality urban environment in which the journey through the space, contributes to the student experience.
To achieve this, the ground floor serves as a permeable space, set back from the building's perimeter to enhance the public area, featuring glass façades that promote transparency and visual continuity. Access is provided via a bridge that crosses through the building, linking the street to the interior plaza. This unfolds like a seating space, with steps and an access ramp, thereby blurring the boundaries of the ground floor and integrating it into the urban space. The plaza becomes a community space for both students and local residents.
Below ground, a social journey for students unfolds, linking the ground floor and the first two levels through a metal staircase that crosses a quadruple-height entrance foyer. Between the third and fifth floors, circulation continues externally along the recessed façade, encircling the library and linking to the "raised plaza" of the campus, located at the heart of the building (fourth floor). This space faces the sea, taking advantage of the breeze while sheltering from direct sunlight thanks to a protective overhang.
Project gallery
Project location
Address:Barcelona, Spain
客服
消息
收藏
下载
最近





































