查看完整案例


收藏

下载
“建筑的目标在创造完美,也就是创造最美的效益”
海上风华 • 黑白之间 中国. 上海
TRANQUILITY / WARMTH / MINIMALIST
“建筑留存下来因为它是艺术,因为它超越实用”。
Architecture survives because it is art and because it transcends practicality.
——[法] 柯布西耶 (Corbusier)
海上风华 • 黑白之间
若以颜色追溯世界本源,黑白似乎最为恰当,黑色与生俱来的神秘魅惑,白色自带的优雅简约,极素至简的语言,让设计也有了洗尽铅华的味道。熙熙攘攘的都市繁华中,寻一处至真至净之处,探寻生活的本真。
If the color traces the origin of the world, black and white seems to be the most appropriate. Black is born with mysterious charm, white comes with elegant and simple, very plain to simple language, so that the design also has the taste of washing all the lead hua. In the hustle and bustle of the city, find a place to the true to the pure, to explore the true life.
DESIGN DESCRIPTION
本案屋主中意干净简洁的空间风格,希望忙碌的工作之外,回到家中能有一个惬意安心之地,对空间的品质感有一定追求。
In this case, the owner of the house likes clean and simple space style, hopes that besides busy work, he can have a comfortable place to feel at ease back home, and has certain pursuit of the quality of space.
本次设计把追求空间的大气简约置于首位,以黑白两色打造简洁明净,毫无它饰的空间观感,再点缀原木,灯光之下,大气温暖的居室氛围不言自明。空间布局上,以开放式思维,布置出朗阔空间,在用大理石、玻璃为空间增加明亮自然之感。
This design puts the pursuit of spaceatmosphere simplicity in the first place, with black and white two colors tocreate a simple and clean, no decoration of the space look and feel, and thendotted with logs, lighting, the atmosphere of the warm room atmosphere isself-evident. Space layout, with an open thinking, layout of a wide space, inthe use of marble, glass for the space to increase the sense of bright nature.
|LDK 设计,进门就有大气宽敞之感
LDK design makes the space spacious.
打开厨房,LDK 一体式设计,人在空间中的自由感更强。踏入空间,黑色岛台引领视觉焦点,上饰温润原木面板,调和空间清冷情绪,后方大理石材质装饰,天然纹理为室内引入更多自然气息。材质的转换,让空间情绪随之跳动富有变化。
Open the kitchen, LDK integrated design, people have a stronger sense of freedom in the space. Stepping into the space, the black island platform leads the visual focus, decorated with warm and moist log panels, to reconcile the cool mood of the space, the rear marble material is decorated, and the natural texture introduces more natural atmosphere into the interior. The transformation of materials makes the mood of the space beating and changing.
宽幅落地窗搭配白色窗帘,过滤后的光线更为柔和温润,引光入室的同时用设计手法调和光线情绪,力求达到光与空间的平衡。
The wide-width floor-to-ceiling windows are matched with white curtains, and the filtered light is softer and more moist. While drawing light into the room, design techniques are used to reconcile the mood of light, and strive to achieve a balance between light and space.
弧形沙发更具围合感,暗藏对温情居家氛围的期待,三代同堂,其乐融融,居家的幸福,大抵如此。
The curved sofa has a more enclosing feeling, and it hides the expectation of the warm home atmosphere. Three generations are living together, and the happiness at home is almost like this.
餐厅的精致体现于细节之处的设计,以铁锈红色的餐桌作为餐厅焦点,打破黑白两色的呆板,灵动十足。玻璃吊灯做水滴状,剔透晶莹,餐厅更显纯净自然。后面的餐边柜用大理石与暖色灯带,让空间中温情不减,层次感十足。
The refinement of the restaurant is reflected in the design of the details. The rust red dining table is used as the focal point of the restaurant, breaking the dullness of black and white. It is full of flexibility. The glass chandeliers are drip-shaped and crystal clear, making the restaurant more pure and natural. The cabinets are made of marble and warm-colored light strips, making the space undiminished and full of layers.
Huerne Space Design 2021
|巧设钢琴间,黑白琴键演绎优雅浪漫
Black and white keys for elegance and romance.
墙面的 PU 线条精致浪漫,承重柱以线条装饰,做空间分割,划分出钢琴间,用巧思增设空间功能又不显逼仄。
The PU lines on the wall are exquisite and romantic, and the load-bearing columns are decorated with lines to divide the space and divide the piano room. The space function is added by ingenuity without being too stubborn.
极简线条灯、通透亚克力板、精致雕花柱......让钢琴间通透不显拥挤,线条灯贯穿隔板,上方搭出置物台,可做收纳或展示区。艺术雕塑与钢琴自带的优雅气息相得益彰,黑白琴键跃动之间,人文气息满溢空间。
Minimalist line lights, transparent acrylic panels, exquisite carved pillars...make the piano room transparent and not crowded. The line lights run through the partitions, and there is a shelf above it, which can be used as a storage or display area. The artistic sculpture and the elegant atmosphere of the piano complement each other, and the humanistic atmosphere overflows the space between the pulsating black and white keys.
Huerne Space Design 2021
|自然光与氛围光交织,简约空间中不乏层次变幻
Light interweaving, changing levels in simple space.
负一层客厅布置简约,打破空间阴暗逼仄。矮脚家具与隐藏筒灯的设计,让进入者视线清爽整洁,空间也更显大气宽绰。黑白色为主色调,品质感十足。沙发和飘窗中的弧形元素,又为空间注入柔和气息,打造刚柔并济的居室氛围。自然光与灯光交织,空间更富层次感。
The living room on the first floor is simple in layout, breaking the dark and constriction of the space. The design of low-footed furniture and hidden downlights makes the eyes of the entrants refreshed and tidy, and the space is more generous and generous. Black and white are the main colors, and the quality is full. The curved elements in the sofa and bay window inject softness into the space, creating a room atmosphere of rigidity and softness. Natural light and lighting are intertwined, and the space is more layered.
楼梯拐角处的玻璃摆件自成小景,光线照耀下流光闪耀,空间更具梦幻优雅。
The glass ornaments at the corners of the stairs become small scenes by themselves, and the space is more dreamy and elegant under the light shining through the stream.
Huerne Space Design 2021
|以自然之名,打造静谧书斋
Create a quiet study in the name of nature.
书房墙面以格栅造型装饰,极简线条中自带安静抚慰人心的力量。室内与阳台做出台阶,拾阶而上,书与自然的贯通感,落与空间设计之上。阳台处一盆绿植半露未露,有犹抱琵琶半遮面之意,又与书桌上的枝芽有遥相呼应之感,为书房注入自然生命之力。
The wall of the study room is decorated with a grille shape, and the minimalist lines have the power of quiet and soothing. The interior and the balcony are made of steps, and the steps are up, connecting the book and nature, and the space design is placed on the balcony. A pot of green plants is half exposed on the balcony, which has the meaning of embracing the pipa and half covering the face, and it is also connected to the desk. The branches and buds on the top have a sense of echoing each other, injecting natural life force into the study.
Huerne Space Design 2021
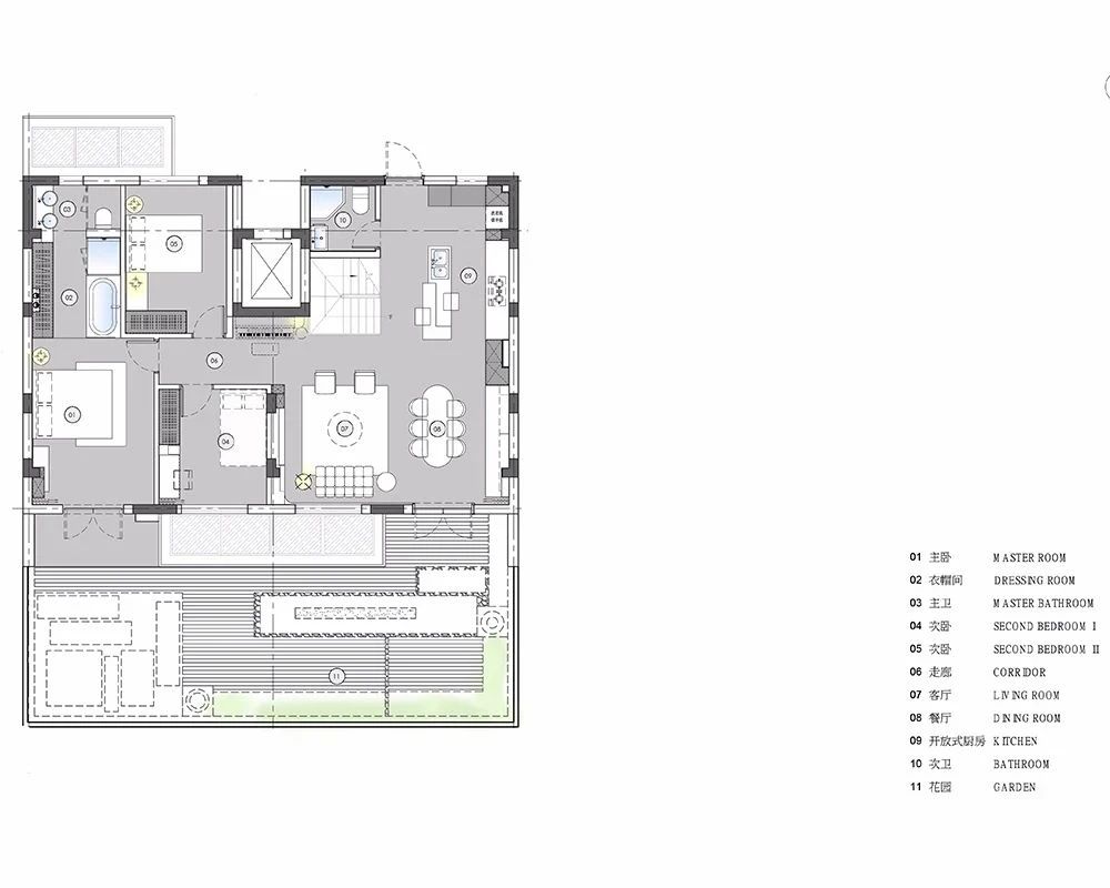
|合理布局,打开空间、提升生活品质
Reasonable layout, open space, improve the quality of life.
DRAWING PRESENTATION
-Name | 项目名称-海上风华 • 黑白之间
-Project name | 项目地址-海上风华
-Spatial properties | 空间属性-住宅
-Area | 项目面积-200㎡
-Completion date | 竣工时间-2021 年 4 月
-Interior design and soft decorationdesign | 室内设计-软装设计-上海赫舍空间设计有限公司
ABOUT DESIGNER
赫设计(上海赫舍空间设计有限公司)于 2017 年初成立于中国上海,经过一年的高速发展,于 2017 年末在无锡成立分公司。我们致力打造成为一家设计多元化,工程标准化,工程现场配合服务专业化,效率高效化,服务全方位的设计咨询机构。致力于家装公寓、别墅、软装全案、商业空间等室内设计与创新。
以设计创造价值为核心理念,追求设计作品从概念构思到最终建成的最高品质。
与其不断地堆砌无所意义的装饰,不如将一切归零,再从原点出发。
Design to create value as the core concept, the pursuit of design works from conceptual conception to the final completion of the highest quality. Instead of constantly piling up meaningless decorations, it is better to return everything to zero and start from the origin.
客服
消息
收藏
下载
最近


























