查看完整案例

收藏

下载

翻译
Architects:ODB Arquitectos
Area:396m²
Year:2018
Photographs:Ramiro Sosa
Engineering:José Luis Mancuso
Collaborators:Mauricio Ortiz, Alvaro Di Bernardo
Lighting Design:La Lucería
City:Corrientes
Country:Argentina
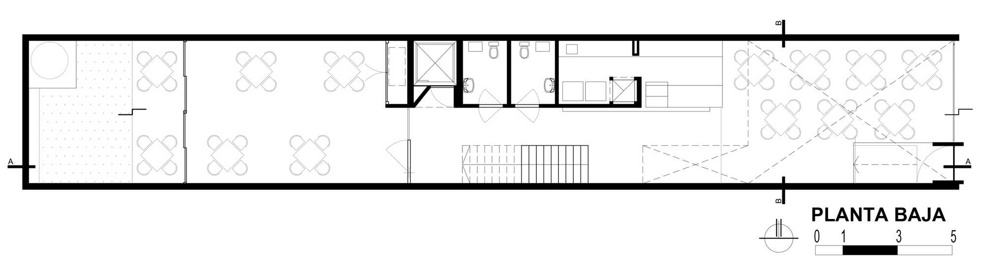
Text description provided by the architects. An ambitious commercial project was developed on a narrow plot of land measuring 5.65 metres wide by 34.20 metres long, with an east-west orientation, located in a central but neglected urban area. The challenge included the need to create a building without architectural barriers, but with the risk of flooding in the street during the intense rains characteristic of the coastal climate. The building was required to be economical in its construction, use and maintenance, while maintaining high standards of habitability in terms of thermal comfort, luminosity and acoustic insulation. These fundamental conditions guided the conception of the project.
In functional terms, a linear and vertical design was chosen. On the ground floor, a restobar was located with two distinct areas: one open to the street and a more private one at the back, ideal for meetings or teamwork. On the first floor, above the restobar and the entrance, an administrative office was arranged to oversee the general operation, along with an event hall for 50 people at the back. The second floor repeated the layout with another event room and an open-air terrace facing the city.
The vertical circulations divided the building into two parts, connecting the premises while differentiating the busiest areas (facing the street) from the quieter ones (at the back of the site). Accessibility for all people was ensured by access ramps, a hydraulic elevator and the leveling of the terrace with the top floor. As for the spatial layout, the width of the site was used to the maximum without interposing divisions to ensure the spaciousness of the premises. The entrance to the building was highlighted with a double height that provides a feeling of grandeur and broadens the visitor's perception. The sought-after spatiality defined at the same time the structure of the building, a system of beams and reinforced concrete slabs that rest on each of the dividing walls.
In relation to the climatic design, double-wall vertical envelopes with central thermal insulation and sunshades on the west façade for solar protection were implemented. On the roof, a wooden deck was installed to create shade over the flat roof of the restobar on the ground floor. To maximize natural lighting, a zenith opening was designed in the south dividing wall that includes a solar chimney for continuous ventilation. Finally, seeking to meet the premises of economy, low maintenance and aesthetics of the building, it was decided to highlight the expressiveness of the raw materials, without unnecessary coatings or decorations. Thus, through tectonic explorations, various formwork techniques were used for reinforced concrete in beams, slabs and partitions, as well as various common brickwork in the walls, and rustic wood in doors, ceilings and furniture.
Project gallery
Project location
Address:Corrientes, Argentina
客服
消息
收藏
下载
最近






































