查看完整案例

收藏

下载
这是一个旧建筑的改造,改造后作为一处以度假为目的建筑空间。原有的建筑是一个混凝土的框架结构,坐落在北方海边的一片密林深处,周围的自然景观独立且安静,几百米的密林之外便是宽阔的大海。
This project involves the renovation of an old building into a vacation destination. The original building, featuring a concrete frame, is nestled within a dense coastal forest in northern China, surrounded by a serene and secluded natural landscape. Just a few hundred meters beyond the forest lies the vast sea.
▼项目概览,Overall view© 陶磊
▼鸟瞰,Bird’s eyeview©陶磊
原有建筑沿着刺槐密林边缘线性分布,主体被拉长至百米,且建筑的南侧和东侧均伴有优质水景。但原有建筑的室内布局为单侧走廊,存在大量冗长的过道空间。立面处理也十分封闭局促,建筑周边低缓延绵的微坡景观被托斯卡纳风情的细碎竖条开窗切分得支离破碎。得天独厚的原生景观被毫不吝惜地拒之门外。
▼原始建筑样貌,Original building ©陶磊
Originally, the building stretched 100 meters along the edge of an acacia forest, with beautiful waterscapes on both the south and east sides. However, its interior design included a single-sided corridor, resulting in long and somewhat redundant hallway spaces. The facade was overly closed off, fragmented by narrow Tuscan-style vertical strip windows that obscured the scenic rolling landscape around it, ultimately isolating the building from its natural surroundings.
▼外观,Exterior view©陶磊
▼从廊下看向建筑,View of the building from the corridor ©陶磊
改造的目的是打破孤立且封闭的建筑立面,使得建筑的内部空间与外部优美的自然环境建立密切的联系,同时重新组织内部的使用关系,创造一个全新的度假生活方式,并且尽可能的将自然引入室内。
The renovation aimed to break down the isolated and enclosed facade, fostering a close relationship between interior spaces and the picturesque surrounding environment. By reorganizing the interior layout, the design introduces a refreshed vacation lifestyle that brings nature indoors as much as possible.
▼室外泳池,Outdoor swimming pool©陶磊
▼将自然引入室内,Bringing nature indoors ©陶磊
▼从室内看建筑立面,Building facade viewed from inside ©陶磊
为了确保空间的灵活性,原始的柱网被视为有秩序的网格,在原始的网格中重新定义空间,部分结构柱或被刻意消隐在隔间墙内,或被刻意暴露,使得新空间具有足够的灵活性和新秩序。
▼爆炸图,Exploded diagram © TAOA 陶磊建筑
▼局部,Partial view diagram © TAOA 陶磊建筑
To enhance spatial flexibility, the existing column grid was treated as an orderly framework. Within this grid, structural columns are either concealed within partition walls or deliberately exposed, creating a new balance of openness and structural coherence.
▼空间新秩序,New spatial order ©陶磊
▼具有灵活性,Flexibility ©陶磊
为了使建筑能更充分地和周围建立联系,改建采用三种策略。一是利用混凝土框架结构的特点,将一层原有的填充外墙拆除,将内部吊顶高度调整为统一的标高,并向四周延伸出挑为外部的雨棚,建立了一条横贯整个建筑的水平线。
To strengthen the building’s connection with the surroundings, three main strategies were employed in the renovation. First, based on the existing concrete frame structure, the design team removed the first floor’s outer infill walls, unified the interior ceiling height, and extended the ceiling outward to create a cantilevered canopy.
▼建筑立面,Facade©陶磊
▼建筑立面近景,Facade close view©陶磊
这条抽象的水平线之上的石头外墙塑造了坚固且沉重的体量,更反衬下部的空与透。透过长长的挑檐看出去,远处松散的自然建立了一定的秩序,使其抽象化,形成一线浓缩的景观带,将周围环绕的野性景观收集到同一组合之中。
▼周围环境,Context diagram © TAOA 陶磊建筑
The canopy establishes a horizontal line across the entire building, contrasting the solid stone walls above with the airy, transparent lower section. Above this line, a solid stone facade emphasizes the structure’s volume, while the space below opens to the landscape with enhanced transparency. The transparent glazing facade beneath the protruding eaves becomes an abstracted landscape belt, which captures the surrounding environment. Viewed from under the extended overhanging eaves, the distant, scattered natural landscape takes on an ordered abstraction, forming a cohesive view of the surrounding wilderness.
▼周围环境,Surrounding context©陶磊
▼挑檐,Overhanging eaves ©陶磊
二来为了更好的与自然的融合,在原始建筑中剔除了局部使用面积,使其成为内院,将自然由外部引向室内。第三种策略是给新建筑设计了一部分可以使原建筑松散的形态联系为一个整体的院墙,将外部的自然包裹进建筑的内部,建筑的边界在新改造的空间中是刻意被模糊的。
The second strategy involved creating an inner courtyard by selectively reducing interior floor area, to enhance engagement with nature.
Lastly, the third strategy introduced new courtyard walls, linking previously scattered sections of the building and wrapping external nature into the interior.
In this way, the building’s boundary is deliberately blurred, allowing for a seamless integration with the surroundings.
▼室外绿化,Outdoor greenery©陶磊
▼自然引入室内,Bringing nature indoors ©陶磊
建筑的上部顺应原始建筑体型特性,分为两个独立的部分,一部分是公共的客房区,另一部分作为相对私密的私人居所,中间布置了一个露天羽毛球场。建筑的屋顶在这样的环境中是可贵的,它提供了多样的景观视角和空间体验。
The upper portion of the building follows the original layout, divided into two distinct areas: a communal area, and a more private guestroom area, with an open-air badminton court positioned in between. The rooftop adds significant value, offering diverse vantage points and spatial experiences.
▼建筑屋顶,The rooftop©陶磊
在建筑的中段设计了一个醒目的室外楼梯和坡道,这不仅是消防疏散的需要,更重要的是将二层以上的空间和地面建立了一个直观的联系,可以在上下的日常交通中移步换景,游走于自然之中。
A striking outdoor staircase and ramp in the middle section serve not only for fire evacuation but also connects the upper floors directly to the ground, allowing for varying views as one moves up and down, encouraging immersion in nature.
▼室外楼梯和坡道,Outdoor staircase and ramp ©陶磊
建筑外墙被设计成米黄色石材,作为北方,米黄色的石头更容易让人在寒冷的冬季联想到一丝暖意,这样的选择同时也是业主的美好期待,这也正反映了北方人和这片土地的共同性格,坚实的外墙,厚重的体量。
The exterior is finished with beige stone, conveyinging warmth during cold northern winters and aligning with the owner’s vision. The solid walls also resonate with the region’s character.
▼建筑外墙,The exterior wall©陶磊
▼建筑外墙采用黄色石材,Using yellow stone ©陶磊
设计团队在设计中结合原有轮廓将其转变为更具有雕塑般的形体,在这片充满野性的密林中,石头的建筑格外安静且有力量。
By retained the building’s original contours, the design team transformed it into a stone sculpture that exudes tranquility and strength amidst the wild forest.
▼雕塑般的形体,Sculptural form ©陶磊
设计过程,即是理想化的愿景与现实之间的对峙过程。这种过程中的抗争使设计团队避免了一种简单的内在决定论或是简单的外在形式,希望通过自然的介入,使原有的建筑摆脱过去贫瘠的功能主义。
The design process was a balance between idealistic vision and practical constraints, avoiding simplistic determinism or superficial formalism. Through nature’s intervention, the design team sought to liberate the building from its previous rigid functionalism.
▼安静且有力量,Quiet and powerful ©陶磊
一个旧建筑的改造也是对一个局部旧世界的改造,内部的结构保留与重新组织,使其更有内在的逻辑。更多逻辑维度的叠加,形成了建筑的丰富性以及鲜明的个性。希望能带来全新的建筑体验,彻底改变原有建筑封闭且刻板的印象,向自然开放的同时,仍可以保有北方建筑的厚重与力量,与北方的地域、性格相一致,最后再将其融于自然,归于自然,成为自然。
Renovating this old building signifies a transformation of an outdated environment. By preserving and reorganizing its internal structure, the design team enhanced its inherent logic. This layering of new logic fosters a rich and distinct architectural character, opening the building to nature while retaining the solidity and strength characteristic of northern architecture. Ultimately, the building harmonizes with its regional context, blending into the natural landscape and becoming one with it.
▼总平面图,Site plan © TAOA 陶磊建筑
▼一层平面图,1F plan ©TAOA 陶磊建筑
▼二层平面图,2F plan©TAOA 陶磊建筑
▼三层平面图,3F plan
©TAOA 陶磊建筑
▼四层平面图,4F plan©TAOA 陶磊建筑
▼屋顶层平面图,Roof plan
©TAOA 陶磊建筑
▼立面图,Elevations©TAOA 陶磊建筑
▼剖面图,Sections©TAOA 陶磊建筑
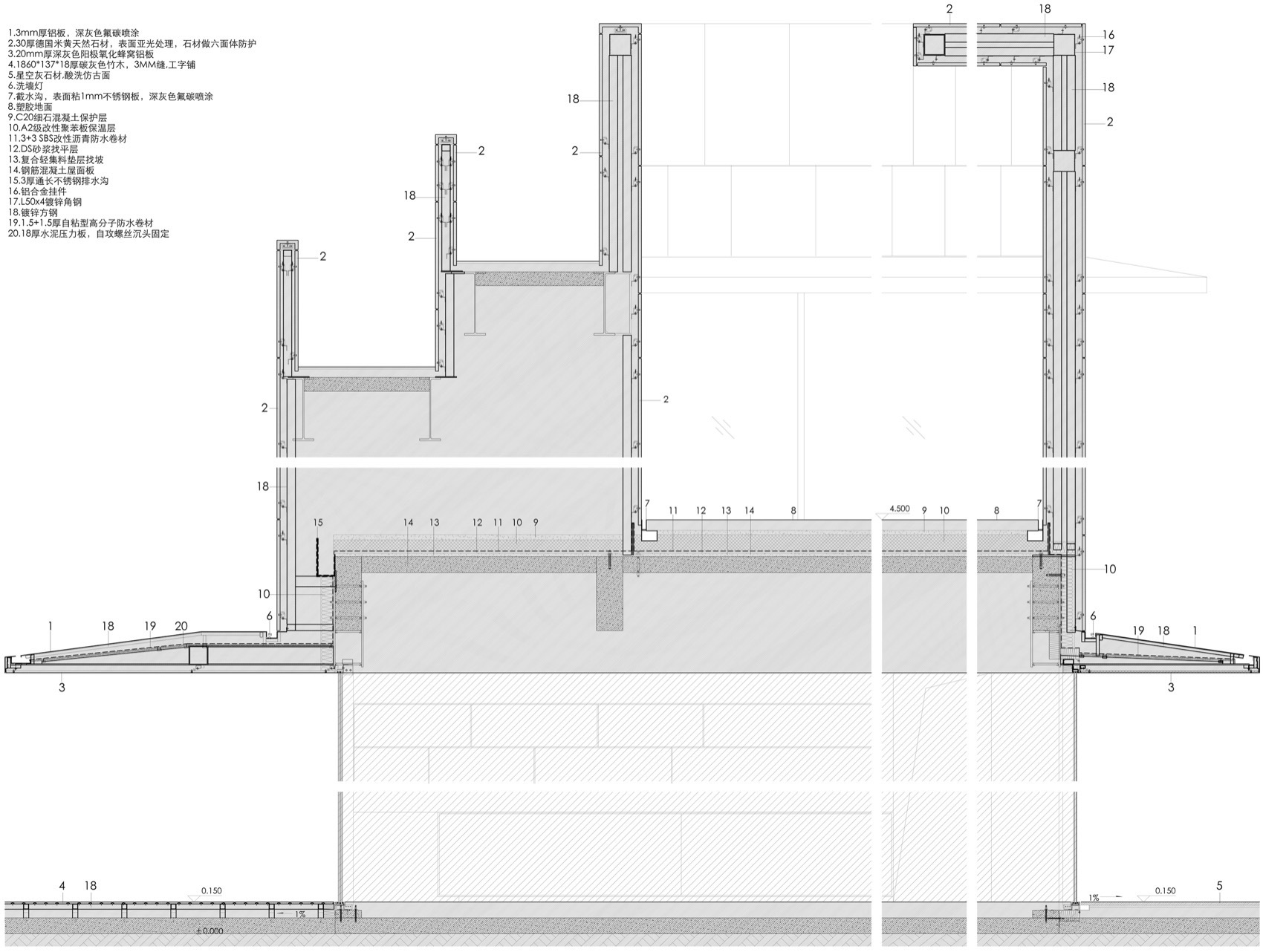
▼墙身,Wall details ©TAOA 陶磊建筑
▼陶瓷墙面,Ceramic tile wall cladding diagram ©TAOA 陶磊建筑
项目信息
项目名称:如是海·尚空间
项目类型:度假康养空间
项目地点:秦皇岛如是海
设计单位:TAOA 陶磊建筑
主创建筑师:陶磊
设计团队完整名单:陶磊、陈真、孟祥瑞、陶冶、崔翔、张梦莹、何晓甜、高文卓、刘红(实习)
项目业主:宏兴集团
完工时间:2023.9
建筑面积:4050㎡
甲方团队:宏兴文旅
施工图设计:TAOA 陶磊建筑
室内设计:TAOA 陶磊建筑、CCD
景观设计:TAOA 陶磊建筑
照明顾问:Lucent 空间艺术中心(深圳) 赵宁
项目摄影:陶磊
材料品牌:温莎米黄石材、大庄户外竹地板、能亮手工砖
Project information
Project name: Resea · Chic Space
Project category: Vacation & Wellness Space
Location: Resea, Qinhuangdao
Design firm: TAOA ()
Lead architect: Tao Lei
Design team: Tao Lei, Chen Zhen, Meng Xiangrui, Tao Ye, Cui Xiang, Zhang Mengying, He Xiaotian, Gao Wenzhuo, Liu Hong (intern)
Client: HONGXING STEEL
Completion time: Sep. 2023
Area: 4,050 sqm
Client team: HONGXING TOURISM
Construction drawings: TAOA, CCD
Landscape design: TAOA
Lighting consulting: Lucent Worldwide (Shenzhen) / Zhao Ning
Photographer: Tao Lei
Materials: beige stone, outdoor bamboo flooring (DA ZHUANG), handmade tile (ENERGY)
客服
消息
收藏
下载
最近






















































