查看完整案例

收藏

下载

翻译
Architects:Bananafish
Area:444m²
Year:2024
Lead Team:Pil Joo, Choi, Ji-A, Pang
Design Team:Hong-Sun, Kim, In-Woo, Song
City:Gwangju-si
Country:South Korea
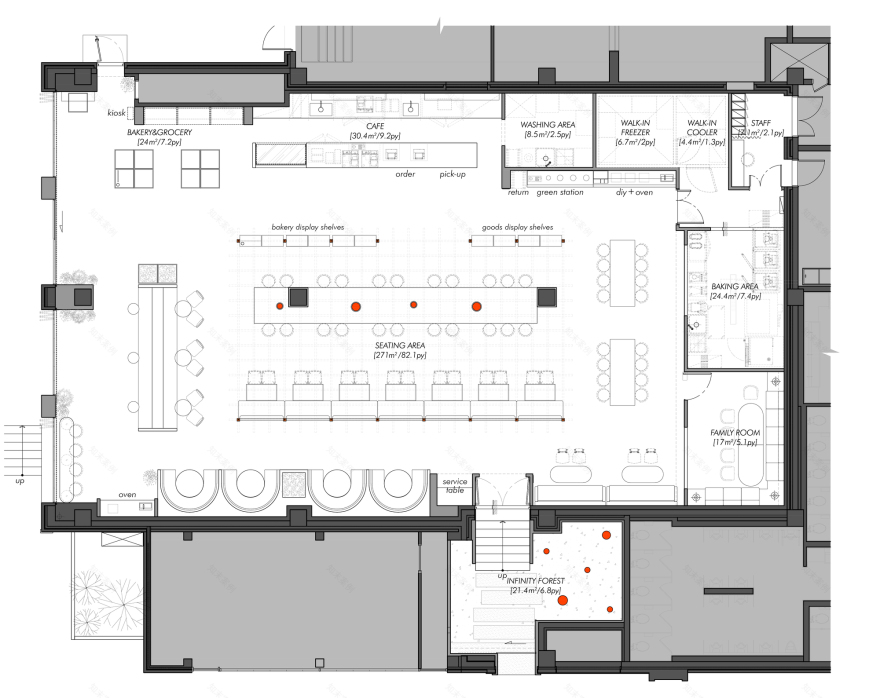
Text description provided by the architects. Hwadam Forest is a barrier-free artificial forest created to restore Korean forests. On the opposite side of the forest, at the foot of the mountain, is an art gallery called Hwadamchae. 'seed green' is a bakery cafe designed to function as a "pavilion" between the two spaces.
The height of the floor at ground level of 'seed green' is about two stories lower than Hwadamchae, and 1.3 meters higher than Hwadam Forest. The cafe appears to be a separate space because there is a convenience store at the corner of the two-sided facade. So each entrance's facade repeats the same material and form to reveal "The presence of the cafe." Pine trees were used as artistic installations, placed in the center of the store and at the entrance towards the forest, and mirrors were attached to the wall to create an 'infinite forest', allowing the two spaces with different floor heights to be naturally perceived as one space.
The project utilizes upcycled finishing materials. The facade columns and 10-meter-long table feature terrazzo made by mixing waste plastic as aggregate. The service bar and the pavilion ceiling are constructed with oriented strand board and wood wool panels. The wall and sofa fabric are made from recycled material sourced from 50 PET bottles per yard. The design process took into account the production specifications of the materials to minimize material waste. All the furniture was manufactured as semi-finished products in a workshop equipped with environmental facilities and was then assembled on-site to promote sustainability throughout the process.
At the center of the hall is a net-shaped ceiling structure measuring 12m wide and 7.5m high, borrowed from the form of a pavilion, and 15 columns supporting it. Between the columns, partitions, display shelves, or built-in sofas are installed as needed to divide the space. The shape of the seats has become more diverse due to the ceiling structure and columns. At the center of this pavilion is a huge table made of 10m pieces of waste plastic, so that visitors can spread out and talk. The ceiling structure made of wood wool boards also has a sound-absorbing effect, making it more effective in the theme of 'having a friendly conversation'. The three service spaces inside the café are about three times larger than a typical cafe and are all made of upcycled materials. The service spaces are spaces that encourage customers to actively practice various actions for coexistence and recovery with nature. It consists of a space for washing tumblers, a space for warming or packaging leftover food, and a space for separating and throwing away various types of trash, before leaving the café. The role of 'seed green' is to allow customers to see, touch, and feel the virtuous cycle of nature in this space, and further to share and spread their experiences with others.
Project gallery
客服
消息
收藏
下载
最近



















