查看完整案例

收藏

下载
“光环(Halo)”一词既抽象又富有表现力,十分契合这项位于西班牙西北部 Vigo 市的新型交通连接方案的名称。“光环(Halo)”既不是一座人行桥,也不是电梯,更不仅仅是一件雕塑般的建筑作品——但它却巧妙地融合了这些元素。该设计是 2020 年由 Vigo 市政府举办的国际竞赛的成果,由 AM2 Arquitectos + Arenas & Asociados + NOARQ 团队设计并负责详细设计和现场监督,承建方为 Ferrovial 和 Oreco Balgón。
The word ‘Halo’ – abstract and evocative – fits very well as the name of this new connectivity solution built in Vigo, north-west Spain. Halo is not a footbridge, nor an elevator, nor is it a sculptural piece of architecture – but it combines elements of each of those all at the same time. This design is the result of an international competition held in 2020 by the Vigo Municipality and won by the team formed by AM2 Arquitectos + Arenas & Asociados + NOARQ. This team has carried out the detailed design and site supervision, while construction was carried out by contractors Ferrovial and Oreco Balgón.
▼项目概览,overall of the project© Attilio Fiumarella
▼横跨在城市主道路上的“光环”,the‘Halo’ straddling the city’s main road© Attilio Fiumarella
由于 Vigo 市地势多坡,落差大,为此开发了多个垂直交通和移动方案,以改善城市的便捷性。Halo 是这些方案中规模最大、最具野心的项目,旨在解决城市上下区间超过 40 米的高度差。新结构不仅将连接多个社区,还提供了通往新建的综合交通中心顶层广场的通道,该中心包括火车/巴士站和一座大型零售中心。“光环(Halo)”中的人行桥还横跨一条城市主干道,覆盖超过 70 米的水平跨度。
▼轴测图,axonometric drawing© AM2 Arquitectos
As a result of its many slopes, hills and level differences, multiple solutions for vertical connectivity and mobility have been developed for the city as part of the Vertical Vigo connectivity programme. Halo, the largest and most ambitious of these solutions, aims to solve a vertical level difference of over 40m between the lower and upper parts of the city. The new structure will connect neighbourhoods as well as provide access to a public square located on the roof of a new intermodal complex that includes train/bus stations and a large retail centre. The footbridge also crosses over a highway that acts as the main access point to the city, over a horizontal separation above 70m in length.
▼远景,viewing the project at distance© Attilio Fiumarella
▼天桥细部,details of the bridge© Attilio Fiumarella
▼外观,exterior view© João Morgado
▼顶视图,top view© João Morgado
“光环(Halo)”结构的主要元素是一座电梯塔和一座人行桥。但与传统的直线桥不同,它采用了在环状结构内分叉的两条步行路径。这一设计创造了一个集漫步道和观景平台于一体的空间,不仅提供了俯瞰大西洋的视野,还允许人们选择两条不同的弧形桥道,一条带有顶棚的步道可以用于避雨,另一条则完全开放。
The main elements of the Halo structure are an elevator shaft tower and a footbridge but – rather than featuring a straight footbridge – two diverging paths are presented within a circular ring that serves several purposes. The design creates a combined promenade and sightseeing platform with views over the Atlantic while also providing a choice of two separate curving footbridges, one sheltered from the rain and the other completely open to the landscape.
▼外观近景,closer view of exterior© Attilio Fiumarella
▼细部,details© João Morgado
▼白色结构,white structure© Attilio Fiumarella
▼极简的结构美学,minimalist structural aesthetics© Attilio Fiumarella
▼结构细部,details of the structure© Attilio Fiumarella
▼开放的天桥一侧,open bridge side© Attilio Fiumarella
包含了两台电梯的塔楼,能够将人们直接送往距离地面 40 米的高度。其环形人行桥的直径达 84 米,两条弧形桥道长达 80 米,跨越了下方六车道的繁忙公路。电梯塔则配备了两台可容纳 17 名乘客的电梯,确保高效的垂直交通,适应城市的多样化地形。人行桥设计采用极简支撑策略,仅有三处支撑点,其中之一为电梯塔。同时,人行桥与火车站建筑没有直接连接,仅通过缝隙和伸缩装置分隔。
▼有顶棚的桥段,the covered bridge side© Attilio Fiumarella
▼细部,details© Attilio Fiumarella
▼天桥内部,under the cover© Attilio Fiumarella
▼细部光影,light and shadow© Attilio Fiumarella
▼有顶棚的桥段,covered bridge side© Attilio Fiumarella
▼近景,closer view© Attilio Fiumarella
该项目是融合建筑与结构于一体的协同创作成果。环形人行桥不仅是一个跨越障碍的连接通道,也是一条面向城市与河口的观景漫步道。桥面宽 4.5 米,支撑结构宽 6.5 米。为了适应不同用户需求,桥的一侧配有顶棚以防雨,而另一侧则完全开放,提供无遮挡的视野。
This project is the result of a collaborative integrated effort to merge architecture and structure into a single sculptural object. The circular footbridge is meant not to be only a crossing connection over an obstacle, but also a promenade and a viewing platform over the city and the estuary. The design includes a 4.5-meter-wide pathway, supported by a broader 6.5-meter-wide structure. To cater to diverse user needs, one side of the footbridge is equipped with a roof for weather protection, while the opposite side remains open, inviting unobstructed views.
▼环形天桥,circular bridge© Attilio Fiumarella
▼电梯塔入口,entrance of the elevator tower© Attilio Fiumarella
▼电梯塔底部,bottom of the elevator tower
© Attilio Fiumarella
▼电梯,elevator© Attilio Fiumarella
从结构角度来看,人行桥采用了空间桁架设计。带顶棚的桥段为不对称横截面,行人穿过桁架结构,外部桁架平面主要对内开放,利用弯曲结构的扭转和纵向弯曲性能。而开放桥段则采用对称桁架梁设计,行人通过结构顶部平台行走。带顶棚的桁架高 5.9 米,开放桁架高 4.8 米。钢结构采用 800 吨 S355 级钢材,并有 C5 级防腐蚀保护,以应对海洋环境,确保项目的耐久性和韧性。
From a structural perspective, the footbridge employs a spatial truss design. The covered section of the footbridge is an asymmetrical cross section in which the users pass through the truss structure, with main external truss plane, and open views to the inside, taking advantage of the coupled performance of torsion and longitudinal bending of the curved structure. Conversely, the open footbridge section utilizes a symmetrical truss girder, positioning pedestrians atop the structural element. The covered truss section has a structural height of 5.9 m, while the open truss is 4.8 m high. The steel structure includes 800 tons of S355 grade steel with anticorrosion protection C5 for marine environment, underscoring the project’s commitment to durability and resilience.
▼由“光环”看大海,viewing the ocean from the ‘HALO’© João Morgado
▼夜景鸟瞰,aerial view at night© João Morgado
▼夜景外观,exterior view at night© João Morgado
▼夜景,night view© Attilio Fiumarella
▼人行桥夜景,night view of the bridge© Attilio Fiumarella
▼桥面夜景,night view of the bridge© Attilio Fiumarella
▼天桥夜景,night view of the bridge© João Morgado
▼细部夜景,details at night© Attilio Fiumarella
▼电梯塔入口夜景,night view of the entrance of the elevator tower© Attilio Fiumarella
▼施工过程,construction process© AM2 Arquitectos
▼总平面图,master plan© AM2 Arquitectos
▼地面层平面图,ground floor plan© AM2 Arquitectos
▼一层平面图,1st floor plan© AM2 Arquitectos
▼二层平面图,2nd floor plan© AM2 Arquitectos
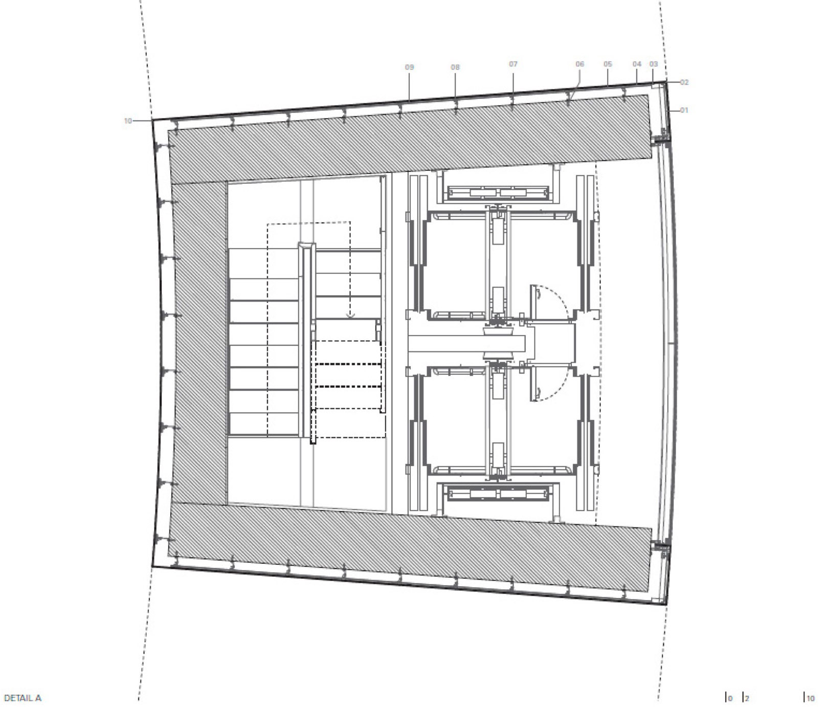
▼电梯塔平面图,detailed plan© AM2 Arquitectos
▼西立面图,west elevation© AM2 Arquitectos
▼剖面图,sections© AM2 Arquitectos
▼细部详图,construction details© AM2 Arquitectos
FICHA DE LAS OBRAS:
Localización: Rúa Serafín Avendaño, Vigo, España.
Fecha: 2020 – 2024
Cliente: Concello de Vigo
AUTORES DEL PROYECTO Y DIRECCIÓN DE OBRA:
AM2 Arquitectos
Alexandre Mouriño Fernández – Arquitecto
ARENAS y ASOCIADOS
Miguel Sacristán Montesinos – Ingeniero de Caminos Canales y Puertos
NOARQ: Jose Carlos Nunes de Oliveira – Arquitecto
INTERVINIENTES DEL PROYECTO:
ARENAS & ASOCIADOS:
Guillermo Capellán Miguel,
Emilio Merino Rasillo
José Ramón González
Calvo, Javier Fernandez Antón
Alejandro Godoy Ansótegui
Julio González Zalduondo
Carlos Alonso Velasco
Pablo Garrido de Marcos
Rafael Arroyo Velasco
Isabel Ortiz Escudero
Jesús Posadas Carmona
Fátima Castillo Piñuela
José G. García Martín
Sara Perez Vegar, Carmen Urdinguio Yruela.
AM2 Arquitectos:
Trinidad López.
Elva Arce Álvarez
Maximino García Sánchez
NOARQ:
Florencia Lucia Ruiz,
Manuel Eduardo Lopez,
Gonçalo José Almeida Ferreira,
André Oliveira,
Gaia Ferraris
Eduardo Kenji,
Nuno Gonçalves,
Daniela Amorim,
Ana Nogueira,
Manuel Eduardo Lopez,
Visualización 3D
Alessandro Ghidini (Concurso),
Javier Hinojosa (Concurso),
Javier Rey (Ejecución y Obra).
CONSTRUCCIÓN:
UTE HALO VIGO Ferrovial – Oreco Balgon
Jefe de Obra:
Alejandro Martin Velasco (Ferrovial)
Jefe de Producción:
Diego Prado Dopeso (Oreco Balgón)
Gerente de la UTE:
Guillermo Fernández Pellín (Ferrovial)
Responsables de Obra:
Manuel Gómez Dantas (Encargado), Adolfo López Díaz (Capataz), Luis González Rodríguez (Oficial), Alejandra Fernández Vázquez (Técnico PRL), David García Ariza (Topógrafo), Raúl Cadenas Acebes (Administrativo), Jesús Valea Deben (Administrativo).
Coordinación de Seguridad y Salud:
Gianfranco Paolo Olivieri Guadalupi,
Jaime Carlos Martinez Losada (adjunto)
Julio Millara (adjunto)
Productores:
Vidrios PONTEVEDRESA Industrial,
Solid Surface BUTECH Grupo Porcelanosa,
Taller metálico HORTA COSLADA,
Fachadas KLADDIA,
Trabajos hormigón ATESVI,
Elevadores SCHINDLER,
Iluminación SCHREDER,
Control iluminación LEDSCONTROL,
Aerogeneradores KLIUX.
客服
消息
收藏
下载
最近


















































































