查看完整案例

收藏

下载

翻译
Architects:Joaquim Sellas
Area:646m²
Year:2024
Photographs:Del Rio Bani
Manufacturers:Daikin,Faro,Knauf
Lead Architects:Joaquim Sellas
City:Palamós
Country:Spain
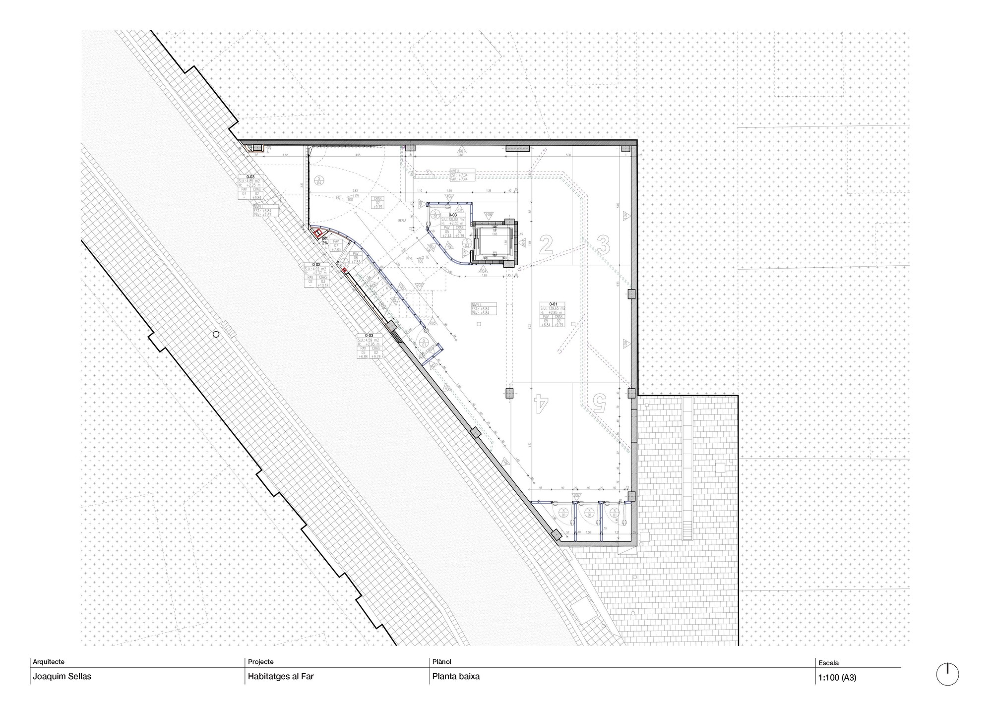
Text description provided by the architects. The project is located on a triangular corner plot, situated at the boundary between the old town and the Palamós lighthouse neighborhood. For this reason, the project seeks to resolve a corner that acts as a hinge between two worlds: on one side, the narrow, earthy-colored streets of the old town; on the other, the port and maritime atmosphere of the lighthouse neighborhood.
The functional program consists of parking (located on the ground floor)) and five apartments, distributed in such a way that there are two apartments per floor and one apartment in the attic. The urban planning regulations were very specific, requiring that the composition of the façade openings should be based on vertical axes and proportions and that the colors of the external walls should be earthy or ochre tones.
The project does not stem from a preconceived idea, nor does it seek conceptual unity; rather, it emerges from a dialogue with its constraints. The form and order arise from the inherent reality of the place; from the dialogue between the traditional architecture of the area and modern forms; between the world of the sea and the narrow village streets; between the day-to-day life of the future residents and the vastness of the sea's horizon, present in the background.
Project gallery
客服
消息
收藏
下载
最近

























