查看完整案例

收藏

下载
项目地址|龙湖天钜
Project Address| LonghuTianju
项目风格 | 现代轻奢
Project Style | Contemporary casual luxury
项目类型|联排别墅
Project Type | Terraced villa
项目面积|425m²
Project Area | 425m²
主创设计|杨磊
Chief Designer| Yang lei
案例概况
Case Overview
本案业主偏好简约而不失大气的设计风格,希望住宅能够体现出宁静雅致的生活态度。设计师在充分了解业主需求后,将这一理念贯穿于整个设计之中。考虑到住宅常住人口不多,业主又特别注重采光和通风,为此设计师保留了室内的挑空设计,一楼特意安排独立老人房,二层作为不常住人口的居住区域,三层则被设计为独立的大套房。整体设计不仅实现了功能上的合理布局,也完美契合了业主对简约优雅生活方式的追求。
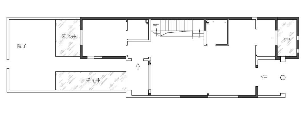
1 层 原始平面图
1 层平面布置图
2 层原始平面图
2 层平面布置图
3 层原始平面图
3 层平面布置图
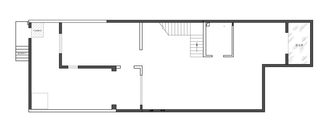
-1 层原始平面图
-1 层
平面布置图
一楼客餐厅·雅奢静享|Dining and living area
客厅的每一件家具和饰品都透露出低调而精致的美感。米白色大理石地面与浅色墙面相互映衬,构建出既温馨又高雅的空间氛围。居于中心位置的米色 L 型沙发,以其优雅流畅的线条和细腻柔软的触感,成为整个空间的视觉焦点。最为吸引人的是墙上悬挂的艺术作品,以其独特的抽象形态和丰富的色彩变化,深刻展现出居住者的独特品味与艺术修养。
餐厅保留原始挑空,营造出开阔大气的空间感。屋顶正中悬挂一盏极具创意的螺旋式水晶吊灯,其晶莹剔透的质感与下方精致的圆形餐桌及桌上银光闪闪的餐具相互辉映,共同打造出一幅现代感十足的用餐图景。在这里,每一次相聚都将成为美好的记忆,每一刻停留都能感受到生活的美好与宁静。
二楼休息区·|雅致生活|Rest area
二层作为不常住人口的居住区域,设有两间卧室及水吧区。卧室整体采用现代简约风格,以米色为主色调,搭配木纹地板和家具,营造出清新自然的氛围。同时每间卧室都配备完善的储物空间,确保每位入住者都有足够的私人领地存放物品。
三楼大套房·|雅居静思|Grand suite
三楼坐拥一间宽敞明亮的主卧大套房,搭配独立书房和户外露台,构建起一个既私密又开放的生活空间。卧室空间明亮开阔,内部布置简洁大方,超大双人床和沙发茶几巧妙布局,营造出温馨宜人的居家氛围。步入式衣帽间的设计,则如同锦上添花,不仅提供了充裕的储物空间,也使整个居住空间变得更加精致有序。
书房的设计以简约而不失雅致的姿态呈现。原木色书柜和书桌靠墙而立,天然的纹理和色泽为空间注入一股暖意与自然的气息。巨大的落地窗最大限度地将大自然的光与影带入室内,让整个空间沐浴在一片明亮与开阔之中。负一楼休闲区·|雅趣乐园|Leisure area
负一楼的空间设计巧妙结合了休闲与艺术的元素,打造出一片既宽敞又充满生活情趣的地下乐园。活动区、品茗区、花艺区、景观区各自独立,却又和谐共生,共同构出一个集休闲、文化与艺术于一体的多功能空间,让人在繁忙的都市生活中也能享受到片刻的宁静与美好。
杨磊
从业 12 年
毕业于西安美术学院
「所获荣誉」
中国室内装饰协会注册会计师
中国建筑学室内设计分会会员
2010 年美化家居大赛优秀奖
2011 年中国室内装饰住宅设计大赛优秀奖
2012 年第三届中国国际空间环境艺术设计大赛(筑巢奖)银奖
2013 年陕西原创设计大赛银奖
参加 2014 年度意大利·米兰大学进修
参加 2015 年北京·清华大学进修
参加 2016 年西班牙游学
参加 2016 年葡萄牙游学
参加 2017 年日本·京东大学进修
参加 2017 年埃及游学
参加 2018 年瑞士游学
参加 2018 年度台湾·亚洲大学进修
参加 2019 年印度游学
参加 2019 年度意大利·佛罗伦萨 IDE 大学进修
参加 2020 年俄罗斯游学
「设计理念」
一直以来秉承少即是多的理念,在设计的过程中反对奢华材料的堆砌,注重功能为先,美观为辅的设计原则,用心营造灵性空间,用最少的语言表达深厚的理念。
「设计风格」
现代简约、新中式、轻奢、工业风
「代表作品」
和记黄埔·逸翠园、中海·铂宫、阳光城·蔷薇溪谷、金地·九玺、融创·揽月府、雅居乐·御宾府,海德堡 PARK、湖光山色等。
商业空间代表:绿地双子塔·办公空间、SUSU·时装店、蓝海物业办公空间、一品长安餐厅、重庆印象火锅店等。
客服
消息
收藏
下载
最近

























