查看完整案例

收藏

下载
位于加拿大英属哥伦比亚省的新威斯敏斯特,təməsew̓txw游泳与社区中心已正式开放。təməsew̓txw来自于hən̓q̓əmin̓əm̓语,意思是“海獭之家”。作为这座城市迄今为止最大的投资项目,本项目以引人注目的统一屋顶融入了周边环境,旨在成为社区的核心和灵魂,成为所有人联系的地方。这个耗资1.14亿加元、面积达10,684平方米(114,571平方英尺)的游泳和社区中心是加拿大首个落成的全电动设施,且达到了加拿大绿色建筑委员会(CAGBC)的零碳建筑设计标准。本项目为建筑类型带来了一次重大转变,在许多地方,游泳馆都是最大的温室气体排放源之一。同时,本项目也是第一个使用重力式InBlue过滤系统的游泳馆,该系统减少了氯的使用和相关有害副产品的产生,从而改善了空气和水质。
The təməsew̓txw (derived from the hən̓q̓əmin̓əm̓ language and meaning “Sea Otter House”) Aquatic and Community Centre has opened in New Westminster, British Columbia. Woven into the landscape with a dramatic unifying roof, the City’s largest capital project to date aims to be the heart and soul of the community and a place for all to connect. The CDN $114 million, 10,684 sq m / 114,571 sq ft combined aquatic and community centre is Canada’s first completed all-electric facility to achieve the Canada Green Building Council’s (CAGBC) Zero Carbon Building-Design Standard, a significant transition for a building typology that has traditionally been one of the largest emitters of greenhouse gas emissions for many local governments. təməsew̓txw is also the first to use the gravity-fed InBlue filtration system, which reduces the need for chlorine usage and creation of associated harmful byproducts, resulting in improved air and water quality.
▼南侧入口与Miyiwts雕塑夜景,South entry with Miyiwts sculpture at night © Nic Lehoux
重新利用自然景观:场地策略
Reclaiming the natural landscape: site considerations
təməsew̓txw游泳与社区中心坐落于Fraser河以北的住宅区边缘,数千年来,Fraser河一直是土著人民的文化和经济生活来源。该项目位于Glenbrook峡谷的前源头,在过去的几十年里,该峡谷失去了发展的动力,因此,本项目的设计展现出与景观自然和解的强烈愿望。
▼分析图,analysis diagram © hcma architecture + design
The təməsew̓txw Aquatic and Community Centre is situated on the edge of a residential neighbourhood north of the Fraser River, which has been a cultural and economic life source for Indigenous peoples for thousands of years. Located on the site of the former headwaters of Glenbrook Ravine, which was lost to development over the preceding decades, the project takes a strong stance toward reconciliation with the natural character of the landscape.
▼南广场和峡谷空间,South plaza and ravine space © Nic Lehoux
外观:单体建筑形式
The exterior: a singular form
建筑与街区等长,大约为146米(479英尺),并成功地融入到了当地景观之中,创造了一个标志性的城市表达。阶梯式的模块化立面具有人性化的尺度,而建筑与地面的接触,则将其锚定在重建的峡谷空间中。坚固的黑色屋顶将不同的空间元素统一成综合的整体。
▼分析图,analysis diagram © hcma architecture + design
Running the length of a city block (146 metres / 479 feet,) the centre succeeds in both blending into the landscape and creating an iconic civic expression. The stepped, modulated elevation achieves a human scale where the building touches the ground, anchoring it into the re-established ravine space, while the strong black roof unifies the diverse program elements into a singular form.
▼南入口广场与波浪白色预制混凝土墙,
South entry plaza with scalloped white precast concrete piers © Nic Lehoux
▼南广场峡谷空间与Miyiwts雕塑,South Plaza Ravine space with Miyiwts sculpture © Nic Lehoux
场地四面向社区开放,两个主要的市民广场作为中心的入口,两个入口之间由开放宽敞的大厅连接,吸引游客进入。两个广场分别为900平方米(9,680平方英尺)与650平方米(7,000平方英尺)为不同的到达体验而设计:南部更具仪式性和自然性,北部则更具游戏性和城市性。广场上坐落着一座由Squamish族艺术家James Harry创作的名为“Miyiwts”(“水边”)的大型公共雕塑,在欢迎游客的同时,向场地的原住民族表示了敬意。
The site opens out to the community on four sides and two major civic plazas act as entry points, connected by the free and expansive lobby, which draws visitors in. The two plazas (900 sq m + 650 sq m / 9,680 sq ft + 7,000 sq f) have been designed for different arrival experiences: the South more ceremonial and natural, and the North more playful and urban. A major public sculpture by Squamish Nation artist James Harry called Miyiwts (“Water’s Edge”) welcomes visitors and honors the Host Nations to whom these territories belong.
▼北广场与户外健身空间,North Plaza with fitness programs © Nic Lehoux
室内:社区和健康中心
The interior: community and wellness hub
宽敞的通高大厅是建筑充满活力的社区中心。当地的重木材胶合木屋顶是该空间最重要的特征,天窗照亮整个空间,吸引着人们进入。塑般的钢螺旋楼梯定义了大厅的氛围,标志着与活动空间东翼和西翼的连接。
The spacious double-height lobby acts as a vibrant community heart for the building. It features a significant, local heavy timber glulam roof, with a skylight illuminating the space and drawing people in. A sculptural steel spiral stair anchors the lobby and marks connections to the east and west wings of activity space.
▼社交大厅与重型木材屋顶结构和天窗,Social Lobby with heavy timber roof structure and skylight © Nic Lehoux
▼带有厚重木质屋顶结构和天窗的社交大厅,Social Lobby with heavy timber roof structure and skylight © Nic Lehoux
▼大厅天窗细节,从大堂可看到多功能工作室,
Lobby skylight detail with views to multipurpose studio © Nic Lehoux
▼社交大厅,Social Lobby © Nic Lehoux
▼旋转楼梯,Spiral staircase © Nic Lehoux
▼带游戏角的螺旋楼梯,Spiral stair with play nook © Nic Lehoux
在东翼,设计为公众提供了广泛的以健康为重点的水上运动设施,同时也提供了比赛级别的专业设施。在木材和钢梁组成的厚重折面屋顶下,多功能休闲游泳池包容了所有年龄段的人玩耍运动的需求,同时泳池还结合了一条长25米的带有喷雾元素的循环泳道,以及一条可用于玩耍和康复的缓流泳道。
In the east wing, the design embraces a broader trend in wellness focused aquatic facilities, while also offering competition-level facilities. Under a folded plate mass timber and steel girder roof, the multi-use leisure pool is suitable for all generations and combines 25m lap lanes with spray elements and a lazy river that can be used for play and rehabilitation.
▼休闲泳池与木材折叠板屋顶,Social leisure pool with Mass Timber folded-plate roof © Nic Lehoux
▼通过休闲泳池区到南广场峡谷户外空间,View through Social pool area to south plaza ravine outdoor space © Nic Lehoux
▼带有坡道入口和室外景色的休闲热水池,Social hot pool with ramp access and views to outdoors © Nic Lehoux
▼从休闲游泳池可欣赏到南广场峡谷户外空间,
Social leisure pool with views to south plaza ravine outdoor space © Nic Lehoux
锯齿状的屋顶结构下,坐落着一座八泳道泳池,一座50米环形泳池,以及两座跳水台。该屋顶结构由混合钢桁架和大量交叉层压木材系统形成。这种屋顶形式将北侧的间接自然光引入室内,更加有利于人们在运动时的舒适度,同时也减少了室内对人造光的需求。屋顶结构内还集成了建筑东翼所需的机械和电气系统。
The eight-lane, 50 metre lap pool and two diving platforms are enclosed by a sawtooth roof structure formed by a hybrid steel truss and mass timber (cross laminated timber) system. This roof form welcomes indirect natural daylight from the north, which is most conducive for athletic performance and reduces the need for artificial light. The roof structure also houses the mechanical and electrical systems required for the east wing of the building.
▼50米的游泳池与5米的现浇混凝土跳水平台,
50m Lap pool with cast-in-place concrete 5m dive platform © Nic Lehoux
▼50米的游泳池与锯齿状天窗,
50m Lap pool with Mass Timber Sawtooth clerestory above © Nic Lehoux
▼50米泳池与锯齿形屋顶,
50m Lap pool with Mass Timber sawtooth roof © Nic Lehoux
▼50米的游泳池与木板条墙,
50m Lap pool Mass Timber roof and wood slat wall © Nic Lehoux
在游泳池上方,健身中心坐落在大型屋顶体量与底层空间的楼板之间,以丰富的室内活动与户外空间,为人们提供了不同的运动选择和视角。室内设计的选材呼应了外观上永恒的建筑表达,哑光黑色立缝金属屋顶进行了隔音处理,温暖的木制结构元素则为灰白色的墙砖增添了一丝柔和气息。水在空间中也扮演着重要的角色,清澈的池水与波光粼粼的水面在很大程度上塑造了室内的氛围。
Above the pools, the second level fitness centre nestles into the nooks and crannies between the large roof volumes, giving patrons different views onto the aquatics and outdoor spaces depending on their activity and location. The interior design material palette reflects the timeless exterior expression where matte black standing seam metal roof elements enter as acoustic wall treatment and off-white wall tile is warmed by the wooden structural elements above. With water playing a significant role in the aquatic spaces, its glossy blue and reflected light was considered a primary material in the palette.
▼健身中心,可眺望北广场,Fitness Centre with views to North Plaza © Nic Lehoux
▼室内篮球场,Gymnasium © Nic Lehoux
▼桑拿,Sauna © Nic Lehoux
▼二层交通空间与室内阳台,Level 2 circulation balcony with Mass Timber roof © Nic Lehoux
▼更衣室可以看到泳池和峡谷空间,
Universal Changeroom with views to the pool and ravine space beyond © Nic Lehoux
▼总平面图,Master plan © hcma architecture + design
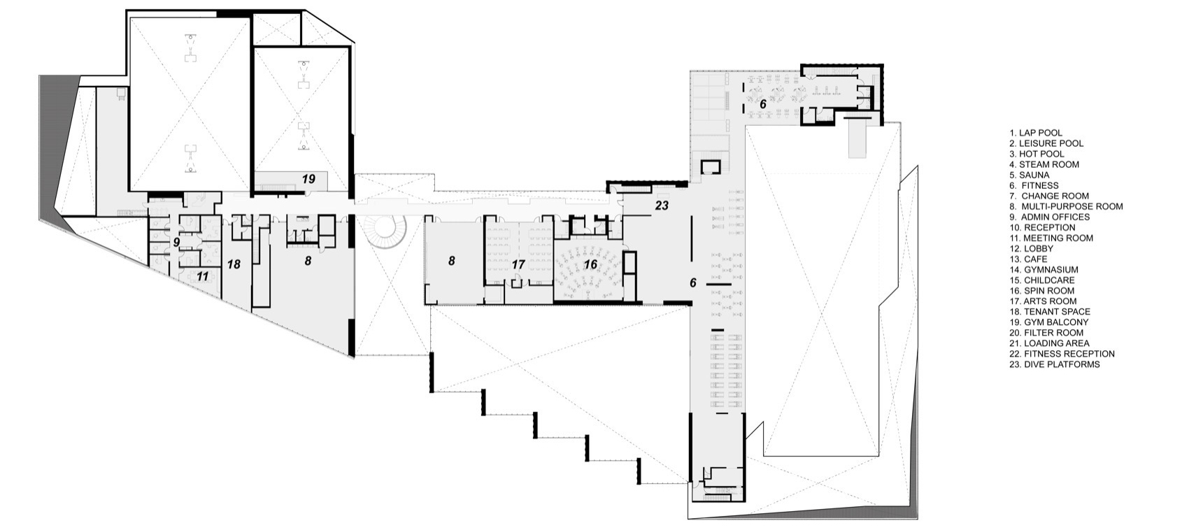
▼底层平面图,Ground floor plan © hcma architecture + design
▼二层平面图,Upper floor plan © hcma architecture + design
▼剖面图,Section © hcma architecture + design
PROJECT NAME: təməsew̓txw Aquatic and Community Centre
CLIENT: City of New Westminster
LOCATION: New Westminster, British Columbia, Canada
COMPLETION: May 2024
SIZE : 10,684 sq m / 114,571 sq ft
COST: $114M
DELIVERY METHOD: Construction Management
TEAM
Principal in Charge:
Paul Fast (Architect AIBC, MRAIC)
Architectural Firm Project Team
Consulting Partner:
Darryl Condon (Architect AIBC, AAA, SAA, OAA, FRAIC, LEED® AP)
Project Architect:
Alexandra Kenyon (Architect AIBC, MArch, BDes)
Senior Architect:
Ian McLean (Architect AIBC, LEED AP)
Architect Registered in Ireland:
Maeve Counihan (Architect MRIAI, LEED GA, March, BScArch)
Technical Director:
Rob Wilson (Dip Arch Tech, BSc)
Architect: Michael Dimock
Intern Architect: Elena Bushell
Intern Architect: Katherine Mathers
Architectural Technologist: Nicole Laguit
Senior Director of Sustainability: Rebecca Holt
Building Performance Advisor: Jason Burtwistle
Building Performance Advisor: Zina Berrada
Sustainability Coordinator: Natalia Mulekova
Senior Director of Social Impact: Marni Robinson
Inclusive Design Advisor: Fiona Jones
Wayfinding and Signage Designer: Amanda Klassen
Wayfinding and Signage Designer: Alice Rooney
Wayfinding and Signage Technologist: Maianne Capellan
Production Lead: Judy Bau
Other:
Structural: Fast + Epp
Mechanical: AME
Electrical: AES Engineering
Landscape: PFS Studio
Cost: Ross Templeton
Civil: Aplin & Martin
Acoustic: RWDI
Wayfinding + Signage: hcma
Public Art: James Harry
Project Manager: Turnbull Construction
Contractor: Heatherbrae Builders
CERTIFICATION
-Canada Green Building Council Zero Carbon Building
– Design Standard Certified
-Pursuing LEED v4 Gold Certification
-Pursuing Rick Hansen Foundation Accessibility Gold Certification
PROGRAM FEATURES -Four-pool aquatic centre, including:
-Eight lane 50m competition level lap pool with moveable floor and dive platforms
-Leisure pool with lazy river, 25m lanes and spray features
-Adult hot pool
-Family hot pool
-Sauna and steam rooms
-Universal and gender-specific change rooms
-Outdoor patio
-Fitness centre
-Two gymnasia
-Community multi-purpose rooms
-Central lobby / community gathering space
-Licensed child-care operated by the YMCA
-Active rehabilitation and food services commercial lease spaces
-Administrative offices
-Two plazas
-Redeveloped green spaces with rain garden
-Miyiwts public art installation by James Harry (jamesharry.ca)
-Sustainable design strategies, including:
-Rooftop photovoltaic array producing 5% annual operating energy
-All-electric facility (heating and cooling)
-InBlue gravity-fed pool filtration drum system
INCLUSIVE DESIGN AND
PHYSICAL ACCESSIBILITY FEATURES
-Ramp and beach entry into the leisure pool and family hot pool
-Transfer ledge entry into the adult hot pool
-Moveable floor in the 50m pool (which raises from 2.5m depth to 0 depth in less than a minute)
-Provision for blocking visual access to pool areas for All Body swims (women only, cultural or neurodiverse)
-Fully accessible change & washrooms with adult-sized change table and lift mechanism
-All-gendered washrooms
-Consideration of washroom accessory impact on those with neurodiversity (hand dryers)
-Wide circulation paths and high contrast wayfinding
-A tactile directory for spatial navigation complete with braille
-High contrast signage with braille for visual impairment
-Hearing loop for the hearing impaired
-Elevator access to level 2 programming
-Provision of benches and accessible furnishings throughout the facility, many with backs and armrests
SITE DESIGN AND FEATURES
-EV vehicle parking
-Bike racks and bike storage
-Children’s playground
-Public art
-Retractable wall connections to plaza from gymnasium and lobby
-Benching with event power
-Covered waiting pavilions at drop-off locations
-Rain gardens (for on-site stormwater retention and filtration)
-Trees and low irrigation native plantings
-Glenbrook Ravine greenspace
-Pedestrian, cycling, and transit connective pathways
-Direct connection to the Rotary Crosstown Greenway
– New Westminster’s major pedestrian and cycling route.
-Sustainable design strategies for reduced environmental impact (solar photovoltaic, all-electric facility, InBlue filtration system)
AWARDS
-2021 World Architecture Festival, Winner, Future Projects: Civic
客服
消息
收藏
下载
最近


































