查看完整案例

收藏

下载

翻译
Architects:dmarchitects
Area:277m²
Year:2023
Photographs:Paul Phan
Manufacturers:INAX,Nippon,Philips,Xingfa
Lead Architect:Phạm Đức Minh
Architect:Mai Trọng Hiếu
City:Vũng Tàu
Country:Vietnam
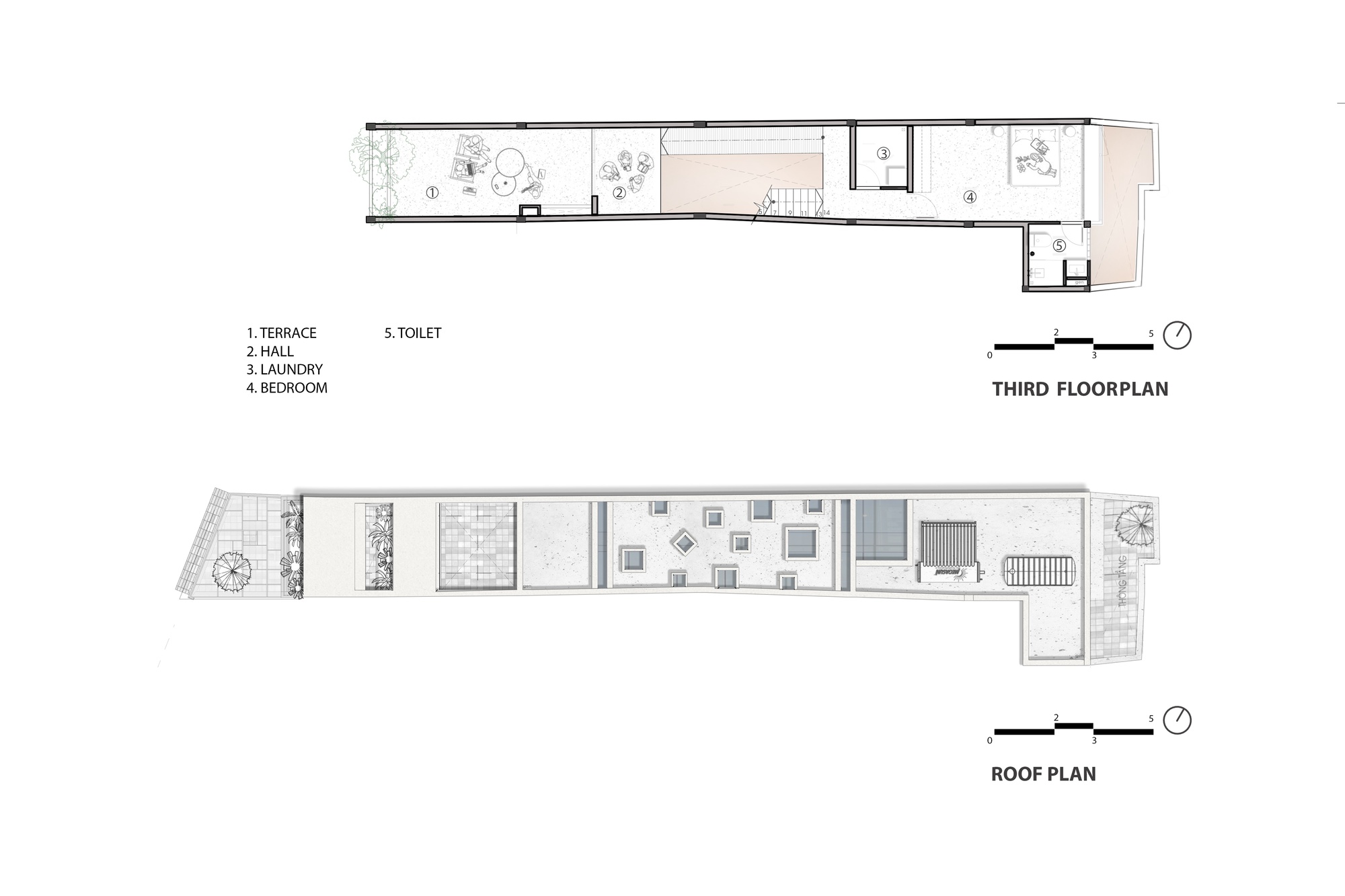
Text description provided by the architects. The 3x30 introverted house is a private house based on a long and narrow lot, located in a high-density residential area in Vung Tau City, Vietnam. The house faces the southwest on the traffic road. With the need of the homeowner to create a simple form of the building, playing the role of a private area in contrast to the stormy urban life. Ensuring quiet, comfort, and privacy in the dense urban fabric. On the other hand, adapting to the humid tropical climate of the area.
To solve the problem of a long and narrow plot of land, the architect came up with the idea of dividing the space along the house and using the common spaces as a circulation path to connect to all the private areas, avoiding making long corridors like conventional townhouse designs.
After analysis of the family's living habits, the common living space and kitchen are the most used places, so they are designed to be located in the center of the house, close to the main traffic and the main skylight. From the family's common living space, through the skylight, people can connect to all other spaces and create a close connection between family members.
The architect recommended a split-level house design and cut-down floor area on the upper floors to increase vertical connectivity while creating pathways for daylight to penetrate deeper into the building. From the top floor, people can still communicate with each other. In addition, the height of the living room, dining room, and kitchen are 1.3 times higher than the private rooms for convenient living and better ventilation.
The skylights in the center of the house are divided into small sections to ensure lighting and ventilation while minimizing the heat absorption of the glass. The architect uses perforated steel panels to design the circulation element to increase the ability to bring light into the building.
Developed from the sloping roof form of the traditional house, the facade of the building is a sloping concrete roof from the roof down to the 2nd floor with some cut-outs for ventilation. It makes the facade of the house simple but unique, combined with green trees to create a buffer layer to prevent heat radiation from the west and increase privacy for the homeowner.
The terrace space on the third floor is designed to be semi-enclosed, which helps reduce heat, traffic noise, and unpleasant views of the surroundings, but open to the private sky, which can be a gathering place for all family members and friends or become a space for yoga or meditation. Nowadays, a person's home is not only a place to meet basic needs but also a reflection of the homeowner's inner world, a place where they can connect with themselves and find peace amidst the chaos of urban life.
Project gallery
客服
消息
收藏
下载
最近

































