查看完整案例

收藏

下载

翻译
Architect:TCHOBAN VOSS Architekten;TOPOTEK 1
Location:Benno-König-Straße 18, 12487 Berlin, Germany; | ;View Map
Project Year:2024
Category:Offices
The project Square 1, a pioneering office campus, is being built in Berlin-Johannisthal, not far from Germany's largest technology park and media centre Adlershof. TCHOBAN VOSS Architekten GmbH gave the go-ahead for the campus development with component B of the project. The two-part building complex with five full storeys, connected by glass bridges, is used by Berliner Sparklasse as its headquarters and is located in the immediate vicinity of the listed Schoeneweide railway depot (Bahnbetriebswerk (Bw)).
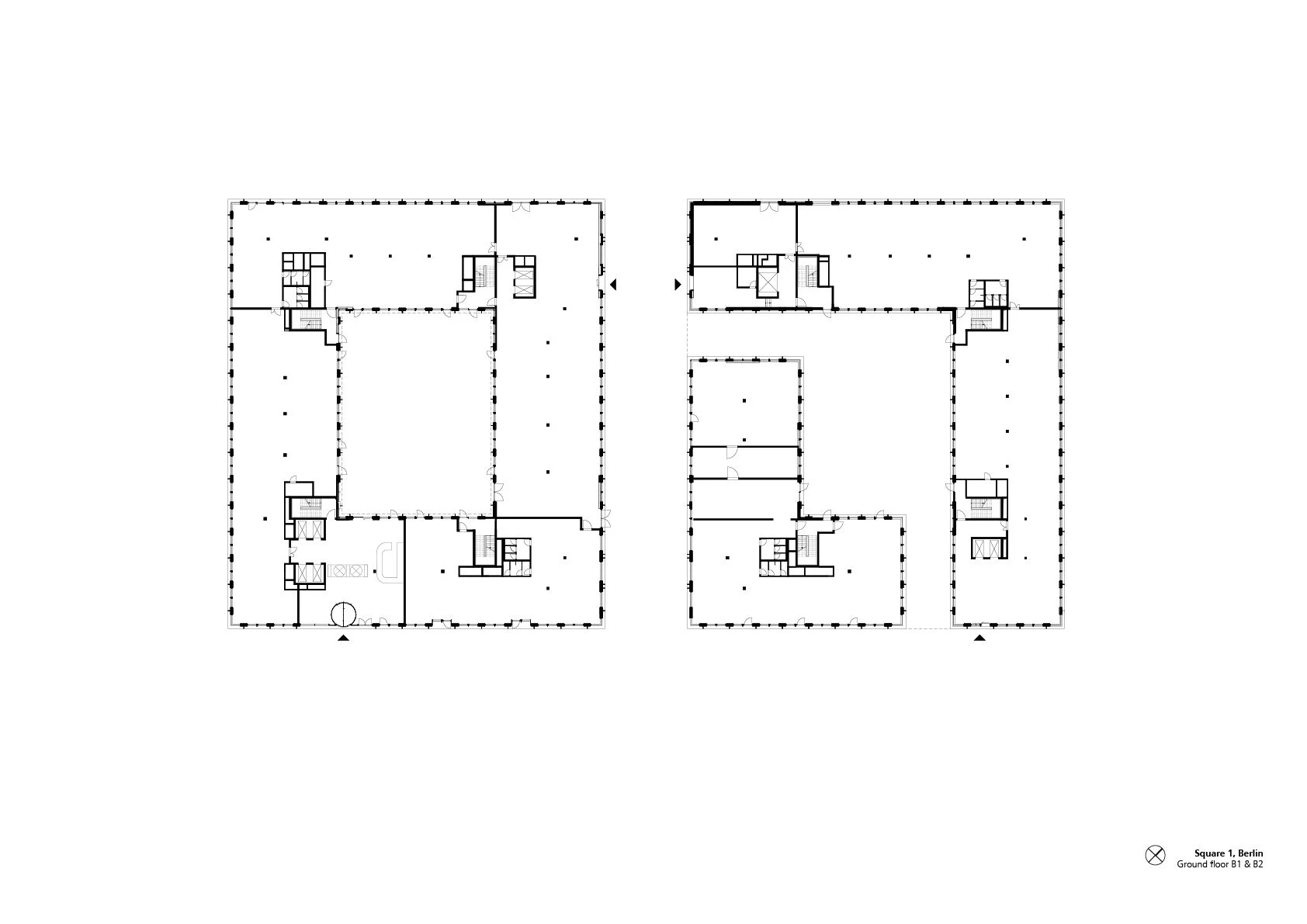
Square 1 B is based on a maximally flexible space concept. Depending on requirements, the independent building sections can also be combined for use by a single tenant. Building B1 in the north-east and B2 in the south-west are connected by glazed, two-storey bridges on the second and third floors. Both buildings have spacious roof terraces on the third floor, each measuring 265 sqm and with intensive greenery. They serve as versatile open-air recreation, communication and work areas. The two Carré buildings also enclose striking, green inner courtyards with a large number of seating areas. 20 loggias are regularly distributed across the upper floors one to four and, in addition to a varied façade grid, create additional openness and further outdoor working and lounging opportunities.
The façade consists of white, custom-made aluminium elements. A storey-high mullion and transom façade was installed on the ground floor. The façade grid alternates from the first to the third floor. Optical horizontal and vertical contours give the façades a clear structure. Large, six-part panoramic windows on the fourth floor and glass balustrades on windows, terraces and loggias let the building complex appear open and modern and optimise the natural light entering the rooms behind. The colour scheme of the façade, its window elements with glass balustrades and glass corners as well as its loggias and the 2 / 2 sequence of columns, which becomes ever wider towards the top, convey a deliberately light impression. On the ground floor of B2 there are two passageways to the inner courtyard, one of which has two storeys. The spacious two-storey entrance area in B1 is both inviting and prestigious. It leads to conference and training rooms as well as to an internal canteen.
All areas of the building complex were designed to be barrier-free.
Outdoor facilities
The outdoor areas of the campus create a variety of opportunities for work and recreation. The extensive green spaces act as a connecting element between the buildings and ensure harmony between nature and architecture. The inner courtyards are landscaped and can be used in a variety of ways.
Sustainability
The buildings are supplied with district heating and are equipped with concrete core activation as well as heating and cooling sails to keep energy consumption as efficient as possible and to create a pleasant indoor climate. The choice of building materials, the technical equipment and the energy concept fulfil the highest ecological and economic standards. The project was awarded gold certification by the German Sustainable Building Council (DGNB).
Team:
Architect: Sergei Tchoban
Associated partner: Frederik-Sebastian Scholz
Project lead: Martin Krebes, Frederik-Sebastian Scholz
Team: René Hoch, Anastasia Kapustina, Charlotte Lennertz, Virginie Mommens, Mareike Pagenstecher, Fabiana Pedretti, Fotios Zaranis
General contractor: Adolf Lupp GmbH + Co KG, Nidda
Execution planning: Braeunlin – Kolb – Schaelicke Architekten Ingenieure GmbH, Berlin
Structural engineering: Ingenieurbuero Dipl.-Ing. Stefan Ritzer, Pleinfeld
Building technology: Ruß Ingenieurgesellschaft, Berlin EnEV, DGNB, sound insulation certification: Drees & Sommer Advanced Building Technologies GmbH, Berlin
Glass balustrade system: GLASSLINE GmbH, Adelsheim
Façade planning: MEDICKE GmbH, Glauchau
Façade and window systems: HUECK System GmbH & Co. KG, Lüdenscheid
Sun protection: WAREMA Renkhoff SE, Marktheidenfeld
Photographer: HG Esch
▼项目更多图片
客服
消息
收藏
下载
最近



















































