查看完整案例

收藏

下载
阿兰图灵广场(Alan Turingplein)是阿姆斯特丹的一个新地标,是城市密集化的标志,融合了私人与公共产业、社会租赁建筑和一所学校,所有这些都围绕着这个即将成为绿色中心的广场。
A new piece of Amsterdam has emerged at the Alan Turingplein; an example of urban densification, a mix of private and collective commissioning, social renting and a school all centred around a soon-to-be green square.
▼建筑概览,Overall view © Peter Mann
这栋包含20套公寓的社会住房大楼坐落于广场旁,与公共空间和现有的建筑结构之间形成了牢固稳定的关系。这栋来自19世纪的建筑像是一首橙红色砖块的颂歌,立面墙壁上点缀了紫藤等绿色攀援植物,还绘有一幅6米高的阿兰图灵的石刻肖像,进一步与广场和周围社区联系起来。
▼轴测图,axon © Studio Appelo
Firmly rooted on the square, the social housing building with its 20 apartments creates a strong relationship with the public space and the existing building structures in the neighbourhood. Its ode to the orange-red brick of the 19th-century ring, along with green climbers such as wisteria and a six metre-high masonry portrait of Alan Turing further anchor it to the square and the neighbourhood.
▼建筑立面,Facade © Peter Mann
▼立面砖石,Facade details © Peter Mann
公寓楼的居住空间与广场直接相连,有一道专门通向广场的门,这进一步强调了建筑与公共空间的关系。建筑周围的灰空间策略性地被布置在了与广场之间的位置。标准层平面布置以公共空间到后花园的连线为中心轴线,阳台向外探出,在建筑后侧营造了一种社区感,同时也为底层建筑入口提供了遮阳结构。
The relationship with the public space is further accentuated by directly connecting the living spaces of the dwellings and the square, with doors that open onto it. In this way, the margin zone is strategically positioned between the dwelling and the square. The standard unit floor plan is organised around a central axis that extends from the public space to the back garden or balcony. The balconies protrude outside the gallery, creating a sense of community at the back while also providing a canopy for the ground-floor residence entrances.
▼阳台,Balcony © Peter Mann
▼阳台向外探出,The balcony stretches out © Peter Mann
建筑立面选用了不同色调的红色、橙色和粉色,形成了纵深的效果。立面按照水平和垂直网格布置的凸起砖墙形成了韵律感,建筑立面均是由砖墙覆盖,这种材质与后侧阳台的外部支撑结构相得益彰。砖墙与外部结构都允许攀援植物的生长。在建筑的侧面,毗邻人行道的地方的位置,有一幅深红色砖石绘制的阿兰图灵肖像,这里的砖石向外凸出辣劲厘米。阿兰图灵是广场名字的来源,他是人工智能之父,Enigma密码的破译者,同时也以公开同性恋的身份而为人们所知,在创新和正义如此重要的现代,他的事迹仍然具有现实意义和不可或缺的重要性。这幅肖像是对他本人、建筑材料和工艺的致敬。
The façade is elaborated in different shades of red, orange and pink that create a depth effect in the façade. The façade rhythm is emphasised by a grid of horizontal and vertical bands in protruding brickwork that wrap around the building, which is complemented with the external support structure of the rear balconies. Both elements are used to grow wisteria, Tuscan jasmine and honeysuckle. On the side elevation, adjacent to the footpath, Alan Turing’s portrait is delicately crafted with dark red gable bricks protruding two centimeters. Alan Turing, the square’s namesake, the father of artificial intelligence and the codebreaker of Enigma, also know for his open homosexuality, are still relevant and of indispensable importance at a time when innovation and justice are so essential. His portrait facing the public side is an ode to him, to material and to craftsmanship.
▼室内楼梯,Stairs © Peter Mann
▼不同色调的橙色、粉色和红色,Different shades of red, orange and pink © Peter Mann
艺术作品:阿兰图灵砖石肖像,作者Mathieu van Ek
Artwork: Alan Turing in Stone, by Mathieu van Ek
阿兰图灵砖石肖像是设计者为阿姆斯特丹阿兰图灵广场大楼专门打造的艺术作品。阿兰图灵是计算机科学领域最重要的人物之一。随着人工智能的兴起,图灵对计算机学科的贡献显得尤为重要。这幅作品的设计策略主要是通过算法进行创作,设计者选择了一种特定的Flemish砖块图案来纪念“像素”,即计算机屏幕的基本粒子。
Alan Turing in Stone is an artwork specially created for the building designed by Studio Appelo at the Alan Turing Square in Amsterdam. Alan Turing is one of the most significant figures in computer science. With the rise of artificial intelligence, Turing’s contributions to computer science are more relevant than ever. A key principle of this work is that it has been largely created through algorithms. A specific Flemish bricklaying pattern has been chosen to honour the ‘pixel’, the fundamental particle of any computer screen.
▼阿兰图灵肖像,Alan Turing in Stone © Peter Mann
设计者采用了“稳定扩散”的方法作为这件作品的基础,绘制了最常见且最易辨认的阿兰图灵肖像,稳定扩散是一种能够从文本和视角效果生成和处理图像的神经网络。他们还采用自编算法将图像转化为砖块的排列组合。这张肖像是在互联网中找到的数十亿张图像经由神经网络生成的,体现了艺术的传统,对历史人物进行了重新诠释。如果参观者认出了这幅肖像是阿兰图灵,则这幅作品便通过图灵测试。
As a basis for the work, I had the most common and recognisable portrait of Alan Turing reproduced by ‘Stable Diffusion’, a neural network capable of generating and manipulating images from text and visuals. I then translated this image into brick using a self-written algorithm. The fact that the image was generated by a neural network trained on billions of images found on the internet refers to the tradition in art where likenesses of existing historical figures were primarily reinterpretations. If the viewer recognises this image as Alan Turing, this work has passed the Turing test.
▼项目区位,site plan © Studio Appelo
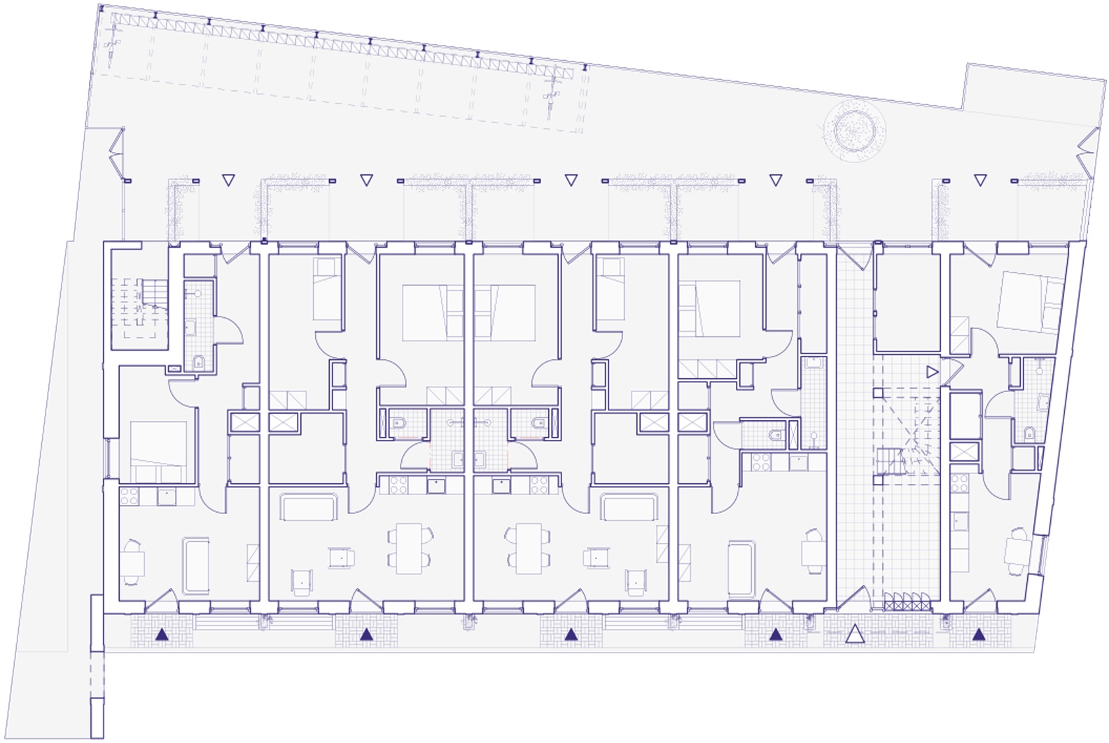
▼首层平面图,ground floor plan © Studio Appelo
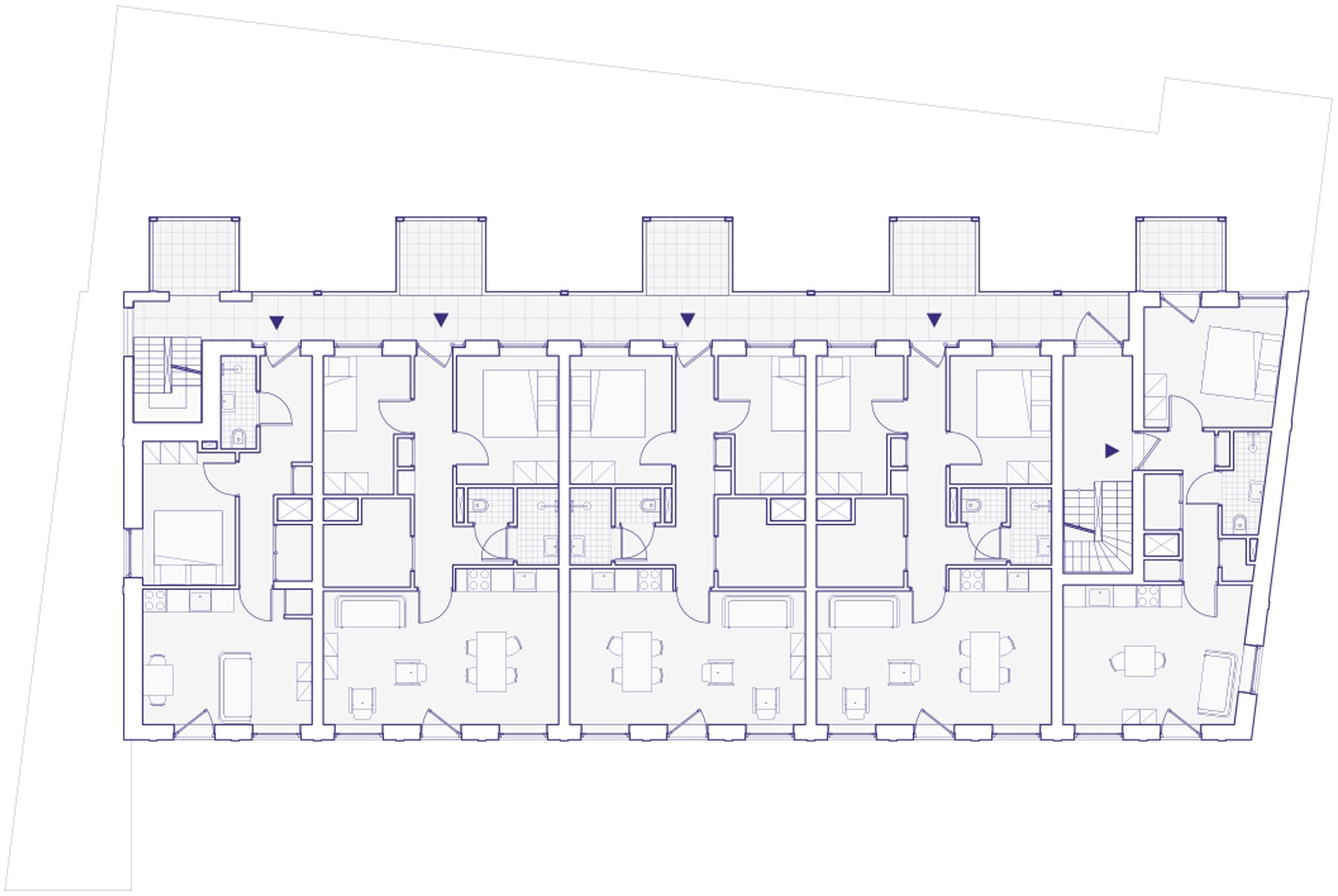
▼二层平面图,first floor plan © Studio Appelo
▼三层平面图,second floor plan © Studio Appelo
▼立面图,elevation © Studio Appelo
▼剖面图,section © Studio Appelo
Locatie: Alan Turing plein 2-40, Amsterdam
Typologie: Sociale Woningbouw
Opleverdatum: 09 oktober 2024
Appartementen: 20, waarvan 8 voor statushouders en 2 voor jongerenhuisvesting
GBO: 1000
BVO: 1365
Bouwlagen: 4
MPG: 0,71
Energielabel: A++ tot A+++
Energiebronnen: Lucht/warmtepomp en aanvullend PV-panelen
Aardgasvrij: Ja
Natuurinclusief: Waterretentie, Infiltratie in de bodem, Nestkasten, Gevelbegroeiing
Opdrachtgever/Ontwi
kkelaar: Stichting Ymere,
Architectenbureau: Studio Appelo
Ontwerpteam: Renée Appelo, Lars Goossens, Matthew Riches, Paul van Ginkel, Camilla Ceccaci
Aannemer: HSB Bouw
Kunstenaar; Mathieu van Ek
Fotograaf:Peter Mann
Antropoloog: David de Jong
Signing: Miranda Ensink
Installatie adviseur: Nieman
Uitvoeringstekeningen: Van Eik bouwadvies
客服
消息
收藏
下载
最近





























