查看完整案例

收藏

下载
新虎是一家面向以欧洲为主要市场的汽车配件国际贸易企业,提供超过1万种各类汽车零部件的产品供应和售后服务。
因此在新虎的办公总部,既需要有汽车配件工艺的专业性展示,又不能缺失企业家的个性化品味。我们以一种“德式古典理性”的风格化表达来塑造一家传统工业贸易企业的形象。
富有层次的风格语言从办公空间、产品展示空间到老板的办公会客空间,实体企业所追求的高效、稳定和品质触感,从公共空间自然地过度到富有个人色彩的私属领地,无时不刻地向参访者提示一种囧别于互联网公司的气质差异。
空间设计概念
将现场空间的劣势转化为空间分割的要素,
我们将原本不利的结构柱与通风管井转化为空间设计的核心要素,将其视为功能划分的“雕塑”,并通过视觉元素引导从公共空间到私人空间的过渡。
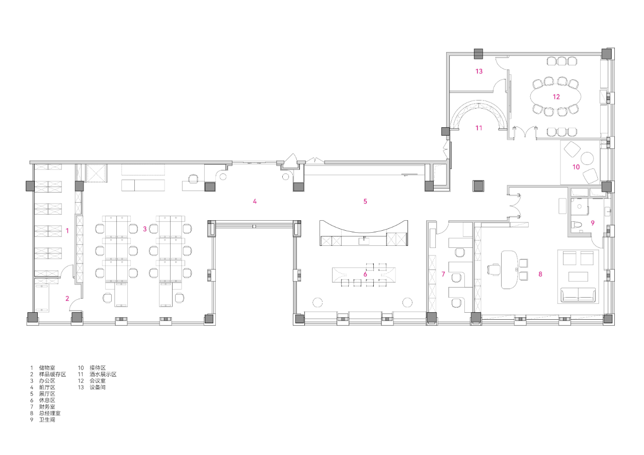
公共办公空间
入口
展厅-茶水间
展厅和茶水间作为办公区域与私人空间的缓冲地带,承载了多重功能。
通过独特的弧形设计,这个区域不仅营造了阳光在空间里的丰富变化,同时形成了流动的视觉焦点,给人们提供短暂放松与交流互动的场所。
我们在展厅内利用高精度3D打印技术,将整车零部件结合数字化互动屏幕进行呈现。零件统一采用铝合金金属喷漆,1:1真实还原了产品细节。拆解的工业产品与周围的石材和木色形成鲜明对比,将汽车的科技与豪华感在空间中铺陈开来。
“会所”
这一空间作为整个风格化叙事的结尾,以弧形酒柜为中心,运用了大量的木质材料与石材,通过简洁的曲线与细腻的装饰细节,强化了整体复古的风格,在功能上兼顾了商务接待、会议与私人会客的需求。木色的温润与石材的细腻,把人带回到更隽永的品味里来。这里不仅是企业家的个人办公区域,更是一处适宜思考、独处和接待的书房与客厅。
客服
消息
收藏
下载
最近



























