查看完整案例

收藏

下载
项目概况
Project Overview
F6 小学、幼儿园地块位于华南理工大学国际校区东北角,南面为学生宿舍,北面为预留用地,西侧为学校体育场地,东侧为校外住宅小区。主体建筑置于用地西侧和北侧,运动场于用地东侧,减小小学幼儿园噪声和接送人流对校区主轴线的影响,保持中轴线的安静氛围,不影响大学环境和教学秩序;同时避开南面高层学生宿舍和东面高层住宅,以满足小学和幼儿园的日照需要。小学总建筑面积 11500 平方米,幼儿园总建筑面积 3509 平方米。
The F6 Primary School and Kindergarten is located in the northeast corner of the GuangZhou International Campus, SCUT, with student dormitories to the south, reserved land to the north, school sports facilities to the west, and residential communities outside the school to the east. The main buildings are situated on the west and north sides of the site, with sports fields to the east, reducing the impact of noise from the Primary School and Kindergarten as well as the flow of pick-up and drop-off on the main axis of the campus, maintaining a quiet atmosphere along the central axis and not affecting the university environment and education order. At the same time, it avoids the high-rise student dormitories to the south and residential buildings to the east to meet the sunlight needs of the Primary School and Kindergarten. The total building area of the Primary School is 11,500 square meters, while the total building area of the Kindergarten is 3509 square meters.
▼东南角鸟瞰,Aerial view from the southeast corner©明境建筑摄影
▼东北角鸟瞰,Aerial view from the northeast corner©明境建筑摄影
▼俯视图,vertical view©明境建筑摄影
▼从操场看小学幼儿园,Viewing the Primary School and Kindergarten from the Playground©明境建筑摄影
小学
The Primary School
体块生成
Block generation
地块位于校园中轴线西侧,西侧为体育场地,东侧为幼儿园。由于面向中轴线空间,建筑体块采用化零为整的方式,生成整体的体块,西侧采用整齐边界界定校园的整体界面,东侧延续校园的纵向活力带边界。采用在体块抬高、架空、挖洞、嵌合庭院平台的方式,形成多层的立体空间,东侧整合的界面既阻挡了体育场的噪音干扰,也和平台一起形成多义的交流和学习空间。
▼体快演变,block generation©华南理工大学建筑设计研究院有限公司工作二室
The site is located on the west side of the campus central axis, with sports fields to the west and a kindergarten to the east. Facing the central axis space, the architectural mass is integrated by breaking it into parts to form a cohesive whole. The west side uses neatly defined boundaries to delineate the overall interface of the campus, while the east side continues the vertical vitality boundary of the campus. By elevating, suspending, digging, and integrating courtyard platforms into the mass, a multi-layered three-dimensional space is created. The integrated facade on the east side not only blocks noise interference from the sports field but also, together with the platform, forms a versatile space for communication and learning.
▼小学东侧框景构筑与幼儿园南立面,East side frame landscape construction of the Primary School and south facade of the Kindergarten©明境建筑摄影
设计构思——学堂趣院
Design Concept——Funny Academy
由于用地非常紧张,本设计尽量采用多层次立体活动平台来创造丰富活动空间,让学生在课间最短的时间内能到达各层活动。设计将多类公共活动用房与室外空间错落布置,形成多个立体而富有层次感的趣味院落空间,给孩童在课堂间隙到达院落进行洄游探索、嬉戏追逐、户外聚会等多种活动提供可能,有效激发校园生活的生机与活力。
Due to the limited space, the design tries to create a rich activity space through multi-level activity platforms, allowing students to reach accessible activities on each floor in the shortest time during breaks. The design intersperses various types of public activity rooms with outdoor spaces, creating multiple three-dimensional and layered courtyard spaces with a sense of fun. This provides children with the possibility of meandering, exploring, playing, chasing, and gathering outdoors during class breaks, effectively stimulating the vitality and energy of campus life.
▼小学二层活动平台, The second floor activity platform of the Primary School©明境建筑摄影
采用课室+小院落的组织方式,利用平台下空间让多种专业课室围绕院落进行布局,配合学校人文、科技、艺术的主题,创建书香苑、文体苑、音乐苑、科技苑四个主题小院落,营造不同主题的教学活动氛围。
▼学堂趣院轴测图,academy axonometric©华南理工大学建筑设计研究院有限公司工作二室
Organized by a combination of classrooms and small courtyards, the design utilizes the space below the platform to layout various specialized classrooms around the courtyard. With themes of humanities, technology and art, four varied theme courtyards—Literature Courtyard, Culture & Sports Courtyard, Music Courtyard, and Technology Courtyard—are created to cultivate different atmospheres for teaching activities.▼小学首层院落内景,Interior view of the courtyard on the first floor of the Primary School©明境建筑摄影
▼小学二层活动平台望向内庭。The activity platform on the second floor of the Primary School from the inner courtyard©明境建筑摄影
利用东侧交通廊道形成多个交流空间,创造多义的泛阅读空间、泛课堂空间、泛小组讨论空间等,以打破僵化的廊道式教学楼呆板平面,活跃孩童思维,激发学习热情,营造活泼多态的教学空间。
In order to activate children’s mind, ignite their enthusiasm for learning, and cultivate a lively and diverse educational space, the design Utilize the eastern traffic corridor to create multiple interaction spaces, establishing versatile space for general reading, general classroom activities, general group discussion spaces and more, as a way to break away from the rigid layout of the corridor-style teaching building.▼小学二层平台东侧,East side of the second floor platform of the Primary School©明境建筑摄影
▼小学二层平台东南侧,Southeast side of the platform on the second floor of the Primary School©明境建筑摄影
▼小学北侧入口空间,Entrance space on the north side of the Primary School©明境建筑摄影
合理安排屋面布局,将空调设备集中设置在办公室屋面,利用屋顶形成方形的“空中菜园”,既可以作为绿色建筑手段降低室内温度,也可以在有限的空地内为孩童提供更多的科学实践基地。
To arrange the roof layout sensibly, the design centralizes air conditioning equipment on the office roof, utilizing the roof to create a square “rooftop garden.” This not only serves as a green building strategy to decrease the indoor temperatures but also provides children with more scientific practice space within the limited area.
▼小学北侧入口空间,Entrance space on the north side of the Primary School©明境建筑摄影
功能布局
Functional Layout
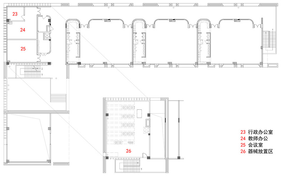
西侧体块为四层高体量,各层南北向分别布置普通教室,每层每边为完整的一个年级组 4 个班,中间为专业课室。利用西向联系廊道空间布置卫生间、疏散楼梯、办公室等辅助功能空间。行政办公集中设置在南侧四楼,独立成区。首层平台体块内围绕四个主题小院落环绕布置图书室、综合实践室、创客中心、音乐室、舞蹈室等专业课室,形成大树下教学的生动场景,也丰富了孩童的上课体验。
▼功能布局分析,funtional layout analysis©华南理工大学建筑设计研究院有限公司工作二室
The block on the west side is a four-story high structure. Ordinary classrooms are arranged in a north-south direction on each floor, with a complete set of four classes for each grade on each side, and specialized classrooms in the middle. The west-facing connecting corridor space is utilized to arrange auxiliary spaces such as bathrooms, emergency staircases, and offices. Administrative offices are centrally located on the fourth floor of the south side, forming a separate area. Within the platform block on the ground floor, surrounding four themed courtyards, facilities such as the library, multipurpose practice room, creative center, music room, and dance studio are arranged, creating a lively teaching scene under the big trees and enriching children’s education experience.
▼小学北侧庭院内景,
Interior view of the courtyard on the north side of the Primary School©明境建筑摄影
▼小学走廊效果,corridor effect of the Primary School©明境建筑摄影
▼小学南侧庭院中的楼梯,
The staircase in the courtyard on the south side of the Primary School©明境建筑摄影
立面造型
Facade Design
方案采用白色素混凝土材质的横向连续折板,以及陶土板和陶土百叶遮阳立面进行构建,体现矩形体块的整体感和构成感,同时透露建筑内部若隐若现隐约的有趣空间,并和校区其它建筑取得材质上的统一协调。
The scheme incorporates white raw concrete horizontal continuous folded plates, as well as terracotta panels and louvers for sun shading facades, to enhance the overall sense of the rectangular blocks and their structure. This design approach also reveals intriguing spaces within the building, subtly and partially visible from the outside, while maintaining material unity and harmony with other buildings on the campus.
▼小学北入口,North entrance of the Primary School©明境建筑摄影
▼小学南立面图,South elevation of the Primary School©明境建筑摄影
▼小学西北侧低点,Northwest side visual effect of the Primary School©明境建筑摄影
▼小学西南侧低点,Southwest side visual effect of the Primary School©明境建筑摄影
▼小学西侧低点,West side visual effect of the Primary School©明境建筑摄影
▼风雨操场东南侧低点,Southeast side pedestrian visual effect of the gymnasium©明境建筑摄影
▼风雨操场内景,Interior of the gymnasium©明境建筑摄影
幼儿园
The Kindergarten
设计构思
Design Concept
由于用地非常紧张,同时,北面、南面、西面等都有高层住宅环绕。设计在紧凑布局的前提下,尽量采用建筑空间与活动场地相叠加的方式来化解场地局促的矛盾,创造更多的空间形式来丰富活动空间。建筑整体呈 L 型三层布局形式,与彩色钢管围墙一起围合出幼儿园的内部空间。整个二层屋面及廊道联系成为一个完整的环形跑道,在有限用地内争取更多的活动面积,增加体质锻炼的机会。课室内采用北欧枫木材质,温暖舒适。
Due to the extremely limited land area and the surrounding high-rise residential buildings on the north, south, and west sides, the design aims to resolve the constraints of the site by compactly integrating architectural spaces with activity areas to create a variety of spatial forms and enrich the activity spaces. The overall structure of the building adopts an L-shaped three-story layout, enclosed by a colorful steel pipes fence to define the interior space of the kindergarten. The entire second-floor roof and corridor are connected to form a complete circular track, maximizing activity space within the limited area and providing more opportunities for physical exercise. The classrooms are furnished with warm and comfortable Nordic maple wood materials.
▼幼儿园南侧鸟瞰图,Aerial view of the south side of the Kindergarten©明境建筑摄影
幼儿园呈 L 型,北侧与小学结合,成为一个完整的连续界。南侧利用彩色钢管围墙弧形围合三个班级单元,呈坡屋顶体块有节奏地布局,西北角为较高的 3 层竖向体量,与横向舒展的体量形成对比。音体室在东南侧,呈单独坡屋顶体量。
The Kindergarten takes on an L-shaped layout, integrated with the Primary School on the north side to form a continuous boundary. On the south side, a colorful curved steel pipe fence encloses three classroom units in a rhythmic layout with sloping roof blocks. In the northwest corner, there is a taller 3-story vertical volume contrasting with the horizontal volume. The music and physical education room is located on the southeast side within a separate sloping roof volume.
▼幼儿园走廊内景,The visual effect of the Kindergarten in the corridor©明境建筑摄影
功能布局
Functional Layout
建筑整体呈 L 型 3E 层布局形式,9 个生活单元分三层布置,L 型短边为专业活动教室及音体室、图书室等等。入口左侧为后勤用房,右侧为辅助用房。西北角顶层为资料室及空调机房。在基本生活用房单元中,平面布置采用活动室与卧室一体化的设计模式,卫生间靠外窗布局,利于通风采光。
The building features an L-shaped three-story layout, with 9 living units spread across three floors. On the shorter edge of the L-shape are specialized activity classrooms, music and physical education rooms, a library and more. On the left side of the entrance are logistical rooms, while on the right side are auxiliary rooms. The top floor at the northwest corner houses a storage room and an air conditioning room. Within the basic living units, the floor layout adopts a design pattern that integrates activity rooms with bedroom areas, with bathrooms positioned near outer windows for improved ventilation and lumination.
▼幼儿园内庭低点效果,The visual effect of the Kindergarten in the courtyard©明境建筑摄影
趣味空间
Playful Spaces
猫爪圆洞——轻柔地触碰世界
在二层活动平台上用五个镂空的圆洞形成小庭院,总图上构成猫爪图案,以此设计理念,使平台上下视线贯通、丰富,使得幼儿园空间活泼灵动,更富有童真童趣,更寓意着孩童在这里玩耍生活,就像可爱的猫爪一样,好奇、轻柔地触碰这个多彩的世界。
屋面环形跑道——解放空间,活力不停
整个二层屋面及廊道联系成为一个完整的环形跑道,利于解放空间,在有限用地内争取更多的活动面积,增加体质锻炼的机会,同时增添幼儿园的场所活力。
▼幼儿园轴测图,Kindergarten axonometric©华南理工大学建筑设计研究院有限公司工作二室
Cat Paw Holes – Gently Touching the World
On the second-floor activity platform, five hollow round holes form small courtyards, collectively creating a cat’s paw pattern on the overall layout. This design concept allows for visual connectivity and richness between different levels of the platform, making the kindergarten space lively, dynamic, and full of childlike innocence and fun. It symbolizes children playing and living here, much like adorable cat paws, curiously and gently touching this colorful world.
Rooftop Circular Track – Liberated Space, Endless Energy
The entire second-floor roof and corridor are interconnected to form a complete circular track, liberating the space to maximize activity spaces within the limited area, providing more opportunities for physical exercises and adding vitality to the Kindergarten space.
▼幼儿园二层平台局部俯视图,
Partial top view of the second floor platform of the Kindergarten©明境建筑摄影
▼幼儿园“猫爪圆洞”首层效果,The first floor effect of “Cat Claw Round Hole” in the Kindergarten©明境建筑摄影
▼幼儿园“猫爪圆洞”与滑梯,the “Cat Claw Round Hole” and Slide of the Kindergarten©明境建筑摄影
立面造型
Facade Design
建筑立面采用彩色钢管、彩色方形窗洞、木格栅与木色平台等元素,形成斑斓有趣而又亲和温暖的空间氛围,营造出更适合孩童特点的宜人成长空间。
The building facade incorporates elements such as colorful steel pipes, square window openings, wooden lattices, and wooden platforms to create a vivid, interesting, and welcoming warm spatial atmosphere. This design aims to establish a pleasant and nurturing space that is more suitable for children, catering to their characteristics and establishing an environment conducive to their growth.
▼幼儿园二层平台东南侧半鸟瞰图,
Half bird’s-eye view of the southeast side of the second floor platform of the Kindergarten©明境建筑摄影
▼幼儿园南侧局部立面效果,Partial facade effect on the south side of the Kindergarten©明境建筑摄影
▼总平面,site plan
©华南理工大学建筑设计研究院有限公司工作二室
▼幼儿园首层平面,kindergarten ground floor plan©华南理工大学建筑设计研究院有限公司工作二室
▼幼儿园二层平面,kindergarten second floor plan©华南理工大学建筑设计研究院有限公司工作二室
▼幼儿园三层平面,kindergarten third floor plan©华南理工大学建筑设计研究院有限公司工作二室
▼幼儿园屋顶平面,kindergarten roof plan©华南理工大学建筑设计研究院有限公司工作二室
▼幼儿园东立面,kindergarten east elevation©华南理工大学建筑设计研究院有限公司工作二室
▼幼儿园西立面,kindergarten west elevation©华南理工大学建筑设计研究院有限公司工作二室
▼幼儿园南立面,kindergarten south elevation©华南理工大学建筑设计研究院有限公司工作二室
▼幼儿园北立面,kindergarten north elevation©华南理工大学建筑设计研究院有限公司工作二室
▼幼儿园剖面,kindergarten section©华南理工大学建筑设计研究院有限公司工作二室
▼小学首层平面,primary school ground floor plan©华南理工大学建筑设计研究院有限公司工作二室
▼小学二层平面,primary school Second floor plan©华南理工大学建筑设计研究院有限公司工作二室
▼小学三层平面,primary school thirdfloor plan©华南理工大学建筑设计研究院有限公司工作二室
▼小学四层平面,primary school forthfloor plan©华南理工大学建筑设计研究院有限公司工作二室
▼小学屋顶平面,primary school roofplan©华南理工大学建筑设计研究院有限公司工作二室
▼东立面图,east elevation
©华南理工大学建筑设计研究院有限公司工作二室
▼西立面图,west elevation©华南理工大学建筑设计研究院有限公司工作二室
▼南立面图,south elevation©华南理工大学建筑设计研究院有限公司工作二室
▼北立面图,north elevation©华南理工大学建筑设计研究院有限公司工作二室
▼剖面图,section©华南理工大学建筑设计研究院有限公司工作二室
项目名称:华南理工大学国际校区 F6 小学、幼儿园
项目类型:教育建筑
设计方:华南理工大学建筑设计研究院有限公司工作二室
项目主持:倪阳、郭嘉
设计团队:
建筑:郭嘉、陈坚、李贤泽、何岸绮、王悦、杨斯、邓丽娜、李祖超、潘建华
结构:赖洪涛、易春荣、王越、何智威
给排水:陈欣燕、李宗泰、刘灿成、张积洋
电气:俞洋、李炳魁、余波延
智能化:范细妹、卢建宇、黄光伟
景观:晏忠、郭志盛、伍朝晖、廖俊峰
暖通:陈祖铭、林小海、杜智恒、张镇钦、徐淦锋
绿建节能:胡文斌、石刚、李宇航
室内设计:曾书函、王蓓
项目驻场经理:黄光锐
完成年份:2023 年
项目地址:广东省广州市华南理工大学国际校区
建筑面积:小学 11500㎡,幼儿园 3509㎡
摄影版权:明境建筑摄影
图纸及分析图版权:华南理工大学建筑设计研究院有限公司工作二室
客户:华南理工大学
客服
消息
收藏
下载
最近
































































