查看完整案例

收藏

下载
光影入目
构建真实可见的世界
让美可被感知
本案位于有“泉城”之称的济南。设计师受到“佛山倒影”的感发,以光影叙事为本案脉络。通过解构、光影共生打造出一个远离喧嚣与浮躁,富有纯净诗意的多层空间。
左右滑动,查看更多 →
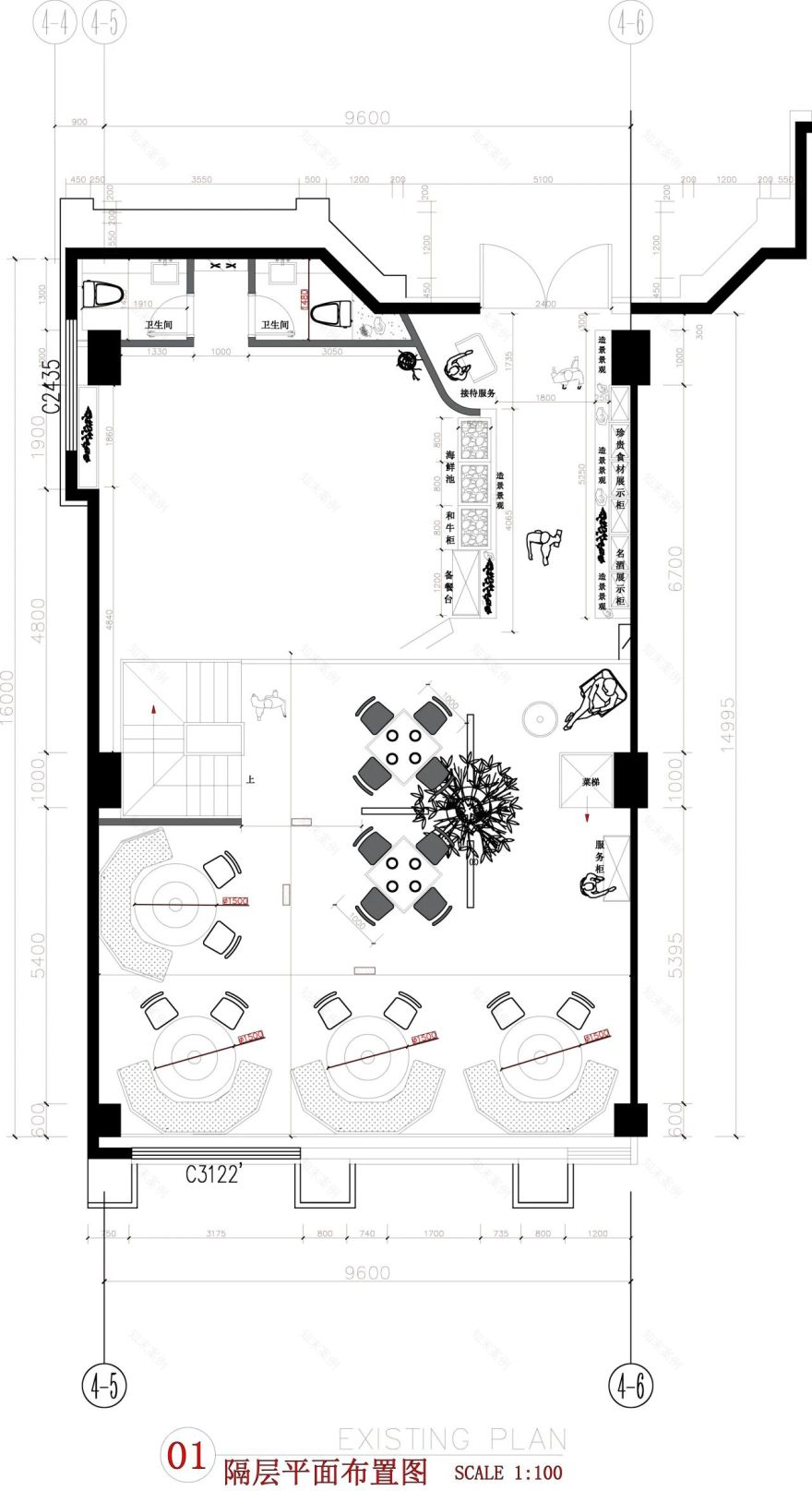
从左到右依次为:1F、2F及隔层平面图
历经繁华
更向往诗意与静谧
抛开浮躁与喧嚣,丢掉浮夸色彩、繁琐装饰,用简洁的线条勾勒出层次分明的空间美学。
解 构
Deconstruction
当空间被解构重组,再次赋予空间更深刻的力量,以另一种形态表达设计之美学。
建筑线条之楼梯,注入空间温度与感性。明暗交错,光影重叠,空间的层次与缔结在光影中得到充分的感知。
光与影的叙事
Light and Shadow
光影月之与空间
如血液之与肌肤
现代审美基础之上,对空间、消费者、光影之互动关系进行深入挖掘,在场景之中反复提炼,让三者互动充满趣味。
自然返璞
Returning to nature
通过对空间的设计,利用光线让空间流动起来,让光影被感知,虚化空间的边界感,赋予空间情绪。给食客带来不同的趣味与体验。
项目信息
项目名称:雍和荟海鲜和牛宴
项目地点:山东,济南
项目面积:800平方米
设计时间:2023年10月
完工时间:2024 年 3 月
设计单位:上海梵西建筑设计咨询事务所
主创设计:Aaron
品牌设计:VANCY
餐饮家具:万振家具
灯光:石客照明
摄影:崔宏强
Aaron
呦羊府餐饮联合创始人
梵几建筑设计有限公司合伙人
上海梵西建筑设计咨询事务所创始人
客服
消息
收藏
下载
最近






























