查看完整案例

收藏

下载
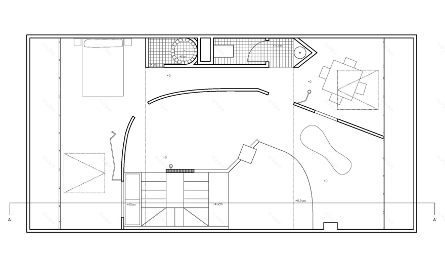
Casa Antillón 是马德里的一家建筑和设计工作室,一座没有门的房子是它其首个家庭装修项目 。最初,这个区域是一个约 70 平方米的阁楼,堆满玩具、家具和灰尘,几乎毫无用处。客户要求将其改造成适合孩子和客人居住的小住宅,包括客厅、卧室、壁炉、充足储藏室和浴室。工作室很快意识到这个新家需要打破建筑其余部分的传统等级制度,避免传统的孤立房间布局,即被墙和门隔开且每个空间被分配特定功能而缺乏互动。
工作室的方法是打破房子的墙壁,进行切割、变形和摧毁,旨在复兴中央壁炉的古老概念,围绕壁炉组织不同区域,这些区域不命名以保持随时间灵活使用的同时确保一定程度的隐私。为此,设计了一堵分隔公共和私人空间的破碎弧形墙,其位置关键,将天窗置于一侧,让充足光线涌入并得以控制。通过创造开口模拟在无窗内部向外看的体验,墙壁两侧通道方便通往较小房间及周围移动。
对浴室采用类似策略,将其划分为淋浴、卫生间和水槽独立空间,这种模块化方法占地少且在公寓内创造不同互动,设想人可赤脚走过地毯直接步入淋浴间无需开关门。在墙壁和浴室这两个关键元素之间出现一条走廊,为空间增添紧张感,这条秘密通道连接房间并提供通往浴室的通道,培养了典型家庭中不常见的关系,鼓励探索,让居民每天可选择自己在空间中的路径。
工程名称:无门的房子
坐落地址:西班牙 马德里
设计单位: Casa Antillón
摄影:Germán Saiz
竣工时间:2023 年
点击名片|关注我们
客服
消息
收藏
下载
最近

















