查看完整案例

收藏

下载

翻译
Architect:Spicy Architects / Ryo Yamamoto;POINT / Ben Nagaoka
Location:2 Chome-7-1 Sengoku, Bunkyo City, Tokyo, Japan; | ;View Map
Project Year:2024
Category:Showrooms
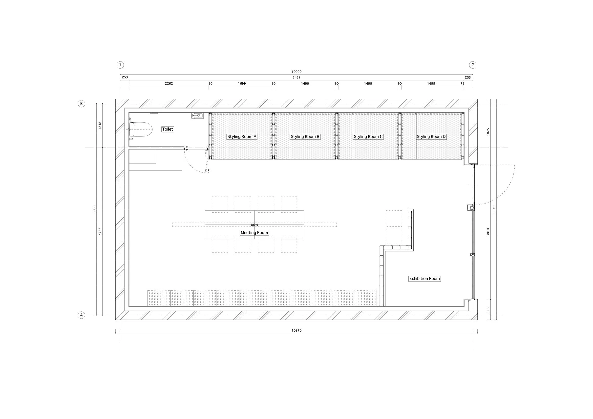
To showcase and display the flexibility of the new, lightweight “uni Marble Panel” from Yabashi Marble - an architectural stone company founded in 1901- we proposed showroom with a specific system and environment, that allows users to freely reconfigure the space and test out different variations and material combinations.In accordance with Yabashi Marble’s goals, “ISHI-MIRAI Lab.” aims to not only become a space to discover the charm of marble, but also discover the possibilities of the stone in the future, where the “uni Marble Panel”, designed specifically for interior use, shows the way.
The system revolves around 4 booths finished in 4 different basic colors - black, gray, beige and reddish brown - variating in color shades and materials. On a large display wall, 14 different types of “uni Marble Panel" can be viewed and prepared to be introduced into the differently toned rooms. Each panel can be easily attached to and removed from the wall or furniture modules using special brackets.
Samples of different materials and textures, such as wood and metal, are also provided to facilitate an even more extensive testing of combinations with different materials. The chairs and other furniture around the central meeting table are made from a variety of materials and colors, including wood, aluminum, cork, and plastic. With “ISHI-MIRAI Lab.” we are combining the atmosphere of possible interior scenarios and a functional, furnished space, which aids in expanding the imagination by focusing on the many uses of marble and in maximizing the appeal of the stone.
The "ISHI-MIRAI Lab." is intended to be a laboratory where the client, designers and builders can explore how stone and marble can be used in building and architecture in various scales and in the future through dialogue and experience.
(Ben Nagaoka + Ryo Yamamoto)
Design (Interior / Furniture) :POINT Inc. + Spicy Architects
Project team :Ben Nagaoka / Ryo Yamamoto
Logo mark / Sign :Eko Hayashi
Construction :butter inc.
Date of completion :July / 2024
Photo :Kenta Hasegawa
▼项目更多图片
客服
消息
收藏
下载
最近



























