查看完整案例

收藏

下载
狭长、拥挤、拘束,是我对基地的最初印象。相邻自组织空间的多元、现代村落人气活力的缺失……引起了对该地块的深思。
如何突破公共空间与农房的界限?如何协调公共空间与村落风貌的关系?如何实现既符合使用主体行为,又适应当地气候环境的适配空间?是本次创作面临的挑战。
——高博
My initial impression of the base is narrow, crowded, and constrained. The lack of mundane vitality and diverse interpersonal interactions in the adjacent self-organized spaces in the village … propels me to contemplate this specific parcel. How to surpass the boundaries between public space and farmhouses? How to coordinate the relationship between the public domain and the vernacular landscape of the village? How to achieve a space that conforms to the behavior of the users and adapts to the local climate environment simultaneously? These are the challenges my practice faced.
——Gao Bo
▼夜景鸟瞰,Night View from Above©张晓明
▼日落鸟瞰,sunset view from above©张晓明
9m 宽的空间释放 Space Release of 9m Width
项目用地为东西宽 9m,南北长 98m 的村集体用地,位于中国陕西省渭南市临渭区故市镇桥马村,窄长型基地在陕西关中村落当中极具典型性。
The project site is a collectively owned village land, 9 meters wide from east to west and 98 meters long from north to south, located in Qiaoma Village, Gu Shi Town, Linwei District, Weinan City, Shaanxi Province, China. The narrow and elongated base is a highly typical land form among villages in the Guanzhong region of Shaanxi.
▼窄长型基地,The Narrow and Elongated Base©张晓明
桥马村综合文化中心基于团状村落布局、十字街巷组织的村落现状,通过中庭、合院、室内外流通空间形成在地生长;在空间尺度、界面形体控制、材料建构与村落民居、林田形成融合,从而使关中传统建筑文化基因在现代村落内部得以连续发展,维持自身的个性和辨识度。
Based on the layout of the residential cluster in the village and the village’s current visual configuration composed by the cross streets and alleys, the Qiaoma Village Cultural Center presents itself locally through the atrium, courtyard, indoor and outdoor circulation spaces. Via spatial scale control, interface shapes configuration, and material tectonics, this project merges into the local residences and farmland, thus facilitating the gene of the traditional architectural culture of the Guanzhong region to continue to evolve in the modern era, ultimately sustaining the region’s cultural distinctness and architectural recognizability.
▼南向鸟瞰,South View from Above©张晓明
▼东向鸟瞰,East View from Above©张晓明
设计延续合院布局,在 9m 宽窄长型基地上有序布置前广场、内庭院、实体空间,虚中有实、实中有虚。东西大尺度的实体界面通过高低错落、大小不一的方形窗洞与面向广场、庭院的玻璃界面,弱化内外边界,促进人与环境的互动;灰空间塑造、本土材料选配与虚实空间交互,突显着综合文化中心的公共性、开放性与包容性;北高南低的建筑形态,最大限度的削减了建筑体量,使其自然地嵌固于以窄条型用地单元为特征的关中村落肌理中,小中见大,展现出和而不同的特点。
The design employs the layout of the courtyard, linearly placing the front square, the inner courtyard, and functional spaces on a narrow base of 9 meters in width, with virtual and solid elements interwoven. The large-scale solid interfaces on the east-west axis are visually softened by staggered, differently sized square windows and glass interfaces enclosing the square and courtyard, which blur the boundary between the inside and the outside, boosting interactions between people and the environment. The creation of gray spaces, selection of local materials, and the interplay of virtual and solid spaces highlight the public, open, and inclusive nature of the comprehensive cultural center. The building form, which is higher in the north and lower in the south, minimizes the sense of volume of this project, allowing it to naturally embed itself into the texture of Guanzhong villages characterized by narrow strip land units. It represents a specific harmonious aura and demonstrates the wisdom of showing the large picture through a small lens.
▼前广场——文化生活场景,Front Square –a Scene of Cultural Life©张晓明
▼内庭院空间,Inner Courtyard Space©张晓明
▼前广场——主入口,Front Square — Main Entrance©张晓明
▼西南向鸟瞰,Southwest View from Above©张晓明
内外交互的空间体验 Interactive Spatial Experience Between the Inside and the Outside
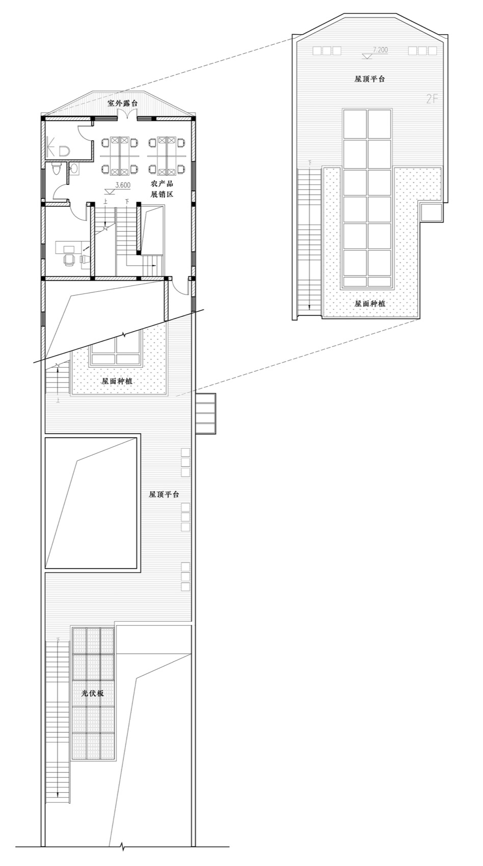
空间话语逐渐代替以屋顶形式为主的形态话语,成为本土建筑创作的主流语汇。新建乡村综合文化中心功能多元,其中,一层由北至南依次分布便民服务区、儿童阅览区、集中活动大厅、党建活动展廊、农产品展销区,各功能分区隔而不断,有序且通透,与庭院共同生长,在有界的基地中营造无界的空间体验;同时,多重行为与空间功能交互转换,使叙事化的空间有力支撑着建筑对于“时空连续体”意识的建构。北侧局部二层设置办公服务区,为一层各功能空间有序运行提供保障。
The spatial discourse gradually replaces the formal discourse made by the roof shape, becoming the mainstream ideology adopted by current local architectural creations. The newly built village cultural center is multifunctional, and its first floor, from north to south, orderly arranges the civil service area, children’s reading area, the central activity hall, the Party-themed exhibition corridor, the agricultural product exhibition hall, and a sales area. Each functional area is quasi-independent, orderly organized, and visually open, corresponding to the courtyard and thus offering a boundaryless spatial experience within a bounded site. Meanwhile, the cultural center’s flexible configuration of its functional units, which can be convertible according to users’ diverse behaviors, constitutes a narrative spatial experience, ultimately underpinning the formation of the building’s consciousness of “space-time continuum”. The north section of the second floor is used as an office service area, securing for the daily operation of various functional spaces on the first floor.
▼儿童阅览区,Children’s Reading Area©张晓明
▼农产品展销区,The Agricultural Products Exhibition Hall and the Sales Area©张晓明
参观人员由北侧主入口进入,依次穿过门厅、中庭、展厅、过厅至后院,再沿南向屋面拾级而上,行至二层屋顶,从有界的室内漫步至无界的外部空间,感受村落内多彩的朝霞与落日、农宅与林田,打破着人与自然的界限。服务办公人员通过门厅,可直达二层办公区域,构成独立的交通流线。
Visitors enter the building through the main entrance on the north side, successively passing through the foyer, atrium, exhibition hall and arrive at the backyard. By walking up the south roof steps, they could get up to the roof of the second floor, from which they could stroll from the bounded interior to the unbounded exterior space and experience the colorful dawn and sunset, farmhouses, and the farmland within the village, thus blurring the boundary between humanity and the nature. Service staff can go through the lobby and directly reach the office area on the second floor, constituting an independent traffic flow line.
▼后院种植区,backyard Garden Area©张晓明
▼屋顶平台一,Rooftop Platform One©张晓明
绿色宜居 Green and Livable Space 回应关中地区夏季炎热多雨,冬季寒冷的气候特点,着重考虑当地风、光、雨等自然因素对建筑的影响,采用自然通风、采光,保温隔热,雨水收集等气候响应设计策略,以及贴合民生,解决乡村日常生活排污问题,为关中现代乡村建筑绿色低碳转型进行积极探索。
Responding to the climatic characteristics of the Guanzhong region, which is hot and rainy in summer and chilly in winter, the design takes local natural factors, ranging from wind, light, and rain into consideration. It adopts climate-responsive design strategies, including natural ventilation, daylighting utilization, thermal insulation, and rainwater collection. Additionally, this project cares about people’s livelihood by solving the issue of sewage discharge in rural daily life, actively exploring a green and low-carbon transition for modern rural architecture in the Guanzhong region.
▼南向夜景鸟瞰,Aerial View of the Night View from the South©张晓明
风环境通过室内流通空间与通高中庭形成水平与竖向有序的自然通风。在室内由北向南的 S 型水平流动展厅中,以庭院为节点,构成南北两段水平通风廊道;围绕内中庭通高空间形成热压通风廊道,形成热压通风与功能空间的耦合。
▼自然通风分析图,Natural ventilation analysis diagram©西安建筑科技大学建筑学院
Wind environment By utilizing the indoor circulation space and the vertically open atrium, a horizontal and vertical natural ventilation system is established in an orderly manner. In the S-shaped horizontal exhibition hall that expands from north to south indoors, courtyards serve as nodes, constituting two horizontal ventilation corridors in the north and south. Surrounding the central atrium space vertically opened, a thermal pressure ventilation corridor is placed, coupling thermal pressure ventilation with functional spaces.
▼集中活动大厅,Main Assembly Hall©张晓明
光环境契合纵向狭长、北高南低的建筑形体,在建筑中部置入庭院空间,有效组织室内自然采光;在集中活动区域、楼梯间等室内公共空间,通过对应采光顶棚改善室内光环境,减少人工照明;南向坡屋面无遮挡区域敷设太阳能光伏板,实现太阳能利用与建筑一体化,低碳环保。
Lighting environment To match the vertical and elongated building form, which is higher in the north and lower in the south, a courtyard space is inserted in the middle of the building to optimize natural indoor lighting. In indoor public spaces such as activity areas and stairwells, corresponding light-transmitting canopies are installed to reduce artificial lighting. Solar photovoltaic panels are laid out on the unobstructed south-facing sloped roofs, enhancing the building’s exploitation of solar energy and contributing to a low-carbon and environment-friendly result.
▼采光通风顶棚,Lighting and Ventilation Canopy©张晓明
热环境通过屋顶覆土种植,北侧双层墙体设置,东西外墙内保温构造,地面保温隔潮垫层构造等一系列不同朝向表体非平衡气候响应技术,共同调节着冬夏两季室内的热环境。▼冬季保温分析图,Winter Insulation Analysis Diagram©西安建筑科技大学建筑学院
▼夏季隔热分析图,Summer Insulation Analysis Diagram©西安建筑科技大学建筑学院
Thermal environment By employing a series of non-uniform climate response technologies, including soil planting on the roof, double-layered walls on the north side, internal insulation construction on the east and west external walls, and thermal insulation and moisture-proof padding layer on the ground, the indoor thermal environment actively responds to winter and summer conditions respectively.
▼墙体内保温构造,In-wall Insulation Structure©高博
▼地面保温隔潮垫层,Floor Insulation and Moisture Insulation Underlayment©高博
雨水组织 屋顶采用有组织排水,分层设置落水管,汇集的雨水通过地埋式管道,统一导入基地人工生态湿地后,再进入北侧排碱沟。
▼雨水组织分析图,Stormwater Organization Analysis Diagram©西安建筑科技大学建筑学院
Rainwater organization: The roof is designed with organized drainage and layered downspouts. The collected rainwater is directed through underground pipes to an artificial ecological wetland on the site, and is eventually poured into the alkali drainage ditch on the north side.
▼屋顶平台二,Rooftop Platform Two©张晓明
污水处理 污水与雨水排放系统分离设置。后院设置三格式化粪池,与南侧村道相邻便于定期清运;经与毗邻宅基地协商,在东侧空地设置三缸式污水处理系统,综合文化中心和农宅灰水至此处理后排入北侧排碱沟。
▼灰水组织分析图,Greywater Treatment Analysis Diagram©西安建筑科技大学建筑学院
Sewage treatment. The sewage and rainwater drainage systems are set up separately. A three-stage septic tank is installed in the backyard, adjacent to the south village road for easy clean up on a regular base. After consultation with the adjacent household, a three-tank sewage treatment system is set up on the vacant land to the east. The greywater from the comprehensive cultural center and farmhouse is treated here before being discharged into the alkali drainage ditch on the north side.
▼东南向鸟瞰,Southeast View from Above©张晓明
细节建造
Detail Construction
设计开始于人与材料物质的对话。建筑材料的选择受施工工艺与成本限制,就地选材,延续本土水刷石施工工艺,特别在石子颜色、粒径,墙面尺度划分等方面,选配与村落风貌相协调的工法技艺。此外,无障碍设计、细密的竹木栏杆、共享菜地、集会广场、图书角等,体现着对乡村老年人与儿童为主的群体友好。
Design begins with a dialogue between people and materials. The selection of building materials is limited by construction technology and the budget, leading to the employment of local materials. Local water-brushed stone construction technique is used in this design to sustain this local culture, especially in terms of stone color, grain size, and wall scale division, selecting craftsmanship that coordinates with the village style. Additionally, barrier-free design, fine bamboo and wood railings, shared vegetable plots, gathering squares, and book corners offer a friendly spatial atmosphere for the elderly and children in the village.
▼水刷石外墙,Water-washed Stone Facade©张晓明
桥马村综合文化中心的设计实践,不仅是对关中传统建筑文化基因的创新性传承,也是现代乡村实现绿色低碳转型的一次探索实践。其内外交互的体验空间、绿色宜居的设计策略与低成本的建造技术,在有界的实体中展开无界的空间释放;在这里,每个村民都能参与其中,构建着共建、共享、共议与共治的乡土社会。
The design of Qiaoma Village Cultural Center is not only an innovative continuation of the traditional architectural culture of the Guanzhong Region but also an exploration for modern rural areas to achieve green and low-carbon transformation. Its interactive spatial experiences, green and livable design strategies, and low-cost construction techniques expand boundless spatial release within a bounded entity. In this building, every villager can participate, building a local society that is co-constructed, shared, discussed, and governed together.
▼西向鸟瞰,West View from Above©张晓明
▼东北向鸟瞰,Northeast View from Above©张晓明
▼总平面图,Master Plan©西安建筑科技大学建筑学院
▼一层平面图,Ground Floor Plan©西安建筑科技大学建筑学院
▼二层及屋顶平面图,Second Floor Plan and Roof Plan©西安建筑科技大学建筑学院
▼北立面图,North Elevation©西安建筑科技大学建筑学院
▼西立面图,West Elevation
©西安建筑科技大学建筑学院
▼剖透视图,Section Perspective©西安建筑科技大学建筑学院
项目名称:渭南·桥马村综合文化中心
项目类型:建筑
设计方:西安建筑科技大学设计研究总院有限公司
项目设计:2024 年 4 月—2024 年 6 月
完成年份:2024 年 7 月—2024 年 9 月
设计团队:高博、王怡琼、杨梦娇、刘琨琦、周晨曦、康坤哲、贾库、张全民、汪东、邵先来、燕博、关雨昕、张予晗、王烁皓、张力、赵更新、李丹阳、武玥彤、朱子涵、张琦
项目地址:陕西省渭南市临渭区故市镇桥马村
建筑面积:365.72㎡
摄影版权:张晓明
合作方:西安建筑科技大学建筑学院
客户:故市镇人民政府
材料:水刷石、真石漆、断桥 LOW-E 中空玻璃、太阳能光伏板
品牌:中国华电集团公司、陕西中科玻璃有限公司、陕西关中果农供应链有限公司
Project name: Weinan-Qiaoma Village Cultural Center
Project type: Architecture
Design: Xi’an University of Architecture and Technology Design and Research Institute
Design year: April – June 2024
Completion Year: July – September 2024
Leader designer & Team: Gao Bo & Gao Bo, Wang Yiqiong, Yang Mengjiao, Liu Kunqi, Zhou Chenxi, Kang Kunzhe, Jia Ku, Zhang Quanguo, Wang Dong, Shao Xianlai, Yan Bo, Guan Yuxin, Zhang Yuhang, Wang Shuohao, Zhang Li, Zhao Gengxin, Li Danyang, Wu Yutong, Zhu Zihan, Zhang Qi
Project location: Qiaoma Village, Gu Shi Town, Linwei District, Weinan City, Shaanxi Province
Gross built area: 365.72㎡
Photo credit: Zhang Xiaoming
Partner: School of Architecture, Xi’an University of Architecture and Technology
Clients: Gu Shi Town Government
Materials: Water-brushed stone, genuine stone paint, broken-bridge LOW-E double-glazed glass, solar photovoltaic panels
Brands: China Huadian Corporation, Shaanxi Zhongke Glass Co., Ltd, Shaanxi Guanzhong Fruit Farmer Supply Chain Co., Ltd
客服
消息
收藏
下载
最近



































