查看完整案例

收藏

下载

翻译
Architects:MORFEUS arkitekter
Area:260m²
Year:2022
Photographs:Finn Ståle Feldberg
Manufacturers:FLOS,Svane,Vileroy & Boch,nordvestvinduet
Lead Architects:Caroline Støvring, Cecilie Wille, Matthew Dylan Anderson, Mari Høstmælingen Grennæs
General Constructing:Tømrermester Øivind Frivoll AS
City:Oslo
Country:Norway
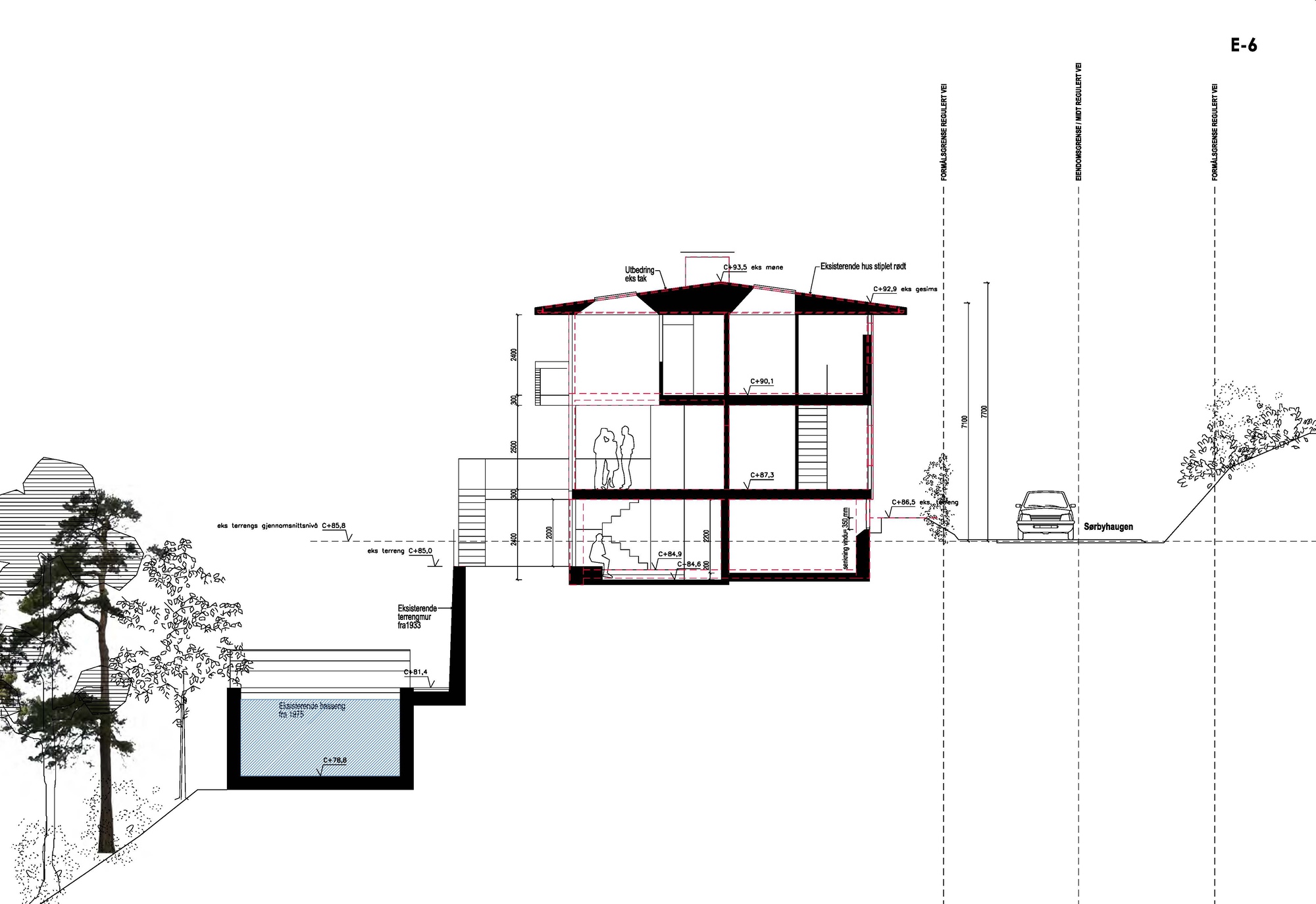
Text description provided by the architects. MORFEUS arkitekter was engaged by clients Astri and Henrik Botten Taubøll in 2017 to design a new home on their recently inherited property, Sorbyhaugen 24 in Oslo. The choice fell jointly on rebuilding, transforming, and extending the original house from 1933, even though the house was in poor condition. The result is a contemporary, unique architectural object with a distinctive local, historical anchoring. The property is in the district of Ullern in Oslo, on a ridge sloping westwards towards the small stream "Makrellbekken". The terrain falls steeply, approximately 30 meters in a westerly direction, and the site is characterized by tall pine trees amidst a splendid view towards the Oslo fjord in the southwest.
The original residence on the property dates back to 1933 and belonged to the client's grandmother. Early functionalist wooden villas are typical for this neighborhood. The original house on this site, Sorbyhaugen 24, had no distinct conservation value. Typical functionalistic detailing, and the use of colors in the exterior and interior, have therefore been reintroduced, yet with a more modern twist on architectural expression, detailing, and floor plans.
Project gallery
客服
消息
收藏
下载
最近


























