查看完整案例


收藏

下载

翻译
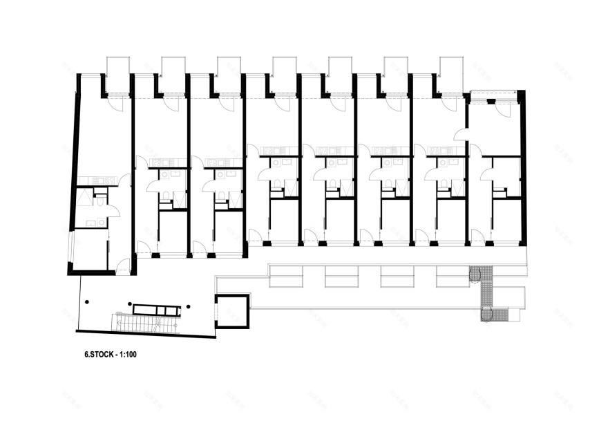
Fifty business apartments and six offices were constructed in a new building on an empty lot in Vienna. The first phase focused on supporting work for the necessary rededication.
In further phases, optimal light conditions were achieved by orienting all of the apartments facing South-East. Noise pollution was reduced by the same measure since the orientation towards a more quiet side street acted as natural sound abatement.
The building's facade is comprised of stacked traditional Viennese Schrebergardens (small, intimate garden communities), expressing a strong character in terms of urban development in a neighborhood characterized by predominantly commercial use.
客服
消息
收藏
下载
最近































