查看完整案例

收藏

下载
通过道具的巧妙运用,突破空间限制,实现功能的灵活转换,重塑空间与体验的连结。
By smart use of installations, one can break the limitations of the space, switch the functions with maximum flexibilities and rebuild the connection between spaces and experiences.
▼室内概览,overview of the indoor space©王可
尺厘设计工作室为策荧照明(Travlin)设计了位于上海天利•上高地写字楼内的新展厅。场地由三面落地窗和两面白墙围合而成,大面积的落地窗为整个空间带来了充足的采光。但整体条件较为平实单一,我们希望在满足空间的使用需求的同时,为其赋予更加灵活的可能性。将空间划分为展示空间和聚会空间,利用北侧 20 余米的墙面,将现有入口的位置进行退让和倾斜,实现视线的自然转换,同时用入口链接展示空间和照明效果模拟空间。
▼入口轴测,entrance axonometric©atelier siyu
Atelier Siyu has completed the office and showroom for the lighting brand Travlin. The space is located in the Shang High Land creative park in Shanghai, enclosed by three floor-to-ceiling windows and two white walls. The large window opening brings ample light into the entire space. However, the original space in general is quite flat and restrained. We hope to add more flexibilities while fulfilling the needs for functions. Thus we split the space into showroom and gathering area, withdraw and tilt the entrance on the 20-metre-long wall to create interesting perspectives. The entrance also helps to connect the showroom and the space for lighting simulations.
▼入口,entrance©王可
▼展示空间,showroom©王可
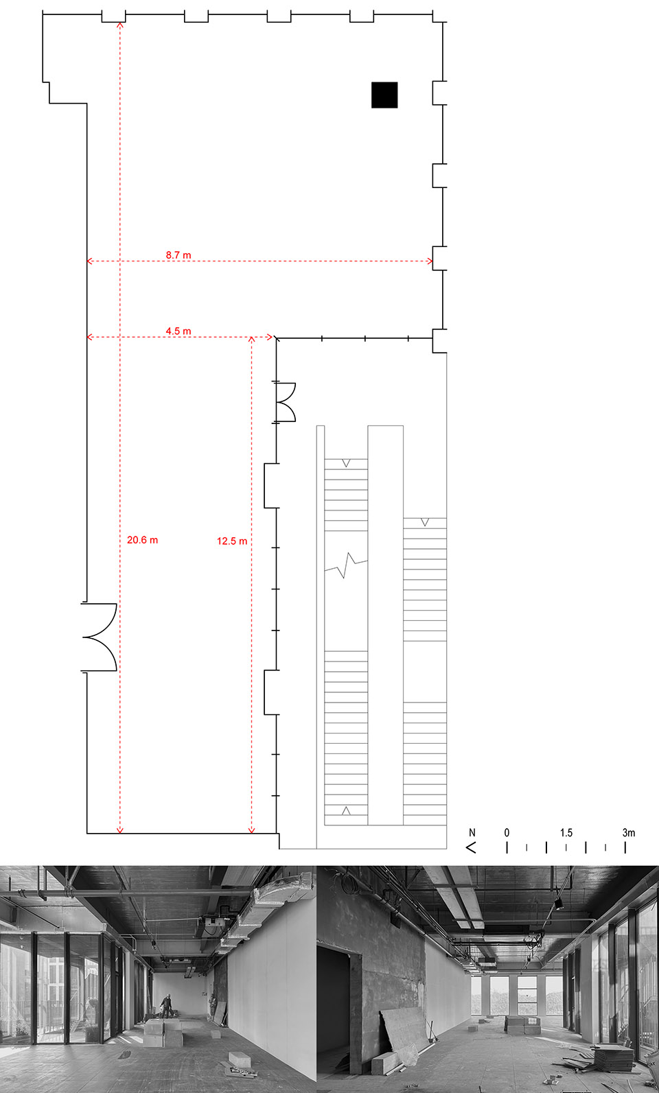
基地东南角有一根宽 600mm 的柱子,北侧为约 20 米长的墙面,整体呈最小宽度 4.5 米、最大宽度 8.7 米的 L 形空间。容纳了照明展示、聚会交流和办公会议等复合功能,而占据空间重要位置的照明展示区域需要尽可能少的自然光干预,这与现有场地的大面积采光存在冲突。为了解决这一冲突,我们在场地朝向消防疏散楼梯的玻璃帷幕前分别增加白墙和黑色柜体,2.4 米高的封闭柜体能够遮挡大部分展示空间的自然光,优化展示区空间光线的同时,也遮蔽了消防楼梯通道,增强了空间的整体性和私密性。部分的阳光仍旧可以透过柜体上方的窗户投射进入室内,随着一天不同时段的光线更替,为空间营造巧妙的光影变化。
▼现存平面图,existing plan©atelier siyu
The space is in L shape with a 20m wall as the length, the shortest width is 4.5m and the longest is 8.7m. There is a column of 600mm width in the southeast corner of the space. It accommodates multiple functions including lighting display, gatherings and exchanges, office and meetings, among many other. The space for lighting display occupies an important part in the space and requires minimum intervention from other lighting resources, which conflicts with the abundant natural lights of the existing site. To solve this problem, we added white walls and black cabinets in front of the glass curtainwalls. The 2.4-meter-high cabinets can help block most of the natural light in the display space, and further optimize the lighting effect while concealing the fire-fighting stairway, creating stronger sense of integrity and privacy of the space. Meanwhile, part of the sunlight can still come into the room through the windows above the cabinets and create interesting changes of light and shadow through different times of the day.
▼展示空间,showroom©王可
新增的 4 米白墙通过绿色槽钢与立柱产生了视觉上的延伸,划分出展示空间与聚会空间的同时,模糊两者的边界感。场地东向的逆光光线,通过开阔的聚会空间投射到狭长的展示区,逐渐变暗,人工照明开始成为空间的主角,如此的过渡变化带来有趣的视觉体验。
▼结构细部,structure detail©atelier siyu
The newly added 4-meter white wall is visually extended with the green channel beam and pillar, dividing the display space and the gathering space while blurring the boundary between the two. The backlight from the east of the space is projected into the narrow display area through the open gathering space. With the light becomes gradually dimming, the artificial lighting begins to dominate the space. Such transitions created an interesting visual experience.
▼绿色槽钢与立柱产生了视觉上的延伸,visually extended with the green channel beam and pillar©王可
▼绿色槽钢,the green channel beam©王可
我们沿着东南侧原有的外墙设置了等分秩序的墙面,能够在隐藏卷帘系统的同时实现更好的遮光效果,整个空间的照明能够在展示区与聚会区之间自然切换。尺厘设计巧用了业主私藏的老木板,通过在现有结构柱上安装一个可旋转的轴壁组件,将老木板改造为一张“悬浮”的桌板,既是一张多功能的办公桌,可以柱为轴心旋转,兼具办公、聚会、茶道、会议和接待等多种用途,也是一件艺术品,可旋转的桌子与柱体的结合也弱化了柱子在角落空间的突兀感。
▼轴测图,axonometric©atelier siyu
We added walls in equal order along the original façade on the southeast side, which conceals the roller blind system while providing better shading effect. Thus different lightings can be naturally switched between the showroom and the gathering space. The client has an old wood panel as his personal collection. By installing a rotatable shaft on current structure column, the designer has smartly changed the wood panel into a “floating” table, which can be used for office, parties, tea ceremonies, meetings and receptions. Together with the column, the wood panel helps to reduce the abruptness of the column in the corner, while itself also becomes an art installation for the space.
▼可旋转的桌子与柱体的结合,rotating table in combination with columns©王可
▼将老木板改造为一张“悬浮”的桌板,changed the wood panel into a “floating” table©王可
▼“悬浮”的桌板细节,a “floating” table detail©王可
▼平面图,plan©atelier siyu
▼木制件,wood piece©atelier siyu
策荧展示空间
地点:中国上海 闵行
设计:尺厘设计工作室
完成时间:2024 年 4 月
面积:150spm
材料:金属烤漆,PVC 地胶,防火板
灯光顾问:策荧照明
家具/灯具品牌:Vitra,Artemide
施工总包:南通钰柬装饰工程有限公司
摄影:王可
特别鸣谢:
撰文:门事部
画作:胡胡胡
积木装置制作:上海雅历设计装饰
Travlin stand
Site Address:Minhang, Shanghai, China
Design:atelier siyu
Year of Completion:April 2024
Gross area:150spm
Materials:metal, lacquer,PVC floor,HPL
Lighting Consultant:Travlin lighting
Procurement:Vitra,Artemide
Contractors:Nantong Yujian Contractors
Photographer:Wang Ke
Writing:M.Department
Painting:huhuhu
Wooden work:Shanghai idea mechanics interior Designers Contractors
客服
消息
收藏
下载
最近

























