查看完整案例

收藏

下载
△图 1 福州路侧透视
PART.1 项目概况
中海成都雅诗阁秦皇服务公寓项目用地位于四川省成都市天府新区兴隆街道,属于天府新区中心城区 CBD 核心区,紧邻东西向望山廊,往东近可观鹿溪河生态公园,远可望龙泉山麓,往西近可赏天府中央公园美景,在天气晴好时还能眺望西远方的岭雪山,用地景观资源优异。项目(2 号地块)作为中海 489 超高层塔楼的附楼,与 489 超塔(1 号地块)仅一街之隔,具有良好的区位条件。
△图 2 项目区位
建筑主要功能包括:1 栋 194m 的超高层公寓式酒店、1 组 3-4 层的多层街区式商业街,以及地下 2 层配套地下车库和设备用房。酒店塔楼共 52 层,以 29 层空中大堂为界,上下分为雅诗阁服务公寓和友里国际公寓两个酒店品牌。
PART.2
策略一:山峰、山麓、村落
成都这座城市有着“锦官城外柏森森”的怡然美景,也有“窗含西岭千秋雪”的壮美画卷。城市尽头延绵起伏的远山伴随着这里的人们度过了千百个春秋,已被深深烙印在了成都人的记忆之中。山在这片土地所代表的不仅仅是一个符号,更是这里千百代人长久的信仰。
整体方案以“山”的意向作为概念原型进行设计创作,将 1 号地 489m 超塔比拟为山峰,观光空间比拟为山巅;将 1 号地酒店塔楼及 2 号地公寓式酒店塔楼比拟为山麓;将 1、2 号地商业空间比拟为山脚下的村落。山峰、山麓、村落的概念体现了天府之国的文化、自然风光,将整个项目完美的融入周边环境。
△图 3 项目与 489 塔楼组合鸟瞰效果图
△图 4 项目“山”的概念
PART.3 策略二:院落里的四川味道
公寓,作为旅居者“远方的家”,早已不是长途跋涉中的一个驿站,而是一种地域文化的体验,一个放松身心的空间,一幅魂牵梦萦的生活场景。在建筑首层,设计通过富有四川味道的院落空间来组织雅诗阁秦皇服务公寓入口、友里国际公寓大堂及特色商业空间。从蜀地砖瓦步道、“村口”的大树、青灰色毛石墙面、温润的木质格栅、连续的廊下空间,以及廊下潺潺的水瀑声,均含蓄地对旅居者述说着传统的四川院落“安逸”的味道。休闲商业通过廊下空间与院落连接,并结合退台设置外摆区,打造体验、情景式消费场所。
△图 5 院落鸟瞰效果图
△图 6 院落空间
△图 7 院落空间
‘’
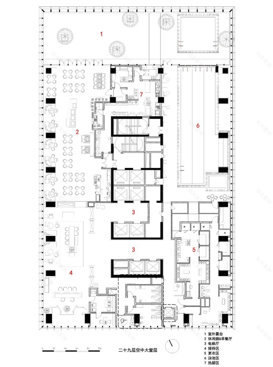
PART.4 策略三:云端客厅
结合雅诗阁空中大堂,建筑体型在中部打破体量的有序重叠,悬挑凸出空中会客厅。置入云享餐厅、云端露台、云启 29 酒吧、恒温泳池、健身房、影音室及多功能会议室,同时满足休闲旅居及商务出行,营造圈层生活的交往空间,带来超凡尊贵的云端入住体验。超大露台将室内空间延伸至室外,视野开阔、云中悬浮,尽赏天府新区 CBD 和公园城市之貌。露台早餐、喝茶闲坐、夜色酒吧,多功能使用场景为云端露台的宾客提供了别样体验。从室内泳池到露台泳池,可将新公园城市独特景色尽收眼底,从 CBD 商务核心区抬头仰望,网红属性尽显。露台泳池区与一侧露台酒吧的桃树、海棠、枫树等景观相互融入,在灯光的映射下也形成独有的氛围。
△图 8 云享餐厅
△图 8 云享餐厅
△图 9 云端客厅挑台外立面
△图 10 云端客厅平面图
△图 11 云端露台空间
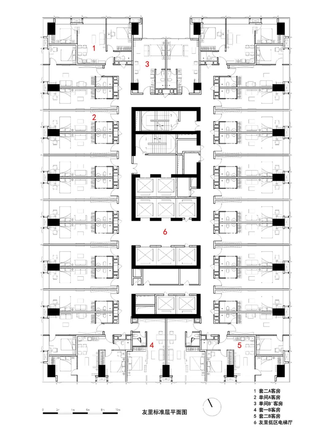
PART.5 项目特点:云居体验
公寓的设计匹配不同客群需求,提供愉悦居住体验。通过对场地东南西北各朝向及不同高度视野进行分析,形成景观价值判断:高区优于低区,西侧和东侧优于北侧和南侧,转角优于单朝向。将雅诗阁秦皇服务公寓置于高区、友里国际公寓置于低区,并将公寓大房型优先置于西北侧转角,以享天府中央公园、望山廊极致景观。结合空中大堂设置及商业庭院空间,形成垂直分区布置模式。
△图 12 景观视野分级
友里国际公寓和雅诗阁秦皇服务公寓有着不同的酒店定位,不同的客群需求,两者处于同一塔楼高低分区,设计通过模数化房型和柱网将二者面宽进行协调。友里国际公寓客群为白领阶层,设计注重空间集约、高效、一体化设计,共 704 间客房。单间套内仅 28.05㎡,在仅有的面积中,功能要素配置齐全,入户玄关、独立厨卫、客餐通厅、晾晒收纳、休闲书桌均便于使用。
△图 13 友里公寓单间平面
△图 14 雅诗阁公寓单间平面
△图 15 单间室内
雅诗阁秦皇服务公寓客群为精英商务阶层,设计注重空间仪式感。共 284 套客房。从雅致的单房公寓、两房套房、三房套房到云端套房,均注重宽景、端厅的设计。独立入户空间、开放的餐厨系统、全套房设计、主卫奢华配置,给旅居者带来愉悦和尊享之感。
△图 16 套间室内
△图 17 友里低区平面图
△图 18 福州路鸟瞰图
△图 19 宁波路鸟瞰图
△图 20 高区雅诗阁公寓外观
PART.6 细致周全的设计呈现
6.1 单元标准化设计
为了同时保证设计呈现效果及造价有效控制,塔楼外幕墙将幕墙构件直接固定于土建主体上,不设置主龙骨以控制造价,同时在建筑立面的竖向装饰构件可以削弱这种不平整带来的影响。
△图 21 外立面幕墙系统
△图 22 福州路街景
6.2 稳定经济的结构设计
根据立面存在三处收进,对比分析了“人”字形支撑转换及型钢转换梁两种方案,结构采用了型钢混凝土大梁进行转换,完美实现建筑效果,并通过对转换梁进行了细致有限元分析,确保了结构在罕遇地震下的安全。
29 层楼板悬挑较大达到 7.2m,采用钢梁+钢筋桁架楼层板布置,达到减轻悬挑部位自重,并方便施工的目的。大悬挑钢梁伸入主楼混凝土梁内确保连接可靠,进行了大悬挑楼盖舒竖向振动分析,确保悬挑楼盖的舒适度。
为实现房间内灵活布置及净高要求,核心筒外楼面尽量减少次梁数量,采用大厚度楼板布置,并采用叠合板,实现结构装配率达到 17%;房间采用预制墙板(ALC 板),即减小荷载重量,又实现建筑预制装配率不小于 30%的目标。
△图 23 远景透视
中海成都雅诗阁秦皇服务公寓以优雅的姿态落成于天府商务区核心板块,远观有如山间叠石,身临其中又宛若徜徉于云海之上,远眺西岭雪山,近看天府之国。建筑设计将“快耍慢活”的成都特质与高品质公寓式酒店的多面性需求完美结合,融合时尚商务气质与舒适放松家的体验,定义美好租住生活新主场。同时作为“西南第一高”中海“489”主塔的配套附楼之一,中海成都雅诗阁秦皇服务公寓的率先落成,让公众更加期待整体项目的完美呈现。
(郑勇 梁哲 撰文)
项目地点:四川成都天府新区
设计时间:2018 年 8 月-2019 年 04 月
建成时间:2021 年 12 月
业主单位:中海佳隆成都房地产开发有限公司
设计单位:中国建筑西南设计研究院有限公司
用地面积:9174㎡
建筑面积:103987㎡
结构形式:现浇混凝土框架-核心筒结构
项目团队:
· 设计总负责人:郑勇
· 设计副总负责人:梁哲 刘运娜 叶宏伟
· 建筑专业:李楠 吴明奇 李明 张溢韬 陈朔
· 结构专业:吴小宾 彭志桢 林俊舟
· 给排水专业:李波 杨久洲
· 暖通专业:戎向阳 罗明刚
· 建筑电气专业:徐建兵 郭东
· 建筑智能化专业:吕大霖
客服
消息
收藏
下载
最近


























