查看完整案例

收藏

下载
由Aedas上海办公室执行董事温耀春带领团队与中建西南院组成联合体,一同打造的成都天府智能港目前已成功交付投运。作为成渝科技创新高地西部(成都)科学城中的重要产业载体,它在立体多维的生态景观中构建出多尺度的弹性办公空间,为成都带来了充满无限可能的创新生态产业园区。
Aedas and China Southwest Architectural Design and Research Institute have completed Chengdu Intelligent Harbour, which is designed as a forward-looking world-class innovation hub in China. It is an ideal spot for a business park given its excellent ecological conditions near the famous Xinglong Lake.
▼夜景鸟瞰,night aerial view © aedas
“项目北望鹿溪湖河生态湿地,南临兴隆湖,东侧紧邻鹿溪智谷,周围分布地铁1号线和地铁18号,地理位置及生态条件极佳。“优越的自然本底是这个地块的天然优势,我们希望把它转化为项目的一大特色,让园区成为公园生态的自然延伸,形成绿色生态与高品质科创空间完美融合的未来产业园区。” 温耀春如是说。
‘The natural resources and favorable geographical position are fully utilised to create a place that presents the warmth and openness of Sichuan, attracting talents from near and far; through extension of green ecology and industrial park, creating a high-quality scientific and technological innovation space,’ Aedas Executive Director Yaochun Wen says.
▼紧邻兴隆湖,Abutting the Xinglong Lake © aedas
▼湖景,lake view © aedas
设计充分结合地块的生态本底,巧妙地通过两侧高中间低的建筑布局,形成疏密有致的园区空间,同时将兴隆湖景观引入其中,结合多层次绿化退台,最大限度提升全局视野,营造高品质科创空间。高挑的办公塔楼置于地块北侧,如同山峦门户,远眺湖景;绿地景观蜿蜒贯穿地块南北,通过自然的内生外向性将被规划道路一分为二的地块缝合;而多层办公组团围绕景观错落布局,最大限度避免彼此之间的对视遮挡,多元的业态功能彼此独立,又相互连接,同时营造出多元有序的工作空间与花园式办公微气候,形成兼具创新与务实的“工作-生活”一体化空间环境。
The project covers two plots in the north and south respectively. Inspired by the landscape in Chengdu, the design creates a multi-dimensional valley layout to echo its local natural environment. It arranges high-rise office tower in the north, the multi-storey office blocks around a public central spine, and commercial space the first floor and underground level. The diverse functions operate independently but are interconnected through the central spine to encourage communication.
▼办公塔楼远眺湖景,Office towers overlooking the lake view © aedas
▼错落的布局, Jagged layout © aedas
▼花园式办公,Garden-style environment © aedas
立面抽象提炼成都森林景观特点,通过不同角度的竖向铝板,形成丰富的韵律变化,营造多变的视觉效果,搭配办公塔楼的错落退进,形成林影重重的视觉效果。
The design creates flexible spaces of different scales amongst the office towers and multi-storey office groups to meet the needs of start-ups as well as large-scale enterprises. The towers with different elevations are connected through a shared platform in the middle, ensuring privacy while providing interaction opportunities. The single-family office towers close to the central spine are placed in a scattered fashion to prevent blocking and maximise landscape view. A garden-style environment and a vivid work space is cultivated through the design layout and green public space, imbuing a pleasant atmosphere around a functional, high-quality scientific and technological innovation space.
▼纵向线条立面,Linear façade © aedas
▼层层退进的塔楼形态,Layered tower form © aedas
▼多变的立面,Vibrant façade © aedas
▼错落的体块咬合,staggered volume © aedas
为了营造宜人的办公氛围,设计打造了丰富的公共空间,并搭配了多层次的绿化植被。主入口处以观湖桥将广场空间与建筑无缝连接,增加基地与城市界面的连续性,同时桥体的流线型曲面造型结合极富科技感的镜面金属材质,形成了吸睛的标志性打卡点。此外,设计打造了贯穿南北地块的中轴公共空间,流线型的地景线条搭配绿色植被,形成了轻松舒适的空间氛围。而不同标高的开放式露台,也为园区人群提供了休闲小憩的社交空间。
▼功能分区,function program © aedas
The design focuses on greening and the creation of public spaces. A bridge on the spine is comprised of floating platforms, cultural and exhibition spaces as photo-taking spots. The lakeside sunken plaza with curved metal roofs provides a rich and spacious interactive public area for citizens. The central spine, together with the green roofs and public terraces in offices, form a multi-dimensional green landscape.
▼入口公共广场,Entrance of public © aedas
▼吸睛的入口设计,Eye-catchy entrance design © aedas
▼丰富的绿色点缀 ,Embraced with lush greenery © aedas
▼中轴公共空间,central axis public space © aedas
“我们希望多元的业态可以在立体互联的空间中彼此独立又相互交融,在绿水相映的环境中,为使用者提供宜人闲适的办公氛围,构建公园城市示范区。”温耀春说道。
‘Surrounded by nature elements, the mixed-use elements are designed to function independently in an interconnected space vitalized by greening. We hope to create a comfortable office space by integrating the architecture and the landscape resources. The pleasant office atmosphere is created to render Chengdu Tiantou Intelligent Harbour an exemplar of business parks.’ Yaochun Wen says.
▼项目主入口,Main entrance © aedas
▼总平面图,MLP © aedas
▼南侧广场及商业平面图,South square retail plan © aedas
▼主塔楼标准平面图 ,Main Tower plan © aedas
▼办公标准平面图,Office plan © aedas
▼花园办公标准平面图,Garden office plan © aedas
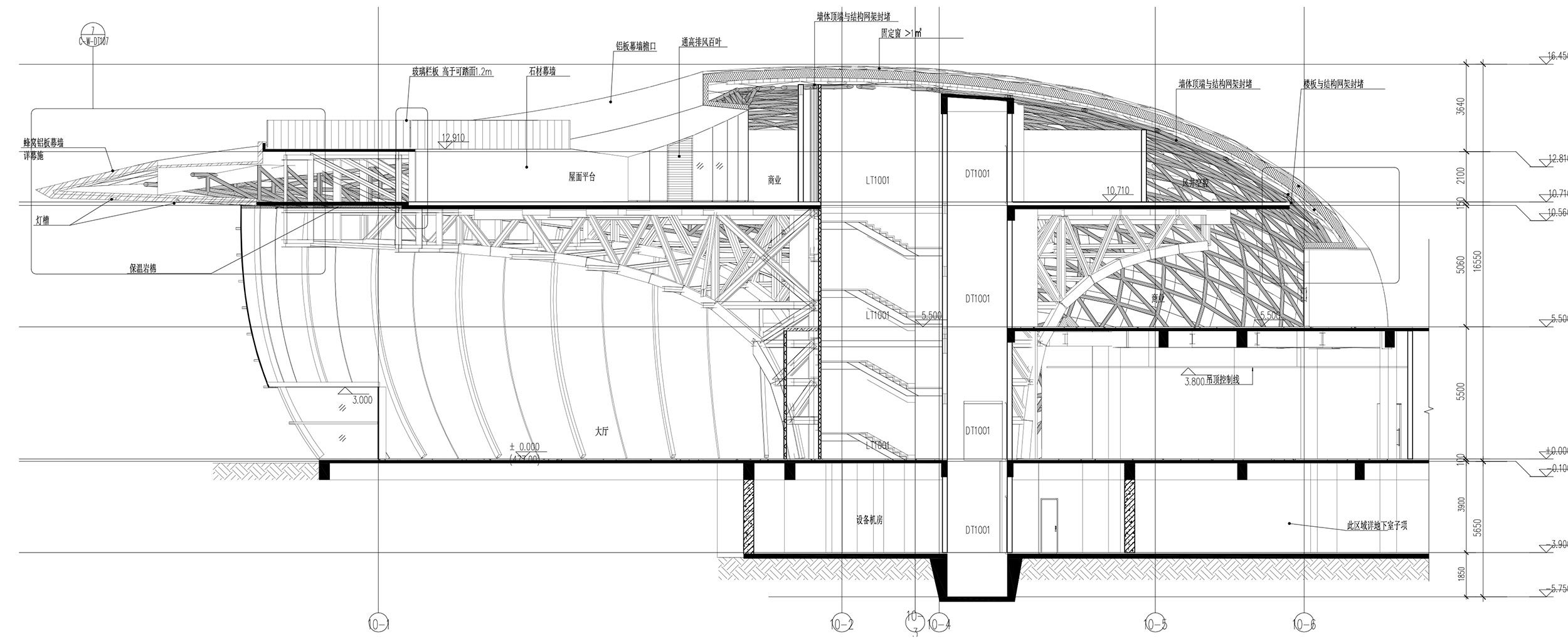
▼剖面图,section © aedas
项目:天府智能港
位置:中国成都
设计建筑师:Aedas、中建西南院联合体
业主:成都天投产业投资有限公司
建筑面积:313,000平方米
竣工年份: 2024年
Aedas主要设计人:温耀春,执行董事(上海办公室)
Project: Chengdu Intelligent Harbour
Location: Chengdu, China
Client: Chengdu Tiantou Industrial Investment Co., Ltd.
Design Architect: Aedas and China Southwest Architectural Design and Research Institute
Gross Floor Area: 313,000 sq m
Completion Year: 2024
Design Director: Yaochun Wen, Executive Director
客服
消息
收藏
下载
最近


























