查看完整案例

收藏

下载
01 概况 Overview
新建风雨操场项目坐落于上海工程技术大学松江校区南部,其东侧与田径场相邻,河道则在基地北侧缓缓流淌。该项目用地面积为 11500 平方米,建筑面积约达 8800 平方米,其中运动场地面积为 6300 平方米。本项目乃是为世界大学校足球比赛所设置的训练场地,同时也兼作在校学生日常体育教学及运动的场所。
The newly-built all-weather sports field project is located in the southern part of the Songjiang Campus of Shanghai University of Engineering Science. Its east side is adjacent to the track and field stadium, and the river flows slowly on the north side of the site. The land area of this project is 11,500 square meters, and the building area is approximately 8,800 square meters, among which the area of the sports field is 6,300 square meters. This project is a training venue set up for the World University Football Championship, and it also serves as a place for daily physical education and sports activities for students on campus.
▼总体鸟瞰,Overall aerial view© 马元
02 建筑帆影 The Sailing Shadows of the Building
建筑作为自然中的人造产物,是环境、空间与感知共同作用的结果。河道为基地打开了视觉之窗,进而启发了依循地势的构思。其外观立意源自帆影碧波、奔流不息以及运动永恒的意象。
As a man-made product in nature, architecture is the result of the combined effects of environment, space and perception. The river opens a visual window for the site, which then inspires the idea of following the terrain. Its exterior design concept originates from the images of sailing shadows on blue waves, the ceaseless flow of the river and the eternal nature of sports.
▼帆影碧波、运动永恒的意象,the images of sailing shadows on blue waves © 马元
规划设计充分尊重校园景观现状,延续建筑与水的对话关系,建筑之“帆”与河道共生一体,一“静”一“动”,共同构成一幅完整的画卷。建筑形态恰似帆影在粼粼波光中徐徐前行,通过流畅、舒展的曲线形态,展现出青年学生蓬勃生机的运动之美与活力之美。
The planning and design fully respects the current situation of the campus landscape and continues the dialogical relationship between the building and the water. The “sail” of the building and the river coexist as one, with one being “static” and the other being “dynamic”, jointly forming a complete picture. The architectural form is just like the sailing shadows moving slowly in the glistening waves. Through the smooth and stretching curved forms, it shows the beauty of sports and vitality of young students.
▼夜景鸟瞰,aerial view at night© 马元
03 通透之美 The Beauty of Transparency 屋面随形体起伏,建筑高度呈弹性变化,与运动场地有机融合。最终呈现的弧形屋顶营造出丰富绚丽的第五立面效果。半围合的结构形式为风雨操场赋予了更为人性化的开阔尺度。通透灵动的形态不仅有利于通风和采光,还使外立面形体获得更多自由,并降低了建设成本。
The roof undulates with the shape of the building, and the height of the building changes elastically, organically integrating with the sports field. The final curved roof creates a rich and gorgeous fifth-facade effect. The semi-enclosed structural form endows the all-weather sports field with a more humanized and open scale. The transparent and flexible form is not only conducive to ventilation and lighting but also gives more freedom to the exterior form and reduces the construction cost.
▼屋面随形体起伏,The roof undulates with the shape of the building© 马元
▼内部,interior© 马元
建筑周边采用绿篱矮墙,结合周边景观提供外部开放空间。东侧矮墙开口,便于管理进出;西侧、北侧绿篱矮墙放坡至河岸,与周围环境融为一体,将校园活动与基地自然元素以及体育独特的运动特征有机结合。开放式的坡岸成为运动观赏点,为学校师生营造了良好的活动和休憩空间。
Low hedges and walls are used around the building, providing external open spaces in combination with the surrounding landscape. The opening in the low wall on the east side facilitates access management. The low hedges and walls on the west and north sides slope down to the river bank, integrating with the surrounding environment, and organically combining campus activities with the natural elements of the site and the unique sports characteristics of sports. The open river bank becomes a viewing point for sports, creating a good space for activities and relaxation for teachers and students of the school.
▼北侧矮墙景观,landscape and low walls on the north © 马元
▼矮墙入口,low walls entrance© 马元
▼侧入口,side entrance© 马元
04结构韵力
The Rhythm of the Structure
弧形屋面由单层 ETFE 张拉膜包裹金属骨架形成,骨架由简洁的三角元素拼合而成。从内部看,富有节奏和律动的变化,产生了韵律之美。在膜材的选择过程中,特意选取蓝、白两种颜色以及不同透明度的膜材,按照金属钢骨架的结构走向进行间隔搭配布置,呈现出跳跃般的变化。弧形的表面反射出周围环境,模糊了屋顶与天空的界线。建筑两个长边采用了波浪状的飘带钢柱展现出柔中有刚的力量感,实现了结构成就建筑之美的理念。
The curved roof is formed by wrapping a metal framework with a single-layer ETFE tensioned membrane. The framework is assembled from simple triangular elements. Seen from the inside, there are rhythmic and dynamic changes, creating a beauty of rhythm. During the selection of membrane materials, blue and white membrane materials with different transparencies were deliberately chosen and arranged at intervals according to the structural direction of the metal steel framework, presenting a skipping-like change. The curved surface reflects the surrounding environment, blurring the boundary between the roof and the sky. On the two long sides of the building, wavy ribbon-shaped steel columns are used to show a sense of strength with softness within, realizing the concept that the structure contributes to the beauty of the building.
▼屋顶细部,roof details© 马元
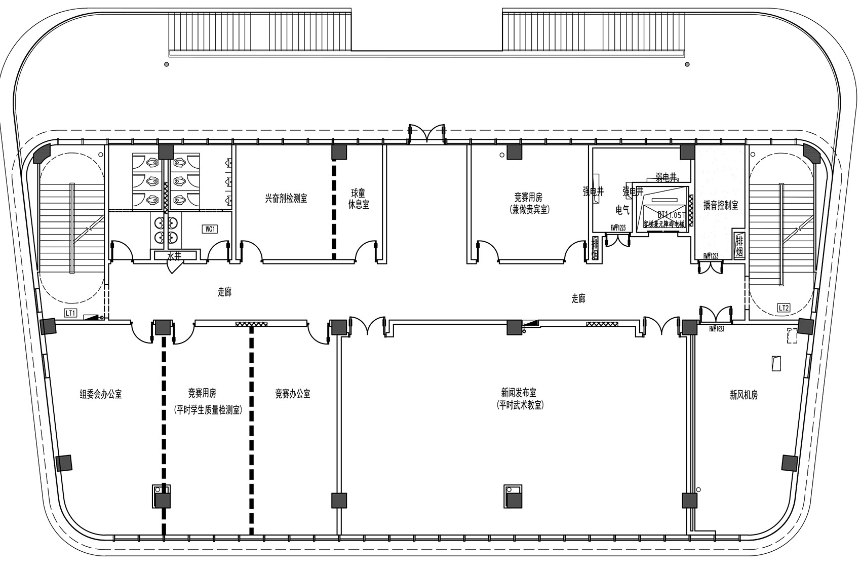
▼一层平面图,1F plan© TJAD
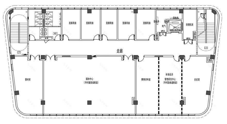
▼二层平面图,2F plan
© TJAD
▼三层平面图,3F plan© TJAD
▼屋顶平面图,RF plan© TJAD
▼剖面图,section© TJAD
▼景观草坡,landscaped scope© TJAD
项目名称:上海工程技术大学风雨操场
设计公司:同济大学建筑设计研究院(集团)有限公司
项目设计 & 完成年份:2021&2023
项目总负责人:王文胜、王辉
主创及设计团队
建筑:王辉、张明科;
结构:张月强、沙全治、梁汉齐;
机电:韩欣洋、付明民、董静建
景观:王辉、张明科
项目地址:上海工程技术大学松江校区
建筑面积:5090 平方米
摄影版权:马元
客户:上海工程技术大学
客服
消息
收藏
下载
最近


































