查看完整案例

收藏

下载

翻译
Architects:RLL Estudio Arquitectura
Area:143m²
Year:2024
Photographs:Nico Saieh
Lead Architect:Raúl Lucero
Collaborators:Pablo Caroca, Matías Labraña
City:Cahuil
Country:Chile
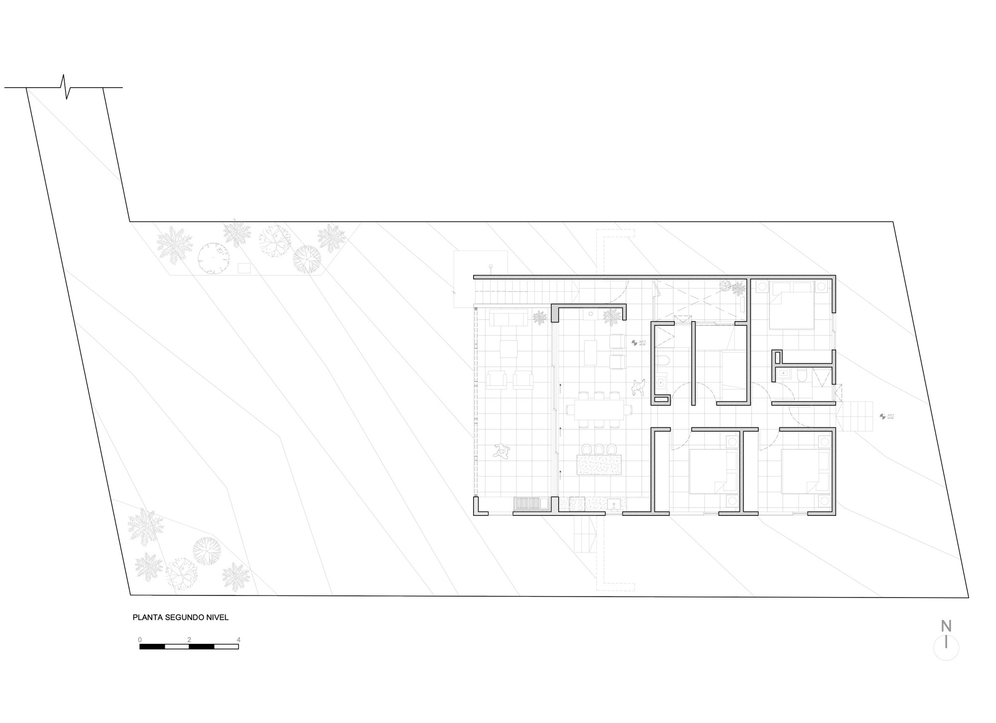
Text description provided by the architects. Cahuil House is a project that combines design and functionality in a privileged natural environment. With a total area of 150 square meters, the house is built on concrete pillars and beams that existed at the time of the purchase of the land, which conditioned both the dimensions and the distribution of the space. This solid base made it possible to take advantage of the extraordinary views of the surrounding landscape, especially towards the Cahuil lagoon and the Pacific Ocean, key elements in the concept of the project.
One of the most important aspects of the house is the use of panels (SIP), which are covered in brushed pine wood. This material not only provides warmth and a natural texture, but also establishes a visual dialogue with the surroundings, integrating the structure into the coastal landscape. The choice of wood seeks to reinforce the link between nature and architecture, generating a welcoming atmosphere within the home. The design of the house was conceived to maximize the relationship with the natural environment, placing special emphasis on capturing the views of the sea and the lagoon, and on taking advantage of the climatic conditions, such as the sea breeze. The wind becomes a tangible element within the living spaces, bringing freshness and dynamism to the everyday experience. An outstanding detail of the project is its habitable roof, which includes a simple bench of railroad ties. This decision allows the occupants not only to enjoy the views from a privileged height, but also to transform the roof into a functional and recreational area. The viewing platform reinforces the connection with the environment, offering an additional outdoor space where the landscape can be observed in 360 degrees. This habitable roof expands the functionality of the house, providing a place for contemplation and disconnection, while making the most of the beachfront location.
In short, Casa Cahuil is a project that balances aesthetics and functionality, achieving harmonious integration with the natural environment. The use of local materials such as wood, adaptation to pre-existing conditions, and the creation of a habitable roof turn this home into a refuge that maximizes the sensorial and visual experience of the place.
Project gallery
客服
消息
收藏
下载
最近


























