查看完整案例

收藏

下载
葉外店铺搬迁
Relocation of Tea Well
/
葉外原店位于深圳海岸城 2 层的门户位置。2024 年初,在商场与商场、商场与国际零售大牌的博弈之下,葉外不得不搬离了原来的铺位,需要在短时间内迁移到一层的新场地。葉外希望我们在控制时间成本和建造成本的前提下,协助其快速完成新店的设计与搬迁工作。
The original Tea Well store was located at the prime entrance of the second floor in Shenzhen’s Coastal City shopping mall. At the beginning of 2024, due to strategic negotiations between the mall and international retail giants, Tea Well was forced to relocate from its original site and had to quickly move to a new space on the first floor. Tea Well hoped we could assist in completing the design and relocation of the new store swiftly, while keeping time and construction costs under control.
我们通过详细勘查一层新铺位的现场情况,并比较了原店的空间设计与新铺位的空间条件,最终确定了葉外搬迁至新址的整体设计逻辑和策略。
We conducted a thorough survey of the new first-floor site and compared the spatial design of the original store with the conditions of the new location. Based on this analysis, we finalized the overall design logic and strategy for Tea Well’s relocation to the new site.
▲新·葉外海岸城概览
保留新铺位的结构大框架,有效利用原有格局
Retained structural framework, utilized existing layout. 天花、地面和墙体均保持原有结构,仅对局部天花进行拆改和修复,对墙体进行重新粉刷。空调系统仅调整了百叶和出风口的位置,原有的吧台也得以保留(新铺位此前是一家咖啡店),水电位置不作变动,仅对吧台的外观表面和部分小型设备进行了更新。通过这种方案,我们在消防、空调以及强弱电系统方面实现了最大化的成本节省。
The ceiling, flooring, and walls were kept in their original state, with only minor modifications and repairs made to certain ceiling sections and a fresh coat of paint applied to the walls. The air conditioning system was minimally adjusted by relocating the louver and air outlet positions. The original bar counter, left behind by the previous tenant (a coffee shop), was retained, with updates made only to its exterior finish and some small equipment. The water and electrical systems remained unchanged. This approach allowed us to maximize cost savings in fire safety, air conditioning, and electrical systems.
▲新旧吧台对比
▲新旧格局对比
“Insight – 观”系列的延续
Insight – Guan” Series’ Continuation
/
与西方审美偏重纵向视觉不同,东方审美在赏玩、游览和观景等情境下,更注重视线在横向线条上的延展。因此,在新店设计中,我们简化了新铺位的原有天花,形成了整个空间的留白,同时沿用了葉外原店的老木、风化木等天然材料,并继续使用原店的超长尺寸长桌、长灯等元素,补充了场地中缺失的横向线条,强化视觉上横向长轴的延展感。延续原店对东方美学的表达,将空间布局与原有材料运用融入到新的场所之中,呈现出独特的东方意境。
Unlike Western aesthetics, which often emphasize vertical visual elements, Eastern aesthetics focus more on the horizontal extension of the visual field in contexts such as appreciation, sightseeing, and viewing landscapes. In the new store design, we simplified the original ceiling structure to create spatial blankness, while incorporating natural materials like aged wood and weathered wood from the original Tea Well store. We also retained signature elements such as the extra-long table and elongated lighting fixtures to introduce horizontal lines that were missing from the site, enhancing the visual sense of horizontal extension. By continuing the original store’s expression of Eastern aesthetics, we seamlessly integrated the spatial layout and material usage into the new location, creating a unique atmosphere that embodies an Oriental artistic conception.
▲原葉外海岸城店
▲新葉外海岸城店
材料设备与家具的再利用
Reuse of Materials, Equipment and Furnitures
在原葉外海岸城店的设计中,我们采用了模块化家具,这使得绝大部分家具、灯具以及天然老木材料都能够在新店中继续使用。所有可移动的模块化桌椅和外摆区家具均得以复用,卡座保留了原有基底,仅对座椅的软垫部分进行了重新制作。
In the design of the original Tea Well Coastal City store, we utilized modular furniture, allowing most of the furniture, lighting fixtures, and natural aged wood materials to be reused in the new store. All movable modular tables, chairs, and outdoor seating area furniture were repurposed. The booth seating retained its original base, with only the soft cushions being remade.
▲ 主灯:长时(原店)
▲ 主灯:长时(新店)
▲ 原店家具新店复用
▲ 原店卡座
▲ 新店卡座
零售陈列系统强化
Enhance retail display system
/
在原店布局中,仅在次入口预留了一个小区域用于零售产品的陈列,因此较难吸引客人驻足购买。而这次铺位搬迁为我们提供了升级零售陈列系统的机会。我们为葉外设计了符合其东方美学语言的零售展示柜,将其置于新店的主入口处,从而提升了零售产品的可见性和可接近性。新店运营后的零售数据上升也证明了这一陈列系统优化的有效性。
In the original store layout, only a small area near the secondary entrance was reserved for retail product displays, making it difficult to attract customers to stop and make a purchase. However, the relocation of the store provided us with the opportunity to upgrade the retail display system. We designed retail display cabinets for Tea Well that align with its Eastern aesthetic language and placed them at the main entrance of the new store. This increased the visibility and accessibility of the retail products. The improvement in retail data following the store’s reopening also proves the effectiveness of this display system optimization.
▲新旧陈列对比
▲横向展示柜
▲竖向展示柜
低成本快速搬迁
Low-cost, Fast relocation
/
40 天的时间,我们完成了葉外从前期设计到后期施工落地的全部搬迁工作,整体预算和时间成本均得到了有效控制,同时确保了最终效果的呈现,使葉外在新的场所能够继续展现活力。
In just 40 days, we completed the entire relocation process for Tea Well, from initial design to final construction. Both the overall budget and time costs were effectively controlled, while ensuring the final results were achieved. This allowed Tea Well to continue showcasing its vitality in the new location.
双赢
Win-Win
/
葉外搬迁项目的成功,为我们探索出了一种设计师与甲方双赢的策略:以原店设计方案作为基础,大幅减少硬装的施工成本,更多是在软装层面的再设计,既帮助甲方节省了时间,也在总体预算内做了大幅的缩减(葉外新店整体预算约为原店的三分之一),同时设计师也收到了期望的费用,最终实现了整体的双赢。葉外项目为我们未来的设计实践和项目管理提供了宝贵的经验,也为我们在经济增长放缓、消费主义式微的当下,找到了一些新的方向。
The success of the Tea Well relocation project has led us to a strategy that creates a win-win situation for both designers and clients: using the original store design as a foundation, we significantly reduced the cost of hard construction while focusing more on redesigning the soft furnishings. This approach not only helped the client save time but also allowed for a substantial reduction in the overall budget (the new Tea Well store’s total budget was about one-third of the original store’s). At the same time, the designers received the expected fees, achieving an overall win-win result. The Tea Well project has offered valuable experience for our future design practices and project management, and has also helped us find new directions in the context of slowing economic growth and the decline of consumerism.
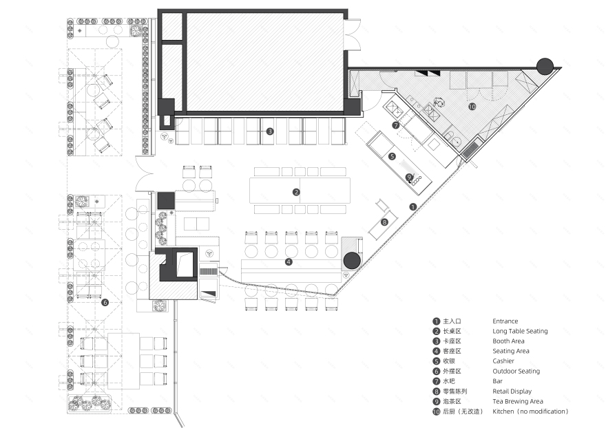
▲平面图
项目信息——
项目名称:新葉外海岸城店
项目类型:餐饮,零售
客户:葉外
设计方: Ruhaus Studio
项目设计:2024
完成年份:2024
设计团队:朱丹丹,王艺儒,李安
项目地址:深圳市南山区海岸城一楼
建筑面积:126㎡
摄影版权:夏同
客服
消息
收藏
下载
最近

















