查看完整案例

收藏

下载
相融的空间总是顺其自然,减少“模块”的局限,大脑在处理相关的事情时就更得心应手。场域不是关于如何去建造新的建筑,有时是将事物回归本质,愈简约,愈能看出事物的本相,美使脆弱变得坚不可摧,美不是吸引而是分神,可以将注意力从脆弱上转移开,所以,空间的体量上便是如此。
项目信息
Information
项目坐标
| Location:河南.郑州
项目面积
| Square Meters:171㎡
设计主案
| Design Director:刘明帅
协作团队
| Team:申恒坤 / 毕宾华 / 牛宇
主要用材
| Material:瓷砖、木饰面、乳胶漆、不锈钢、木地板、石材
设计时间
| Time:2024.9
BEAUTY OF BALANCE
建筑的平衡 01
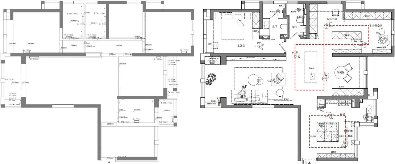
本案位于河南省郑州市,是一套正常四居室的居住空间,带上入户花园,称之为五居室。原始空间格局结构属于常规户型,非常好的一点则是户外的环境和视野。与委托人沟通后,我们把整个空间格局做了分析,最终以一居室的概念去满足当下,以可延展至三居室的多功能去确保后续生活轻微地改变。
空间思路:
“如果天空、星辰、大海、山峦以及所有物体,如果上帝愿意的话,都缩小一半,对我们来说任何东西都不会显得变小了,所以方案当中我们探讨了本体性结构和再现性结构的问题,在盒子里做了我们内向空间的建造和对空间稳定性的比例裁切,如此,空间亦是空间,但是我们多了重新解读得思考。
三个体块的方式出现在入户,做了多功能的盒子,所以所有隐藏。其次在于餐区和多功能室,客餐厅横向的视觉过于狭长,我们解决了横向以后,以整体体块的方式衔接过渡的双层属性空见去延伸竖向关系,拓宽视觉。其三在于业主必须需要的电视墙体,为了保证左右视觉平衡及空间的趣味性,在此区域进行了斜面卡口的方式让电视区域独立且一体,以此完成三个植入。
O N T O L O G I C A L
本体性建造 02
整个房屋需要平衡公区与私密区之间的关系,使居住者能够完全地于此放松身心,平层虽然不能实现上下叠加达到的垂直关系,但是建立的平面松弛可以有效地深剖平层的逻辑。
抽象、材料、精神、结构、对称、不对称、繁琐的、简化的、在地性、场域化、、、建筑最后的演变好像是人的自我状态,属于精神的一种叛逆,一种痛苦后造就的美丽,凄美的还是忘我,我只需要它充满智慧,充满特质。
功能概况
有一天你会发现,在当下的故事里,不再直接因为美丽而变相觉得舒服,人和物总是在逍遥的背后洞察,去感知我们曾经扑捉不到的那些未知,如同光明,总是细致入微的和你在某一刻相遇,在山顶、在田野、在房子里,而房子里,有了你,如同光。
客服
消息
收藏
下载
最近
































