查看完整案例

收藏

下载

翻译
Architects:EIXO Z arquitetos
Area:70m²
Year:2023
Photographs:Miti Sameshima
Authors:Guilherme Prado Zorzella, Daniela Zavagli, Diogo Lemos
City:São Paulo
Country:Brazil
Text description provided by the architects. Located in a building designed by Artacho Jurado in the Vila Buarque neighborhood, the Praça Apartment was designed for a young architect who chose to move to the center of São Paulo.
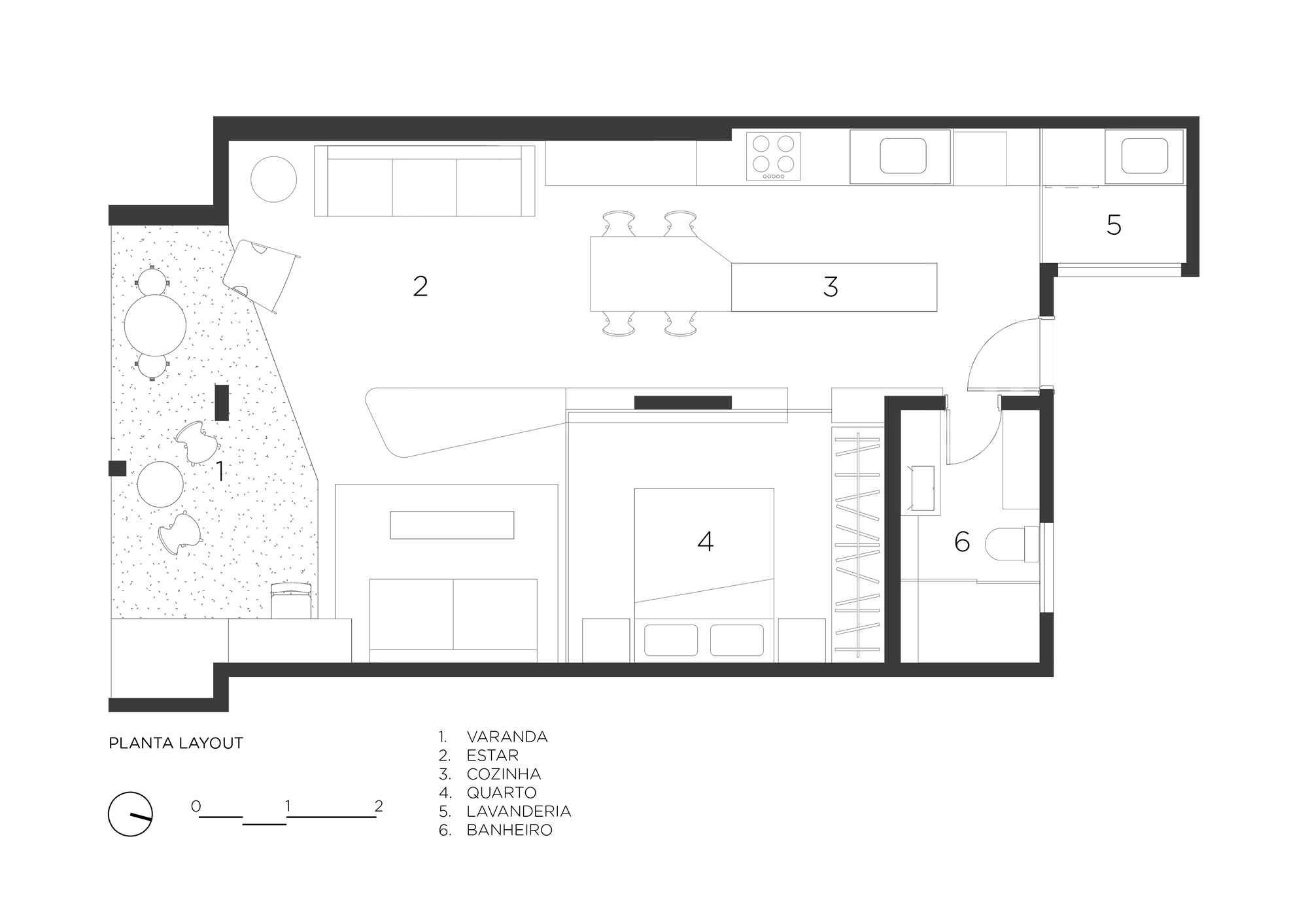
The 70m² apartment underwent a comprehensive renovation aimed at maximizing the integration between spaces. Except for the walls that enclose the bathroom, all other partitions were demolished, creating a large open and multifunctional environment. The new layout of the apartment introduced flexibility and the overlapping of uses and functions (cooking, working, sleeping, and socializing), in line with the laid-back lifestyle of the resident, who is also a co-author of the project. He envisioned using the space both for parties and social events, as well as for moments of intimacy and reflection.
The project prioritized the use of natural materials, many of which were already present in the building itself. Columns, beams, and slabs were stripped back to reveal the gray concrete, while the walls now expose their solid brickwork.
A standout feature is the large concrete bench, specially designed for the apartment, which references the benches found in public squares. The Praça Apartment bench also serves as an architectural element, organizing the space without segregating it. It acts like a visual backbone, a guiding line that begins at the entrance door and extends to the far end of the apartment, near the large windows with views of the city.
The large floor-to-ceiling openings, which overlook Praça Roosevelt, the Copan building, and the Edifício Itália, were among the most appreciated features of the property. To take advantage of natural light and ventilation, the project focused on enhancing the areas near the windows, through the use of rolled river stones on the floor, the installation of hanging plant pots beneath the slab, the preference for a bistro table with stools, and a hammock for relaxing and admiring the horizon, creating a sense of a balcony, even though it is indoors.
In the same vein, the choice of a translucent and lightweight material seemed the most suitable solution for enclosing the bedroom, ensuring moments of privacy without compromising the sense of openness and integration achieved by the demolition of the walls. Made of steel and polycarbonate, this crystalline cube stands out from its surroundings, almost as if it were nestled between the walls, columns, and beams. In contrast, the custom cabinetry, made of marine plywood, is opaque and colorful, fulfilling the storage and daily organization needs.
Beyond the materiality of the architecture, the very personal selection of furniture, objects, and artwork incorporated into the space by the resident was key in achieving the desired sense of warmth and comfort. The varied mix of pieces—some new, others inherited—along with the dozens of books and knick-knacks scattered on the steel and wood shelves, create a unique atmosphere where the layering of textures and forms blends harmoniously with the concrete and brick backdrop, making them inseparable.
Project gallery
Project location
Address:São Paulo, Brazil
客服
消息
收藏
下载
最近


















