查看完整案例

收藏

下载

翻译
Architects:Estudio V2 Arquitectos
Area:3000m²
Year:2022
Manufacturers:Aukot,Genebre,Grupo Anacleto,Mobilis,Mosaicos Canalini,San Rafael
Project And Construction Management:Eugenia Arive
City:City Bell
Country:Argentina
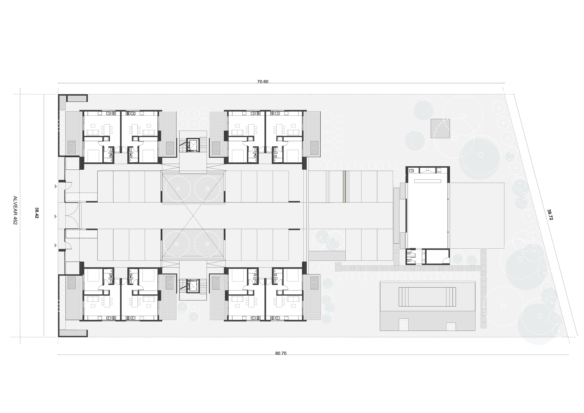
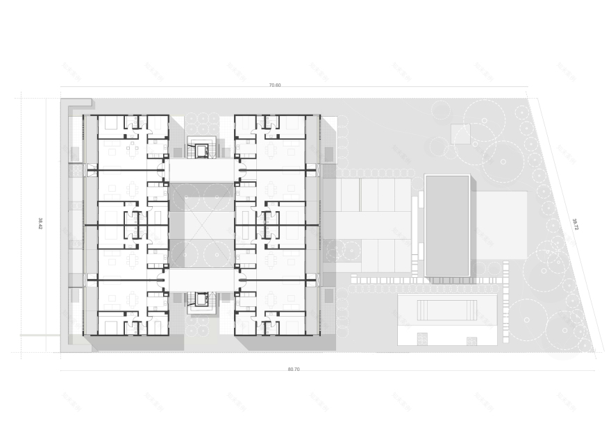
Text description provided by the architects. The project is located in City Bell, on a 3,000 m² plot of land, the result of the union of two plots. With 40 meters of frontage and 75 meters of depth, the lot is surrounded by abundant vegetation, in a residential area of City Bell. The complex is organized in two volumes arranged around a central green patio, which acts as an articulator of the common areas and access to the units.
In addition, at the heart of the project are the common areas, which include a SUM, a reflecting pool and rest areas, designed for recreation and social interaction.
All units stand out for their double cross ventilation, which guarantees thermal comfort and luminosity. Each one has a private terrace-balcony, equipped with a vertical solar control system and green planters, which improve privacy and visual integration with the environment.
Project gallery
客服
消息
收藏
下载
最近






































