查看完整案例

收藏

下载
这栋位于布宜诺斯艾利斯 Recoleta 街区的 20 世纪 30 年代的公寓建筑外观非常美丽,但由于年久失修,加之几次糟糕的翻修几乎破坏性地抹灭了部分空间,许多原有的美需要设计团队小心翼翼地剥开层层腐朽的外衣,才能将这栋建筑物最好的一面展现出来。因此,为了展示公寓华丽的原始特色,设计团队进行了大量的木工工作,以恢复造型、地板、原始门窗和铜五金件的风采。同时,设计团队还对浴室进行了现代化改造,其选用的材料融合了现代风格和传统工艺(包括手工砌筑的水泥瓷砖和大理石台面等)。
The architecture of this original 1930s apartment in the Recoleta neighborhood of Buenos Aires was beautiful, but in a state of total disrepair. A few terrible renovations had all but obliterated some of the spaces and much of what was original and beautiful required care to carefully peel back layers of decay and bring the best features to light. To showcase the gorgeous original features of the apartment, a large carpentry effort was undertaken to restore the moldings, the floors, and the original doors, windows, and bronze hardware. Bathrooms were modernized and materials were chosen that merged modern design flair with classic and traditional methods (which included hand-poured, cement tiles, and marble countertops).
▼室内空间概览,Interior Space Overview ©Albano Garcia
设计团队对楼面进行了一些大胆的改动,包括将三个独立的厨房空间合并为一个大的主厨厨房,厨房里摆放了一张实木餐桌,以供娱乐和烹饪之用。另外,设计团队还牺牲了一个卧室空间,以创造一个宽敞的步入式衣帽间和豪华的主卧浴室。
A few bold shifts of the floorpan were undertaken, including the merging of three separate kitchen spaces into one, large chef’s kitchen with a solid wood kitchen table for entertaining and cooking, and sacrificing one bedroom to create a generous walk-in closet and luxe master en suite bath.
▼大胆的改动,A few bold shifts ©Albano Garcia
暖白色是整个公寓的统一色调,旨在使历史细节更加明亮生动。色彩上,室内细节部分采用黑色、灰色、暖铜色金属、深油蓝及油黑色。材料上,设计团队使用了传统的瓷砖、壁纸和织物等。通过营造具有视觉冲击力的图案和纹理,展现业主的精彩旅行经历和这个五口之家的旺盛活力。
Warm white paint is a unifying gesture throughout the apartment, to brighten and liven the historical details, with black and grey details, warm bronze metal and a few gestures in a deep “petroleo” blue/black. Bold patterns and textures are expressed using traditional calcareo tiles, wallpapers and fabrics, all a reflection of the clients’ travels as well as the high energy of an active family of five.
▼暖白色调的室内空间,Warm white interior space ©Albano Garcia
在建筑相对经典且正式的大背景下,如何在室内设计上将开放式空间、厨房、非正式餐厅等“现代化”的场景纳入其中,是该项目的最大挑战。设计团队将正式用餐空间移至更中央且更正式的空间,这里毗邻住宅入口处,并与家庭区域与厨房空间相邻。设计通过非传统方式打开空间,实现了兼顾家庭烹饪和朋友娱乐的效果。将三个小厨房合并为一个集烹饪、用餐和娱乐于一体的大空间,还具有从公寓两侧引入照明的重要作用。新的大厨房空间内放置了一张 3.5 米长的定制餐桌,旨在成为厨房空间和家庭空间之间的过渡点。这张木材和铜制成的桌子反映了一种现代生活的动态,而餐桌的功能和定位处于烹饪和休闲之间,因此有效地模糊了正式和非正式间的界限。
Trying to include the very “modern” intervention of an open family/kitchen/informal dining space within this classic, formal context was the greatest challenge of the project. Moving the formal dining space to the central formal room, adjacent to the entry allowed a family room adjacent to a large kitchen. Opening the wall between these two spaces was a non-traditional gesture that acknowledges the realities of families that cook and entertain together with friends. Combining three small kitchen spaces into one large cooking, dining and entertaining space also had the strategic effect of bringing light in from both sides of the apartment. A custom-designed 3.5m wood and bronze table in the kitchen is the transition point between the hard-working kitchen and the family room. The table reflects the dynamics of modern living, perched between spaces dedicated to cooking and lounging and therefore blurring the formerly hard line between the formal and informal.
▼定制餐桌,A custom-designed table ©Albano Garcia
▼开放的现代空间,Open and morden space ©Albano Garcia
▼厨房空间,Kitchen ©Albano Garcia
家庭活动室中的一个被保留的壁炉仍可正常使用。这个经典的壁炉以其装饰纹样、白色深纹大理石材质和位于公寓面向街道的中轴位置,形成了一种形式上的对称,并因此奠定了该项目室内设计的基调。壁炉也凭借其重要位置和经典风格,成为了室内布置现代装饰品的重要灵感源泉,如来自 BKF 的皮椅、皮地毯、定制的沙发及椅子,以及来自西班牙和美国的现代灯具。
An original, functioning fireplace in the family room, with its ornamentation and deeply-veined arabescato marble, centered on the axis of the apartment’s street-facing rooms establishes a formal symmetry that remained the backbone of the design. Its classic position and rendering became the departure point and backdrop against which were layered modern accents, such as the leather BKF-inspired chairs, leather rugs, and bespoke sofas and chairs, as well as modern light fixtures from Spain and the United States.
▼壁炉,The fireplace ©Albano Garcia
▼家庭活动室,The family room ©Albano Garcia
设计团队对位于住宅中心的餐厅空间进行了修复。在这个相对正式的空间里,简单的白色为主色调,空间重点是定制的“shou-sugi-ban”餐桌(指一种木材处理工艺,灼烧后用砂纸打磨至表面光滑,并用透明的哑光封固剂封固,以形成深沉自然的表面效果)和铜制细节。
The formal dining room at the heart of the home was restored and furniture in simple shades of white, with the focus being on a custom “shou-sugi-ban” (a technique of burning the wood, then sanding lightly until smooth and sealing with a clear, matte sealer for a deep, natural black) dining table with bronze details.
▼正式餐厅空间,The formal dining room ©Albano Garcia
正式起居室的设计包括一盏经典的 Gino Sarfatti 吊灯现代复制品、一张在北京购买的中式边桌和一张午夜蓝棉绒沙发。为了突出吊灯并舒缓氛围,这里的天花板的色调为深午夜蓝。
The formal living room includes a modern reproduction of a Gino Sarfatti chandelier, a Chinese side table purchased in Beijing and a sofa finished in midnight blue cotton velvet. To highlight the chandelier and soften the mood, the ceiling was painted a matching shade of deep midnight-blue.
▼起居室空间,The formal living room ©Albano Garcia
书房里摆放着一张实木桌子、艺术品、从北京购买的明式座椅复制品,还有一盏现代感十足的烟熏玻璃 Modo Globe Light 吊灯。
The home’s study is furnished with a solid-wood table, artwork and reproductions of Ming side chairs, purchased in Beijing, China, with a modern, smoked-glass Modo Globe Light chandelier.
▼书房,The home’s study ©Albano Garcia
▼书房细部,Study details ©Albano Garcia
深油蓝为主色调的走廊很短,但通过一盏闪闪发光的小鸟造型的灯具,标志着公寓公共和私人空间的分界线。
A short but richly-painted “petroleo” hallway with the glowing bird-lights marks that boundary between public and private in the apartment.
▼小鸟造型的灯具,The bird-light ©Albano Garcia
▼不同的走廊空间,Different hallway space©Albano Garcia
原本狭小的化妆室被装饰得富丽堂皇,设计团队铺设了人字形的哑光黑色水泥瓷砖,以及具有极强视觉冲击力的黑白孔雀石纹理的墙纸。
A tiny original powder room is richly adorned with an intricately-laid herringbone matte-black cement tile and a powerful malachite-patterned black and white wallpaper from Cole and Son.
▼黑白孔雀石纹理的墙纸,Malachite-patterned black and white wallpaper ©Albano Garcia
原本的管家茶水间沿着大楼中央楼梯的弧形后墙延伸,连接着服务空间和卧室的侧翼。这里被改造成业主三个孩子的学习空间。暖色调的实木桌面和上方经过修复的橱柜为书籍和艺术用品提供了储藏空间。
A butler’s pantry which stretches along the curved rear wall of the building’s central stairway, connecting the service spaces to the private bedroom wing was converted to a study space for the three children of the clients. A warm, solid-wood desktop with original, restored cabinets above provide storage space for books and art supplies.
▼丰富的储藏空间,Storage space ©Albano Garcia
▼三个孩子的学习空间,A study space for the three children ©Albano Garcia
公寓的两间卧室以及两间卧室之间的共享浴室都得到了彻底的修复。经过修复的古董爪足浴缸后的墙壁上是手工制作的米白色人字形图案水泥砖,地板上则铺着黑灰白三色图案砖,旨在形成一种鲜明的对比,将传统与现代融为一体。
Two of the apartment’s bedrooms were completely restored, as well as the shared bath between. An antique, restored claw-foot tub and hand-made cement tiles in an off-white herringbone pattern line the walls, with a black, grey and white pattern on the floor for contrast, blending traditional methods with modern sensibilities in the design.
▼卧室,Apartment’s bedrooms ©Albano Garcia
▼共享浴室,Shared bath between ©Albano Garcia
原有的其余两间卧室经过改造,成为一间宽敞的主卧套房,并配有双人洗漱台、步入式淋浴间、私人卫生间、坐浴隔间和一间宽敞的步入式更衣室。原有的橱柜都经过了精心修复,并采用了定制的嵌入式设计,以实现高效储物。主卧内则摆放着来自中国的丝网印刷艺术品和 Gubi 黄铜吊灯。
The remaining two original bedrooms were modified to become an expansive master suite, with large double-vanity, walk-in shower, private toilet and bidet compartment and a large, walk-in dressing room. Existing cabinetry was carefully restored with custom inserts for efficient storage. Original screen-printed artwork from China and brass Gubi pendant lights flank the master bed.
▼主卧空间,Master suite ©Albano Garcia
▼套房盥洗室,Suite toilet ©Albano Garcia
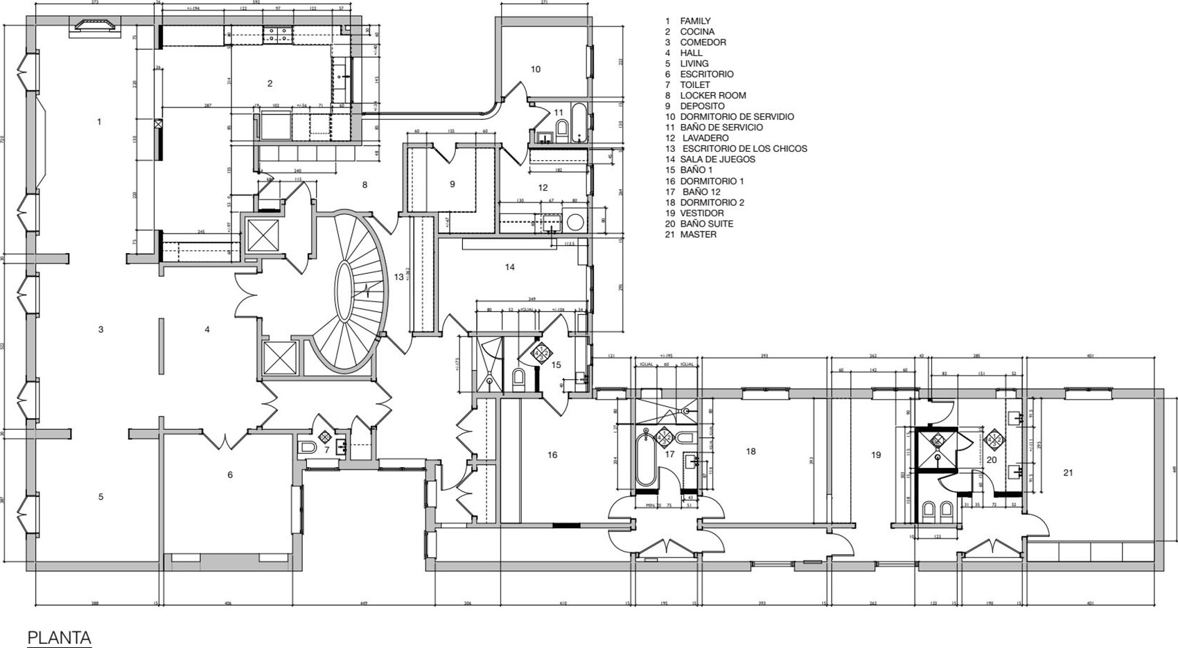
▼平面,PLANTA ©JILL LEWIS ARCHITECTURE
▼拆除平面,PLANTA DE DEMOLICIÓN ©JILL LEWIS ARCHITECTURE
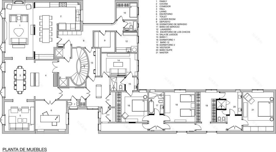
▼家具平面,PLANTA DE MUEBLES ©JILL LEWIS ARCHITECTURE
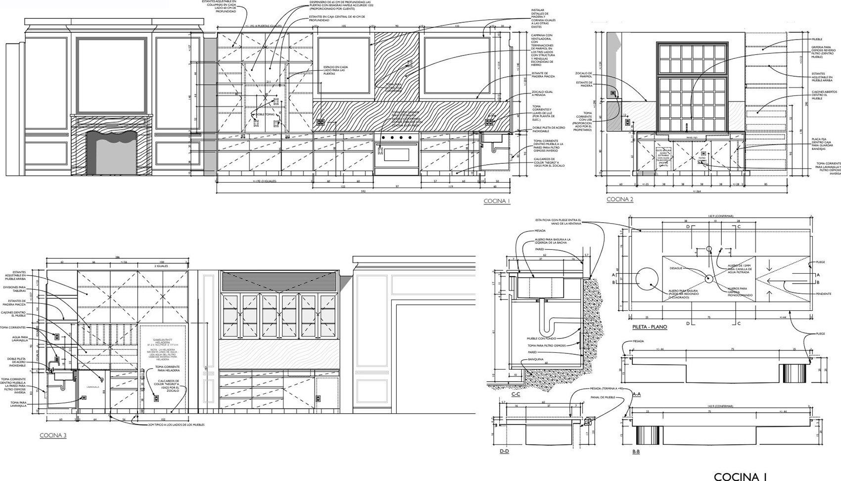
▼厨房 1 图纸,COCINA 1 ©JILL LEWIS ARCHITECTURE
▼厨房 2 图纸,COCINA 2 ©JILL LEWIS ARCHITECTURE
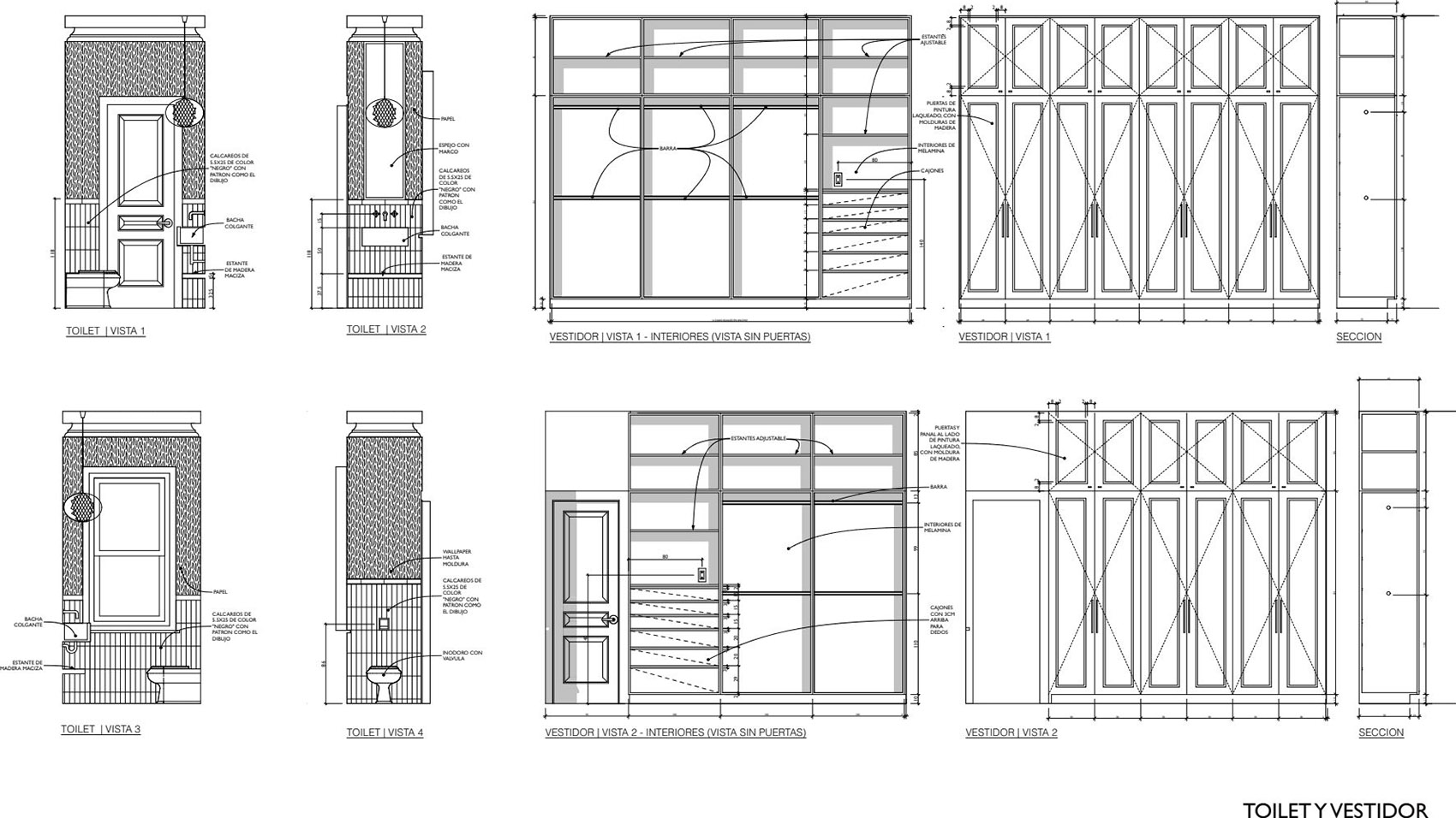
▼厕所和更衣室图纸,TOILET Y VESTIDOR ©JILL LEWIS ARCHITECTURE
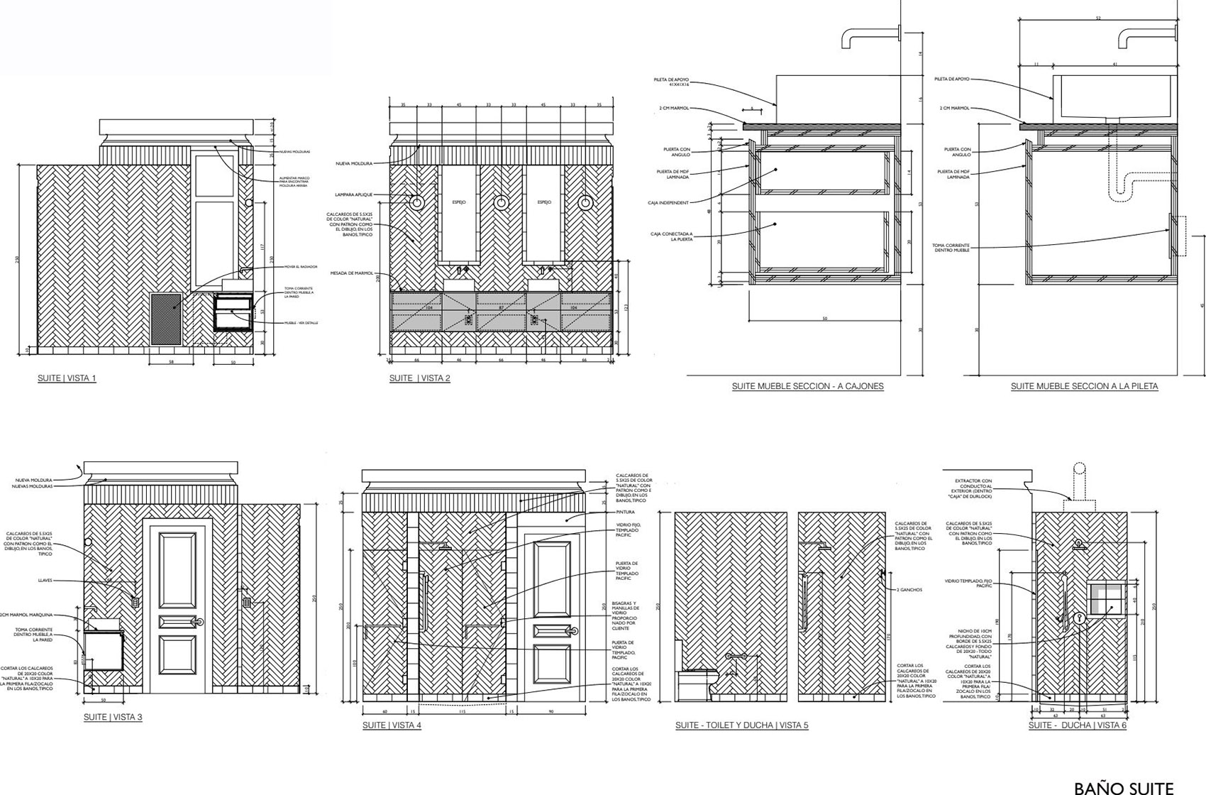
▼套房浴室图纸,BAÑO SUITE ©JILL LEWIS ARCHITECTURE
▼浴室 1 图纸,BAÑO 1 ©JILL LEWIS ARCHITECTURE
▼浴室 2 图纸,BAÑO 2 ©JILL LEWIS ARCHITECTURE
Description
Superficie: 390 m2
Ubicacón: Recoleta | Buenos Aires | Argentina
客服
消息
收藏
下载
最近




































