查看完整案例

收藏

下载

翻译
Architects:BRICKLAB
Area:120000m²
Year:2023
Photographs:Laurian Ghinitoiu
Lead Architects:Abdulrahman Gazzaz & Turki gazzaz
Lead Team:Abdulrahman Gazzaz, Turki Gazzaz
Design Team:Osama Altal, Ghaida Gutub, Zahiyah Alraddadi, Zaina Ghassan Zenati
Landscape Architecture:Studio Libani
General Constructing:MAC
City:Diriyah
Country:Saudi Arabia
Text description provided by the architects. In 2015, a group of visionary artists, led by Ahmed Mater, mobilized against the limiting currents of the cultural practices of their time. They scouted for possible areas around Riyadh to assemble a space for creatives and discovered a declining industrial district in the historic seat of the Saudi State, Ad Diriyah. Once a gritty and bustling light-industrial area, the 'JAX Creative District' was reimagined as a meeting place for creatives and a celebration of the town's rich and varied history.
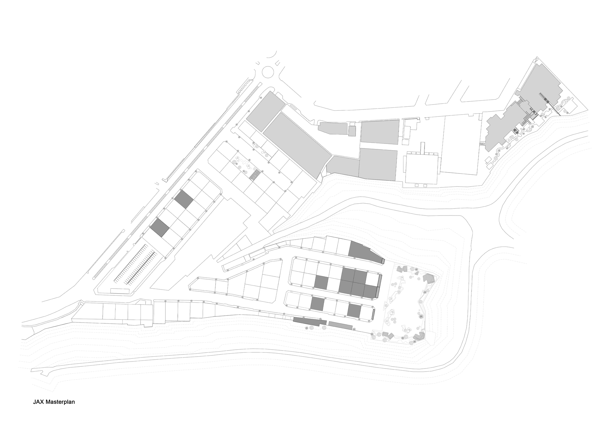
With its strategic location along the banks of Wadi Hanifa, Central Arabia's fertile valley, JAX has quickly become the nation's hub for the creative industries. Hosting the Diriyah Biennale Foundation, SAMOCA, and Noor Riyadh, while simultaneously offering subsidized spaces for artists, designers, and makers. Following the success of the Diriyah Biennale Foundation, the district's inaugural project, Bricklab established a strong relationship with JAX. In 2021, they were commissioned to develop the public realm guidelines for the Foster & Partners masterplan, and later in 2022, they won a competition to design a series of warehouses and public plazas.
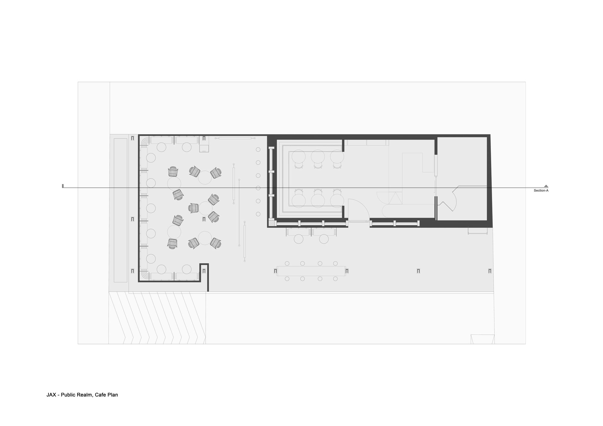
With a hundred warehouses and a set of different plazas within the street grid, the district was planned around principles of rehabilitation and adaptive reuse. Influenced by Wadi Hanifa's natural landscape informed the guidelines of the industrial site through materiality, color palette, and landscaping. The architectural language set for the district was based on a subtle combination of industrial materials, mindful paving, and a sensitivity to the functional requirements of creative production. At an urban scale, a set of pedestrian thoroughfares and public plazas were carved out from the strictly utilitarian assembly of structures throughout the site to establish nodes of public activity. These new plazas, sidewalks, and intersections are defined by landscaped pockets of irregular geometries developed by landscape architects studiolibani.
To establish an ecological continuity, while providing a salient relief from the hot and dry climate, they curated a palette of native flora from sites along Wadi Hanifa. These urban interventions encouraged the development of some of the neighborhood's most vibrant public spaces, hosting seasonal artistic interventions, cafes, and temporary markets.
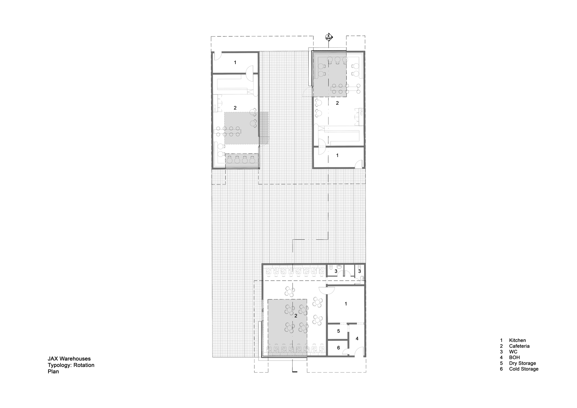
A set of formal operations on the typical warehouse was developed to address programmatic requirements, urban context, and development guidelines. These operations yielded a set of new typologies that established a subtle presence in the district. Some warehouses were rotated perpendicular to the street to create thoroughfares within the urban fabric. Others had portions of their facades hollowed out to connect the structures to the street sectionally. Additionally, a set of new, scaled-down sheds were inserted into the urban fabric to serve as F&B outlets and small shops that animate the street.
The subtlety of the typological approach to the architectural interventions yielded a subdued environment that leaves room for different participants from the creative community to animate the district over time. Since its inception, JAX Creative District has become one of Riyadh's burgeoning neighborhoods, bringing together a once-fragmented creative network into a thriving community space.
Project gallery
Project location
Address:Diriyah, Saudi Arabia
客服
消息
收藏
下载
最近







































