查看完整案例


收藏

下载
项目位于广州珠江新城的一套高层小户型住宅,将原本的厨房、客餐厅、卧室与阳台全部打通,让原本偏小的空间更为宽敞,以深色的木饰面包裹,塑造幽暗静谧的沉浸式住宅。
The project is located in a high-rise small apartment house in Zhujiang New Town, Guangzhou. The original kitchen, guest dining room, bedroom and balcony are all opened to make the originally small space more spacious. It is wrapped in dark wood veneer to create a dark and quiet Immersive residence.
▼空间概览,overview © 兰斯
进入空间环境的第一眼,传达着空间中的“寂静”,新建的弧形墙体成为引导动线,一进门视线就往里延伸。粗糙的餐桌、质感细腻的木饰面,在空间中形成强烈的美学碰撞,点染了空间清静、雅致的气质。
▼轴测展开图,unfolding axonometric © 一点设计
The first sight of entering the space environment conveys the “silence” in the space. The newly-built curved wall becomes the guiding line, and the line of sight extends inward as soon as the door enters. The rough dining table and the delicate wood veneer form a strong aesthetic collision in the space, which tinged the quiet and elegant temperament of the space.
▼室内入口,the entrance © 兰斯
微微亮的地灯,透着一丝丝的暖黄,却能足够照亮夜幕带来的昏暗。餐桌采用高温炭烧工艺,使木材表面具有一层很薄的炭化层,可以突显出表面凹凸的木纹质感。搭配的藤编餐椅造型轻盈,两两不同的款式,为我们的平凡生活带来一丝小惊喜,搭建出空间的平衡之美。
The faintly bright floor lamp, with a hint of warm yellow, is enough to illuminate the dimness brought about by the night. The dining table uses a high-temperature charcoal burning process to make the surface of the wood have a very thin charring layer, which can highlight the uneven texture of the wood grain on the surface. The matching rattan dining chair is light in shape and has different styles. It brings a little surprise to our ordinary life and builds the beauty of balance in the space.
▼从餐厅看向厨房,view from dining room to the kitchen © 兰斯
▼开放用餐区,the open dining area © 兰斯
现场除了餐桌椅,购置的家具其实没有几件,大多是木工现场制作,储物柜、卡座与床连成一个整块,卡座下有暗格,可收纳不常用的行李箱。利用卡座的靠背将公共区、睡眠区自然的围合与衔接,承载了空间尺度上的通透,使空间的程序呈现出时间的循环状态。
Except for the dining table and chairs, there are not a few pieces of furniture purchased. Most of them are made on site by carpentry. The lockers, decks and beds are connected into a single piece, and there are hidden compartments under the decks to store infrequently used suitcases. Use the backrest of the deck to naturally enclose and connect the public area and the sleeping area, which carries the transparency on the spatial scale, and makes the space program present a cycle of time.
▼ 储物柜、卡座与床连成一个整块,the lockers, decks and beds are connected into a single piece © 兰斯
▼ 细部,details © 兰斯
沉稳的气质浸染到睡眠区,深邃、放松,从踏入这个家开始就已经拭去压力,只得安心与慵懒。
The calm temperament is immersed in the sleeping area, deep and relaxed, and the pressure has been wiped off from the beginning of entering this home, and I have to feel relieved and lazy.
▼ 看向睡眠区,view of the sleeping area © 兰斯
▼ 墙壁一侧的原木书架,log bookshelf on one side of the bed © 兰斯
▼室内尽头的开窗,large window at the end of the room © 兰斯
▼ 将书籍融合于生活,融入空间的每一处角落 integrate books into life and into every corner of the space © 兰斯
无论外面如何喧嚣,进入这个小小的空间,宛如到了一片净土,一几一椅一榻,酣睡写读。浴室在微水泥和原木的映衬下,整个空间显得通透而静谧,多角度诠释空间的神秘氛围。
No matter how noisy it is outside, entering this small space is like entering a piece of pure land, with a few chairs and a couch, sleeping soundly, writing and reading. The bathroom is set off by micro-cement and logs, and the entire space appears transparent and quiet, interpreting the mysterious atmosphere of the space from multiple angles.
▼浴室,bathroom © 兰斯
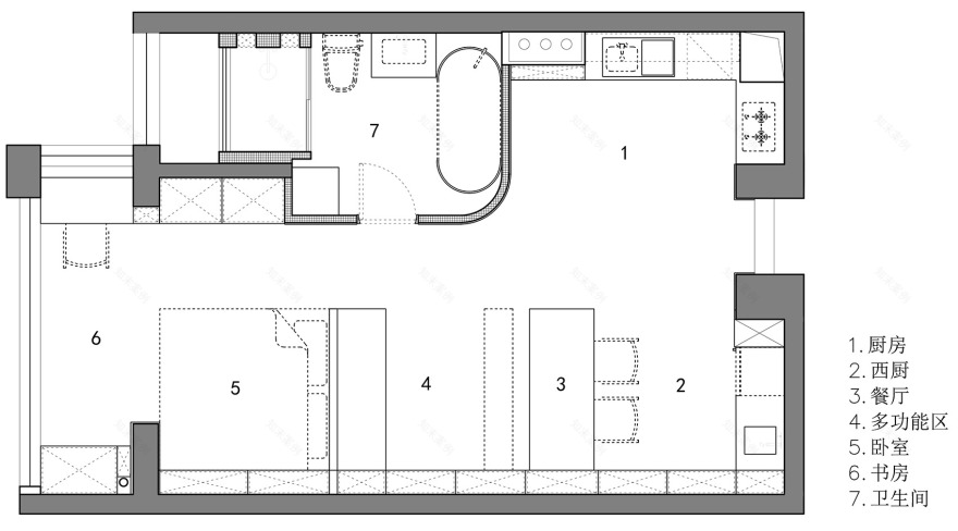
▼平面,plan © 一点设计
客服
消息
收藏
下载
最近




























