查看完整案例

收藏

下载

翻译
Architects:ARP studio
Area:200m²
Year:2015
Photographs:Ana Skobe
Lead Architects:Ernest Milčinović
Design Team:ARP Studio
City:Škoflje
Country:Slovenia
Text description provided by the architects. On the banks of the green hinterland of the Slovenian coast, among the olive groves of the Istrian landscape, a family of four has made a new home among the houses of the border town of Škofije. The low ground-floor house is set on the edge of a terrace. The layout of the house is simple and based on a square, half of which is covered by a flat roof and half by a classical, gabled, cornice roof. The position and choice of materials do not make the house stand out in any way from its surroundings, and with its full front façade, it even appears to be somewhat restrained towards them. However, its restraint is only apparent and part of a spatial journey that begins when you enter.¸
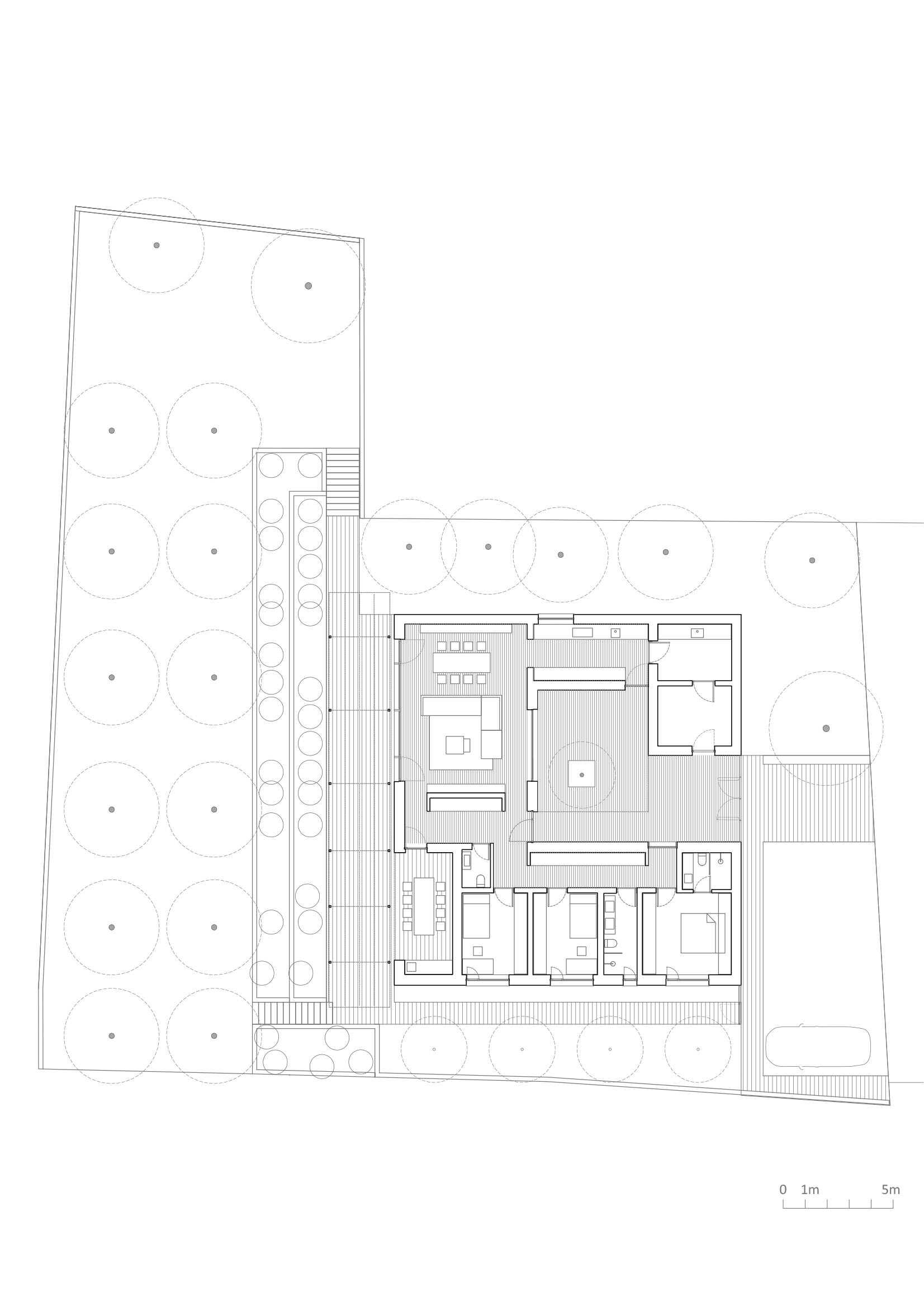
The house at Škofija is built around a void, which is the center of the design. The atrium allows for the gradation of spaces and access. When entering the house at Škofije, one enters an open space that is the interface between the outside world and the intimate space of the family. In the atrium, we are already in the house, but still in the intermediate zone, which offers a suitable reception for the guest and allows the family to make a gradual transition to privacy.
Functionally, the floor plan is divided into living and sleeping areas. The sleeping area is in the south part and is accessible from the entrance hall. The corridor connecting the rooms ends with a window to the atrium. The living areas are divided into two connected sections. The kitchen is in the north wing and is connected to the laundry and service area. The kitchen is illuminated on two sides and has direct access to the atrium. Next to the kitchen, in the western part of the house, are the dining room and the living room. The living room, which is open at full height to the roof, has windows on two sides, allowing double-sided lighting and uninterrupted views of the atrium and the olive grove.
Project gallery
客服
消息
收藏
下载
最近

















