查看完整案例

收藏

下载
新竹生物医学园区第三生技大楼
在 2024 年国际建筑奖项的角逐中,JJP 潘冀联合建筑师事务所的新作「新竹生物医学园区第三生技大楼」(以下简称「第三生技」)表现卓越。凭借对生医产业需求的精准洞察与前瞻性设计,该项目近日再获三项国际大奖:BLT Built Design Awards - Winner、The International Architecture Awards - Winner 及 Architecture MasterPrize Awards - Honorable Mention。
自 2020 年在公开竞图中脱颖而出以来,由 JJP 设计的第三生技已累计斩获 7 项国际殊荣(详见文末项目信息),今年 4 月正式启用时更是获得申租率高达 95%之佳绩。来自评论界、评审团、媒体及使用者的高度评价,也印证了 JJP 设计团队的最初愿景——「不仅要改善生医科研从业者的工作环境,更要激发产业集群潜力,以建筑设计助力新竹生物医学园区迈向全球顶尖研发高地」。
点击观看项目视频©️牧童摄影 shephotoerd
生医产业在台湾「5+2 产业创新计划」与「6 大核心战略产业」部署中皆占据重要席位,作为经济转型与创新发展的关键领域,承担着提升台湾社会健康水平和深化国际产业合作的历史使命。
本案所在地新竹生物医学园区被定位为「跨尖端医疗专业与扶育」之新创园区,不仅为台湾生技医疗行业的发展提供了重要支撑,也对推动台湾成为国际级生医创新研发枢纽、跻身全球精准健康领航者行列扮演关键要角。
在此愿景下,第三生技顺应产业需求和战略规划,被期望集生技研发、产业孵化、教育展示、论坛研讨、成果发表等多重功能于一身,并作为园区最重要的对外交流窗口之一,肩负促进高端技术跨区域对话和知识流通之使命。
响应且融入自然的第三生技
拟建筑为生物——响应自然的生物有机性
本案基地与台湾高铁新竹站分立于新竹生物医学园区中央景观轴的两端,前瞰犂头山、后眺宝山山脉,辽阔的地景与低矮的建筑群交织,形成秀美怡人的研究育成环境。
在良田山脉环绕的生态基底上,第三生技以「生物体有机性」为概念,发展出响应且融入自然的多功能建筑,紧扣「生物医学科技」之世纪议题,串联产业、创新、生态三重价值。
上图:傍晚时分,从园区中央景观轴看流光中庭,柔和光芒在玻璃幕墙的折面流淌;
下图:从建筑入口处看流光中庭
向光——参数化辅助设计生成细胞趋光意向
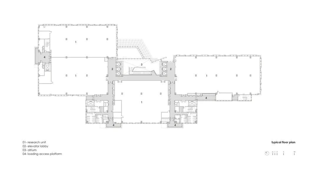
第三生技为地上 11 层(66M)、地下 3 层的钢构建筑体。因应新竹北部的风场、日照、热能等自然条件,将量体错置堆栈。为鼓励开放的交流氛围,于建筑体量核心置入「流光中庭」,在立面上形成灵动的虚实变化。
建筑形态生成分析:因应新竹北部的风场、日照、热能等自然条件,将量体错置堆栈,并于建筑核心置入流光中庭。该中庭由 LOW-E 复层玻璃帷幕所构成,藉由六个角度的转折错动,有效达成风环境的控制并减少热辐射的吸收,将舒适的光线及绿意引入,让第三生技由外而内与自然环境一同进化。
中庭幕墙的转折错动映衬铝板形成丰富的视觉效果。建筑正立面结合参数化辅助设计,发展出律动有致的模矩化外墙开窗方式,兼具节能与施工质量考虑。三种不同尺寸规格的铝板,于建筑立面倾斜指向流光中庭,形成细胞往光源律动的建筑意象,引发对于「生物体有机性」之「趋光性」的联想。
上图:三种不同尺寸规格的铝板,编排形成细胞往光源律动的意象,引发对于「生物体有机性」之「趋光性」的联想;
下图:三种规格的铝板展示
共融——围合式布局构建跨区域交流合作平台
围合式的建筑布局塑造出多元型态的交流共享空间,其中最大的空间是流光中庭里挑高五层的迎宾大厅。六楼至十一楼间,每两层结合楼梯构造设置共享吧台,促进各个研发单元联动交流。
流光中庭空间构成分析,从下往上依次为迎宾大厅和 3 间共享吧台中庭内拾级而上的楼梯,与外墙铝板、花岗岩、玻璃帷幕随天光流转而辉耀,令第三生技仿如游走于天地间的生物,焕发出鲜活的生命力。室内选材以暖色调与木纹为基底,营造和谐自在的氛围,配以槽孔吸音板,降低回音干扰,提升交流质量。
上图:迎宾大厅由丰富的材料构成,随光线流转而辉耀;
中、下图:迎宾大厅和共享吧台皆围绕楼梯形成空间焦点,以温暖的木材营造自在的交往氛围。
全栋 50 个研发单元采 100 坪、200 坪、300 坪之配置组合,最大单层可达 900 坪(约 2975㎡)的扩充弹性,配以人与物的分流系统及高效的机电空调系统,即可为空间使用预留更多可能。
通过在建筑背面设置间距 12 米的错层平台,可使大型设备的吊装更为便利。
上图:从东侧看建筑立面,体块错置形成丰富的建筑表情;
下图:从西南侧看建筑背面,错层平台有利于吊装大型实验设施。
和鸣——由外而内融接自然与人文
本案颠覆传统的封闭院落式研发格局,将建筑主入口移到基地内侧,留出最大的开放空间迎向园区中央景观轴。从地面层的公共艺术花园、入口广场串道到二楼露台花园,皆规划了诱鸟引蝶的植栽,营造多层次绿化休憩空间,充分与原生环境融接。
上图:迎向园区中央景观轴的多层次绿化空间;中、下图:生医光廊巧妙实现人车分流,并以通透界面创造趣味光影。此外,为优化基地的行进动线,巧妙设置飞墙以达成人车分流之目标,飞墙内部人行空间「生医光廊」,充满趣味光影。视觉通透的建筑形式与开放的景观设计,为研究人员营造出舒适且激发创意的环境,推动非正式交流的发生。
作为台湾生技产业新名片,第三生技开启了以建筑设计创新助力生物医学科技发展的全新篇章。作为一个以生物医药为核心的多功能创新平台,第三生技被期待以新的建筑形态和格局驱动高端技术跨区域对话流通的实现。通过空间弹性配置、多功能整合、对外联结强化以及共享生态建设,第三生技开启了以建筑设计创新助力生物医学科技发展的全新篇章,彰显了新竹生物医学园区的国际视野和开放态度。
项目图纸
项目信息
项目名称:新竹生物医学园区第三生技大楼
项目地址:台湾新竹科学园区,新竹生物医学园区
项目时间:2020 年-2023 年
业主单位:新竹科学园区管理局
设计单位:JJP 潘冀联合建筑师事务所
建筑设计:潘冀、张晓鸣、叶胜钿、李瑞渝、曾彦智、覃亦仙、萧冠逸、马法耶、王维康、蔡恒升、吴淑精、杨雅婷、潘东侠、陈亦婕、田友虎、张群培
监造:苏怡樵、刘天龙、苏圣喆、蔡祖烈、高成志、陈政宏、赖奎豪、林宗毅、丁怡祯、汤咏晨
景观设计:黄诗芳、李亭仪
用地面积:10,678㎡
占地面积:5,142㎡
总建筑面积:65,646㎡
项目功能:研发单元、会议室、多功能厅
项目用材:
外墙:玻璃及铝帷幕墙、石材、烤漆铝格栅
室内天花:暗架石膏板天花、楼梯贴木纹软片
室内墙面:石材、木格栅吸音板
室内地坪:雾面石英砖、2cm/TH 水磨石
项目获奖:
2024 BLT Built Design Awards - Winner
2024 The International Architecture Awards - Winner
2024 Architecture MasterPrize Awards - Honorable Mention
2023 Rethinking the Future Awards -Winner
2023 Architizer A+ Awards -Special Mention
2021Architecture MasterPrize -Honorable Mention
2021THE PLAN Award -Mentioned
图片版权:JJP
客服
消息
收藏
下载
最近



























