查看完整案例

收藏

下载
在喧嚣尘世的缝隙中以城市中的岛屿为蓝本以“庭院”为舟,以“岛屿”为梦造一处闲逸之地
通过隐入葱郁的自然
步入岛屿
建立文化上的时空链接
静谧长廊引人深入
园林的造景手法
给“岛屿”带来自然景观
以小见大,以少见多
含蓄隽永,意境幽远
用解构的手法塑造空间骨骼感
建筑化材质转化室内空间构成红色烧结砖朴拙、粗犷中尽显大美让食客被时间叙事所包围,沉浸其中
线条以一定规则分割空间栅格排列破除传统的滞涩同时给予空间呼吸感
设计之灵溯源于自然之奥,取象于渔网之形
非仅捕鱼之具
亦寓天地经纬,网罗万象之深意
既若晨曦渔网,轻捕日光之吻
又似春藤绕指,坚韧攀援,逐光觅希
以自然为师,撷其精髓
融于尺幅之间
使观者恍若置身江海之畔
听涛声依旧,观渔舟唱晚
“岁月失语,惟石能言。” 烧结砖的斑驳和光影交错将空间的情绪弥散
李渔《闲情偶寄》中曾说:“窗棂以明透为先,栏杆以玲珑为主,然此皆属第二义;其首重着,只在一字之坚,坚而后论工拙。”
烟雨江南,沿海之畔
因地制宜,以石筑窗
提取在地因素融入设计
历史感和文化底蕴在此交织
感受时间沉淀下的厚重之美
在“岛屿”的心脏雕琢一方庭院成为连接自然与建筑的纽带让四季更迭的景致穿梭其间流动的水模拟岛屿的生命与呼吸
裸露的木质结构自然的意境植于场域之中
以“隔”、“框”、“透”等手法分割空间使空间隔而不断
在繁忙的都市生活中在这里找寻一片属于自己的岛屿让心灵得以栖息
左右滑动查看更多照片哦
上图:原场地与施工过程下图:项目手稿
* 左右滑动查看项目手稿 *
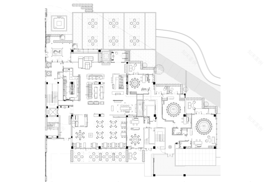
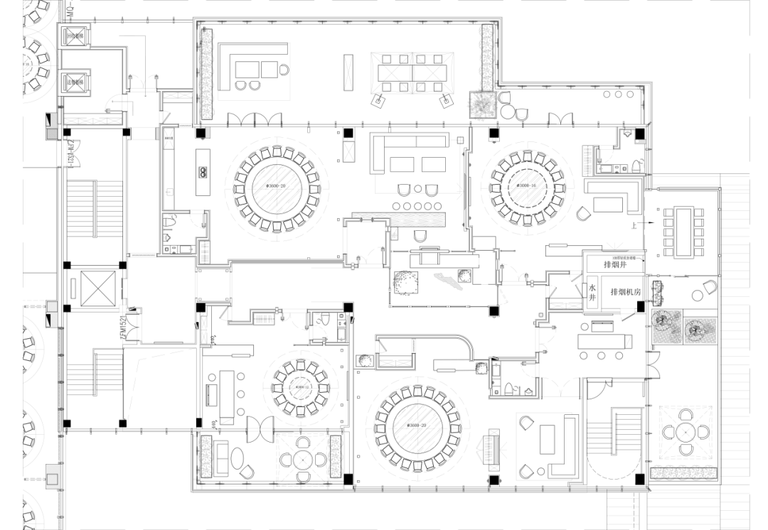
* 左右滑动查看平面图 *
项目名称丨Project隆台XINGLONG RESTAURANT
设计时间丨Design time2023
完工时间丨Completion2023
项目面积丨Area2800 ㎡
设计公司丨Company大相设计Daxiang design studio
设计团队丨Team蒋建宇、李水、高峰
陈设&物料设计丨Team楼婷、柳永良
灯光设计丨Lighting design李冰
项目地址丨Location中国 台州Hangzhou,China
项目摄影丨Photographer艺间访空间摄影
客服
消息
收藏
下载
最近
























































