查看完整案例

收藏

下载
这间惊艳众人的公寓位于阿姆斯特丹充满活力的 Zuidas 商业区中心的19层,可以欣赏到城市天际线的壮丽景色。在这里,城市生活的动感活力与触感材料的温馨柔和色调完美融合,营造出一个宁静的高层休息空间。
Situated on the 19th floor in the heart of Amsterdam’s vibrant Zuidas business district, this stunning apartment offers breathtaking views of the city skyline. Here, the dynamic energy of urban life blends seamlessly with the warmth of tactile materials and a soft color palette, creating a serene high-rise retreat.
▼室内概览,overview of the indoor space ©Ewout Huibers
开放的格局经过精心设计,定制元素清晰的界定了客厅区域,同时保持了通畅连贯的流线。公寓共300平方米,采用了大量的木质饰面和丰富的纹理,营造了一种奢华舒适的氛围。一进入空间,门廊昏暗优雅的基调和后方的厨房和客厅的明亮开放的氛围形成鲜明对比。室内空间体现了i29事务所标志性的设计手法,图案突出了不同的区域,并增添了独特、精致的触感。
The open-plan layout is thoughtfully curated, with custom-designed elements defining distinct living areas while maintaining an airy, cohesive flow. Spanning 300m², the apartment features expansive wooden surfaces and rich textures that exude a luxurious, contemporary feel. Upon entering, a hallway marked by dark, elegant tones provides a striking contrast to the light, open atmosphere of the kitchen and living spaces beyond. The interior reveals the i29 signature approach, with a graphical play that highlights distinct areas and adds a unique, refined touch.
▼从走廊看厨房,from the corridor to the kitchen ©Ewout Huibers
▼厨房,kitchen ©Ewout Huibers
▼餐厅,dining area ©Ewout Huibers
▼餐厅,dining area ©Ewout Huibers
这里的氛围宁静祥和,褪去了城市的活力喧嚣,转而被一种宁静所取代。每一个细节都经过精心设计,营造一种平和精致的环境,在城市活力和宁静隐居之间提供完美平衡。
This is a peaceful home where the vibrancy of the city fades away, replaced by a sense of tranquility. Every detail has been carefully considered to foster an environment of calm and sophistication, offering a perfect balance of urban energy and serene retreat.
▼营造一种平和精致的环境,foster an environment of calm and sophistication ©Ewout Huibers
▼阳台走廊,corridor at balcony ©Ewout Huibers
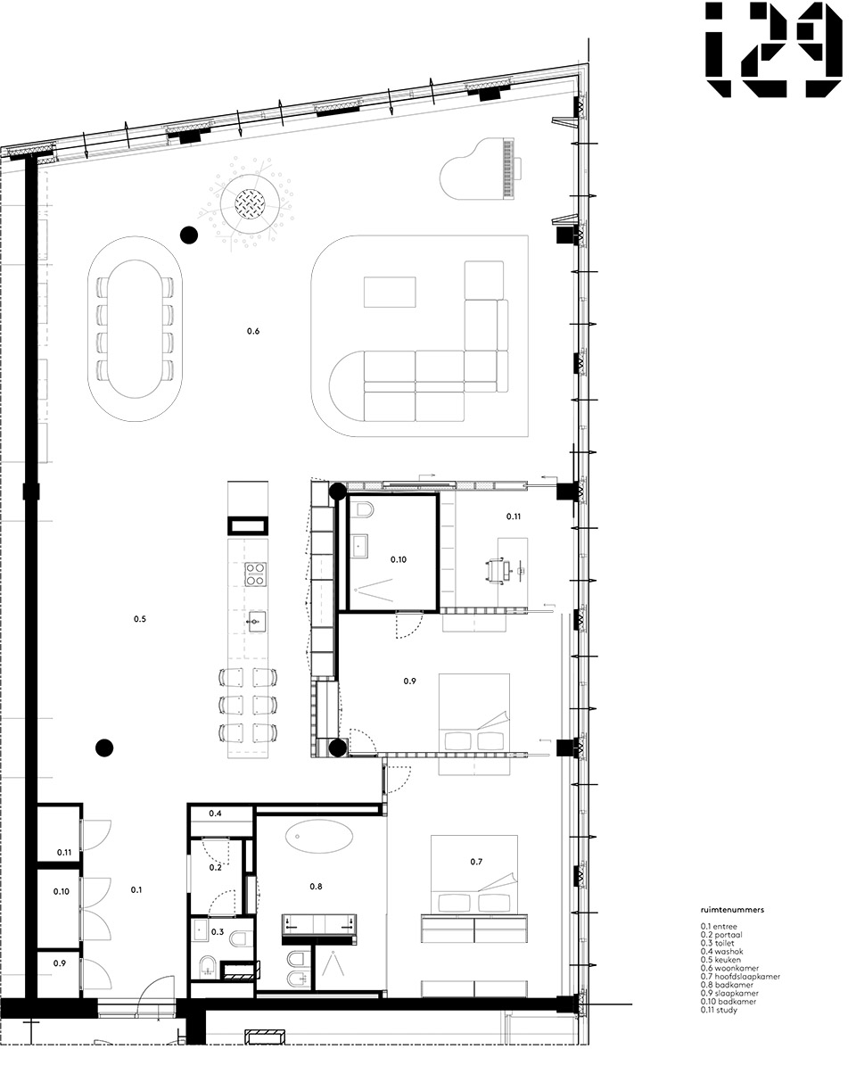
宽敞的布局包括一间定制的厨房,一间宽敞的客厅,两间卧室,一间办公小角落,两间浴室和两间卫生间。每一个房间都体现了公寓的精致美学,确保了风格与奢华的完美融合。从柔和中性的色调到清晰现代的线条,每一个元素都致力于营造一种适度的优雅氛围。
The spacious layout includes a custom-designed kitchen, a large open living room, two bedrooms, an office nook, two bathrooms, and two toilets. Each room reflects the apartment’s refined aesthetic, ensuring a seamless flow of style and luxury. From the soft, neutral color palette to the clean, modern lines, every element contributes to an atmosphere of understated elegance.
▼卧室,bedroom ©Ewout Huibers
▼浴室,bathroom ©Ewout Huibers
▼平面图,plan © i29 architects
Design: i29
Photography: Ewout Huibers
Contractor: Razend Bouw
Cabinet Maker: Steega Interiors
Lighting: Flos
Furniture: Arco, Hay, Dum
客服
消息
收藏
下载
最近




















