查看完整案例

收藏

下载
本项目为何家村老年之家。何家村地处杭州西南,位于龙坞茶山间的峡谷区域,村民主要以茶叶种植制作为业。老年之家是为村里老年人提供休闲娱乐、健康服务的小型公共空间。项目场地原为村民住宅用地,位于密集民宅群中,北临村庄次干道,东、南两侧毗邻村民住宅,西侧小路联通次干道与村庄主道。
与原生态农村相比,何家村的空间环境不提供乡土建筑的符号化形象,也缺乏特色的建构传统与建造工艺。如何在面目模糊的乡村空间环境中,识别出表征环境特点的空间实相成为该项目主要的设计难点与突破口。
农村住宅作为场地周边主要建筑类型,是设计研究的主要落脚点。设计希望通过对农村住宅组成、元素、空间等要素的沿用、转译与重构,实现乡村性表达与公共性塑造,也为老年人塑造出回“家”感受。
This project is a senior home in Hejia Village. Hejia Village is located in the southwest of Hangzhou, in the canyon area among the Longwu tea mountains. The villagers are mainly engaged in tea planting and production. The Home for the Elderly is a small public space that provides leisure, recreation and health services for the elderly in the village. The project site was originally a villager’s residential land, located in a dense cluster of residential houses. It is bordered by the secondary road of the village in the north, adjoining villagers’ houses in the east and south, and a small road connecting the secondary road with the main road of the village in the west. As the main building type around the site, the rural residence is the main landing point of the design study. The design hopes to realize the expression of ruralness and publicity by following, translating and reconstructing the composition, elements and space of the rural houses, as well as creating a sense of “home” for the elderly.
▼项目鸟瞰,Ariel view of the project©ArchNango
▼项目鸟瞰,Ariel view of the project©由牧建筑
沿用:村民生活的空间呈现
Continuing: The spatial representation of villagers’ life
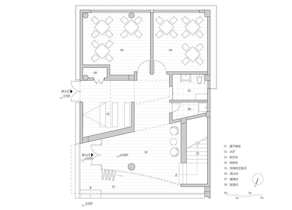
场地周边的沿街村宅多具有“低层辅房+多层主楼”空间组合特征。辅房为村民生产生活方式的产物,主要功能为茶叶的储藏、加工、销售;在经济方式发生变化的今天,部分也演化做休憩、会客等多功能空间。设计沿用“辅房+主楼”形态组合,将原先与主体住宅并置的辅房空间嵌入到主体建筑靠街侧,延续街道界面,化解紧张的道路关系,形成过渡式半公共空间。辅房形象取用独立的圆柱支撑在延伸向街道的薄板与座椅围合成的基础之间,在玻璃移门完全打开时,呈现为公共的亭台与聚场,构成往来行人与老人停留聚集的日常背景。
Compared to the original ecological rural areas, the spatial environment of Hejia Village does not provide symbolic images of vernacular architecture and lacks distinctive construction traditions and building techniques. Identifying the spatial realities that represent the characteristics of the environment in this ambiguous rural spatial context has become the main design challenge and breakthrough for the project. The village houses along the street around the site are mostly characterized by the spatial combination of “low-rise auxiliary house + multi-storey main building”. The auxiliary house is the product of the villagers’ production and life style, and its main function is the storage, processing and sale of tea leaves; nowadays, with the change of the economic mode, some of them have also evolved into multi-functional spaces such as resting and meeting guests. The design follows the form combination of “auxiliary house + main building”, embedding the space of the auxiliary house which was originally juxtaposed with the main residence into the side of the main building against the street, continuing the street interface, dissolving the tense relationship with the road, and forming a transitional semi-public space. The image of the auxiliary house is taken as an independent column supported between the thin boards extending towards the street and the foundation surrounded by the seats, and when the sliding glass door is fully opened, it is presented as a public pavilion and gathering place, constituting a daily background for pedestrians and the elderly to stay and gather.
▼项目外观,exterior of the project©ArchNango
▼项目街景,street view of the building©ArchNango
▼项目街景,street view of the building©由牧建筑
雕塑:在地元素的提取重组
Sculpture: The Extraction and Recombination of Earth Elements
老年之家的主体形象则是来自于对在地元素的提取重组。以坚实建筑墙体与厚重坡屋顶的组合成的正面形象,为来访的村民塑造出常规村宅的熟悉感,而自转角位置墙体倾斜而下,与屋顶脱开,则强化出街道转角动势,也为二层空间向南打开巨大的隙口,创造出超越住宅尺度的雕塑性和体量感。挑出的坡屋顶取用茶叶的轻盈形态,自街角向邻宅倾斜,形成柔和的场地覆盖。底层的基座、转角处的长窗、微弧的正立面等形式,均来自对村宅处理建筑尺度、地形关系手法的拟仿,试图以质朴的方式,在公共建筑的完整形象与乡村住宅的日常尺度间捕捉到微妙的平衡感。
▼轴测图,axonometric©由牧建筑
The main image of the home for the elderly comes from the localization and reorganization of the surrounding rural residential elements. The combination of solid building walls and heavy sloping roofs creates a front image that is familiar to the villagers who visit the house, while the sloping down of the walls from the corner position, disconnected from the roofs, strengthens the momentum of the street corners, and opens up a huge gap to the south of the second floor space, creating a sense of sculpture and volume that transcends the scale of the house.
The selected sloped roof adopts the light and airy form of tea leaves, tilting from the street corner towards the neighboring house, creating a gentle site coverage. The base of the ground floor, the long windows at the corners, and the slightly curved front façade all come from the imitation of the village house in dealing with architectural scale and topographical relationship, trying to capture the delicate balance between the complete image of the public building and the daily scale of the village house in a simple way.
The interior is primarily based on white walls and light-colored oak, creating a warm and cozy atmosphere for users through the use of warm-toned surfaces that wrap around the space.
▼以坚实建筑墙体与厚重坡屋顶的组合成的正面形象,The combination of solid building walls and heavy sloping roofs creates a front image©ArchNango
▼转角处的长窗,the long windows at the corners©ArchNango
▼打开长窗的状态,open the long windows©ArchNango
▼夜晚长窗关闭的状态,close the long window at night©ArchNango
变形:农宅空间的展开与变奏
Transformation: The Expansion and Variation of Agricultural Housing Space
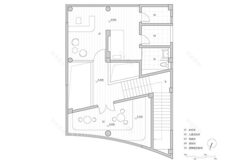
农村住宅的内部往往以“走廊-房间”为结构,形成自外向内、自下而上的私密感递增序列。而设计试图通过对此序列的借用与变形,形成熟悉而陌生的公共之家。一层自外而内的弧面-斜面-直墙三界面,以洞口相连,形成打开-半打开-封闭的三个“房间”序列,为老人的饭后相遇、观影聚会、棋牌娱乐塑造出私密性递增的功能空间序列。楼梯自一层转角处转折向上,经由洞口导向高耸明亮的二层空间。在二层,健康中心与儿童活动室通过连桥相连,与一层自通高处形成实现视觉互动,营造出“同一屋檐下”的开放感受。室内整体以白墙与浅色橡木为基底,通过体块感暖色界面进行空间包裹,为使用者创造居家般的温馨氛围。
▼剖透图,perspective section ©由牧建筑
The interior of rural houses is often structured as “corridor-room”, forming a sequence of increasing privacy from the outside to the inside and from the bottom to the top. The design tries to borrow and distort this sequence to form a familiar but strange public house. On the first floor, the three interfaces of curved, slanted and straight walls are connected by holes, forming a sequence of open, semi-open and closed “rooms”, creating a sequence of functional spaces with an increasing sense of privacy for the elderly to meet each other after meals, to watch movies, and to play chess and cards. The staircase turns from the corner of the first floor and leads upward through an opening to the soaring and bright second floor. On the second floor, the health center and children’s activity room are connected by a bridge, creating a visual interaction with the first floor from the height, creating an open feeling of “under the same roof”. The interior is primarily based on white walls and light-colored oak, with warm-toned surfaces creating a sense of spatial enclosure, providing users with a cozy atmosphere reminiscent of home.
▼一层中庭,atrium on the ground floor©ArchNango
▼为老人的饭后相遇、观影聚会、棋牌娱乐塑造的空间,
creates a space for the elderly to meet each other after meals, to watch movies, and to play chess and cards©ArchNango
▼为老人的饭后相遇、观影聚会、棋牌娱乐塑造的空间,
creates a space for the elderly to meet each other after meals, to watch movies, and to play chess and cards©ArchNango
▼通往二层的楼梯,stairs towards the upper level©ArchNango
▼通高的中庭,double height atrium©由牧建筑
▼二层连廊,corridor on the upper level©ArchNango
▼二层连廊,corridor on the upper level©由牧建筑
▼二层健康中心,health center on the upper level©ArchNango
▼儿童活动室,children’s activity room©ArchNango
总结:突破符号化与类型化的乡建尝试
Summary: Attempts to Break Through Symbolization and Typification in Rural Construction
项目试图突破符号化、类型化的乡建设计框架,通过识别、提取、重构真实的当地建筑现实,给逐渐丧失特点的乡村环境带来陌生却熟悉的面孔,为何家村老人创造出新鲜却亲切的“家”。
The project aims to break through the symbolic and typified framework of rural design by identifying, extracting, and reconstructing the authentic local architectural reality. It seeks to bring a strange yet familiar face to the gradually characterless rural environment, creating a fresh yet intimate “home” for the elderly in Hejia Village.
▼夜景,night view©ArchNango
▼夜景鸟瞰,Ariel view at night©由牧建筑
▼夜景,night view©ArchNango
▼模型,model©由牧建筑
▼场地平面,site plan©由牧建筑
▼一层平面,ground floor plan©由牧建筑
▼二层平面,first floor plan©由牧建筑
▼立面,first floor plan©由牧建筑
▼剖透视,perspective section©由牧建筑
项目名称:何家村老年之家
项目类型:建筑设计
设计方:上海由牧建筑设计事务所
项目设计:2023.10
完成年份:2024.10
设计团队:林剑博、杨嘉桐、钱盛宇
施工图团队:方韵平、万林海、姚超超、朱笑生、金畅、王鹏涛
项目统筹:董莳
项目地址:浙江省杭州市转塘街道西湖区何家村
建筑面积:230㎡
摄影版权:ArchNango、由牧建筑
客户:浙江省杭州市转塘街道西湖区何家村村委
材料:贴片石
品牌:久石
客服
消息
收藏
下载
最近















































