查看完整案例

收藏

下载

翻译
Architects:design by 83
Area:188m²
Year:2024
Photographs:Donggyu Kim
Design Team:Minsuk Kim, Donghyun Nam, Chanun Park, Suhyun Jo
Construction Team:Minsuk Kim, Donghyun Nam, Suhyun Jo
City:Haeundae
Country:South Korea
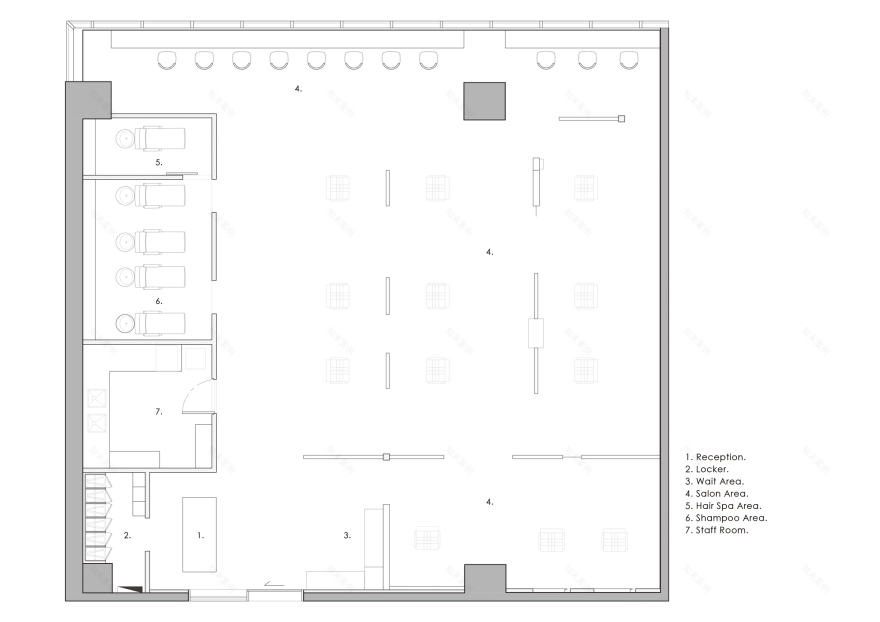
Text description provided by the architects. LE'EVO is a hair shop that provides the best design and service to customers by maintaining its philosophy and values. The client who has run its headquarters for a long time, wanted to create a different atmosphere at a new store. The focus was on expressing the upgraded design and brand-new image in the space.
Modification of design began with Old&New. It was intended to escape its image by changing the store created with a wood-centered warm feeling into processed cold materials and tone. Unlike the old, white was used as the base, and a gray tone was added, to give a sense of depth to the white space that could look flat. The finishes of metal, gray marble, and glossy concrete used in the space reveal the opposite charm and aesthetics of wood. SUS was used for the make-up table, and the back wall of the make-up table was finished with white stone plastering. The soft stone on the wall that touches the waiting area at the entrance atmosphere looks like stone, and its texture emits the antique feeling of the old house. A unique space is completed simply by excluding wood that occupies a lot of sides in the existing beauty shop.
The design team agonized over the identity of the hair shop. The design team perceived LE'EVO as a brand that focuses on the space, design, and hairdressers' service mind for customer satisfaction. Reflecting the attitude of LE'EVO, the design team completed the space by studying materials that create a calm illumination and atmosphere, with the aim of making those receiving the service feel comfortable.
The design team embedded line lighting in the make-up table so that the customer's face could be seen clearly without shadows. In particular, they paid a lot of attention to the movement line and the gap between make-up tables. A partition was installed at the entrance so that the eyes of the customer entering the space would not meet those of the customer receiving the service. However, its height was adjusted so that the space did not look stuffy. In this way, the design team divided open space and private space through partitions and different materials, making the customers perceive them implicitly. During construction, they checked several times in units on the spot, considering the optimal movement line from the entrance to the waiting area, from the waiting area to the make-up table, and from the make-up table to the shampoo room. It is the mind of the design team who wanted the customers to use the space comfortably enough, unconsciously rather than noticing something.
Through the delicate planning of the design team, LE'EVO took another leap forward, and the harmony of Old&Newmakes LE'EVO brand image even more definite.
Project gallery
Project location
Address:Haeundae, South Korea
客服
消息
收藏
下载
最近
























