查看完整案例

收藏

下载

翻译
Architect:ar_ea
Location:Medellín, Medellin, Antioquia, Colombia; | ;View Map
Project Year:2022
Category:Apartments
Rehabilitation and Reuse.
PAZ Building.
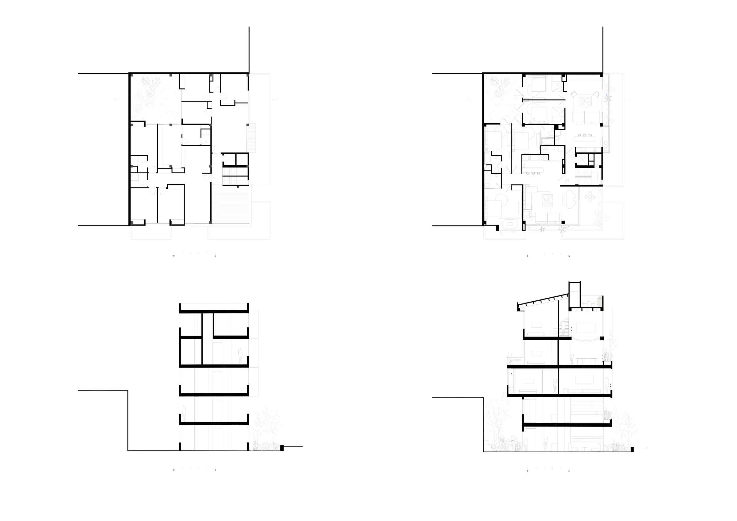
In Medellín, Colombia, many buildings constructed in the 70s and 80s are located in strategic areas of the city, with abundant greenery and connections to the public transport system. However, these buildings are deteriorating, which presents an opportunity for city renewal through a vision of sustainability understood as a balance between the economic, environmental, and social aspects. Thus, PAZ becomes the challenge of recycling, regenerating, and recreating an existing multifamily residential building built in the late 80s.
Originally, the building featured closed windows, large kitchens, and small social areas designed for families. It now opens up internally, creating more spacious areas, integrated kitchens, and the façade is opened to the surroundings, creating new balconies, planters, terraces, and new spaces that allow for a more direct interior-exterior relationship.
Our vision stems from the opportunity to immerse the building in the tropics, transforming it into a guiding thread that runs through every space of the building. Here, the context is not just an influence, but the cornerstone that connects our proposal. A deep understanding of the environment not only guides us but integrates us with it, from the exterior to the interior, from form to function, encompassing the territory that surrounds us.
The choice of materials was made through a meticulous process, ensuring timelessness and spatial quality throughout the building.
PAZ is not just an aesthetic statement; it is a testament to our commitment to the future. Through radical decisions, nearly 600m² of additional space were created in balconies, terraces, and gardens, benefiting not only the project but the city as well. The perimeter vegetation on the façade reduces the interior temperature, filters the air, exchanges CO2, provides shade during sunny moments, attracts wildlife, and adds aesthetic value to the architecture.
In this way, PAZ becomes a proposal for comprehensive renewal, setting an example and a good practice for the city. It is evidence of how it is possible to positively transform the dynamics of neighborhood deterioration in a dense city with limited expansion areas and land available for new construction.
Team:
Architects: ar_ea + Del Valle Studio
Interior Design: Del Valle Studio
Furniture: Tu Taller Design
Builder: Nivelum
Structural Engineer: Biaxial
Lighting Design: Estudio de Dos
Landscaping: Santiago Urreta. Urreta Arquitectura del Paisaje
Photographer: Mateo Soto
Materials Used:
Facade cladding: Lamitech
Flooring: Wood, porcelain flooring
Interior furniture: Tu Taller Design
▼项目更多图片
客服
消息
收藏
下载
最近
























